Для большой и дружной семьи архитектор-дизайнер Ксения Иванова оформила загородный дом под Новосибирском, создав современный, пронизанный светом интерьер, открытый окружающей природе и всем, кто входит в широкий круг друзей. Работа над внутренним оформлением началась одновременно с проектированием самого дома и шла в тесном контакте с архитектором Иваном Поцелуевым.
Конструктивный диалог позволил избежать ряда сложностей и оперативно, уже на первом этапе, внести важные корректировки. Например, добавить в проект консольную лестницу, поиграть с объемами общественных помещений, сделать разноуровневый пол в гостиной и даже изменить высоту потолков и размеры окон. Чтобы в итоге получить минималистский интерьер с открытыми широкими перспективами, интересным ритмом объемов и контрастной отделкой.
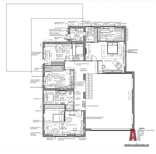
Двухэтажный дом площадью 470 кв. м имеет предельно рациональную планировку. На первом этаже расположена двусветная гостиная-столовая с удобной диванной группой и камином, от нее широкими ламелями отделена кухня. Помимо общих помещений здесь также находится комната старшей дочери, гостевая спальня, два санузла, гардеробная, прачечная, гараж на два автомобиля.
Из двусветной гостиной просматривается спальня хозяев, расположенная за стеклянной перегородкой на втором этаже. К ней примыкает гардеробная и ванная комната. Отдельным блоком на втором этаже выделены детские: три детские спальни с санузлом. Цокольный этаж эксплуатируемый, в нем находится большая игровая для малышей, домашняя СПА-зона с сауной и хозяйственные помещения.
Дом очень похож на своих хозяев: светлый, легкий, интеллигентный… Интерьеры выглядят простыми и лаконичными, но в них присутствует скрытая динамика. Основной идеей проекта стала геометрия белых плоскостей, которая от помещения к помещению реализуется по-своему. Так, в гостиной, композицию формирует белая линия подиума, переходящая в ритм ступней консольной лестницы.
В зоне отдыха ей вторит облицовка камина с горизонтальным членением, а со стороны столовой – вертикальные сквозные панели-перегородки. Ламели из МДФ с глянцем установлены под углом друг к другу, отчего смотрятся еще выигрышнее, играя бликами и тенями. Их сложный рисунок поддерживает оформление потолка на кухне: ломанные динамичные полосы, разделенные встроенной подсветкой. На контрасте с белыми глянцевыми поверхностями керамогранита, искусственного камня, мебельного лака работает крупноформатный черный камень в отделке лестничного холла. Он монтировался цельным куском (с прорезями для ступней) и требовал от мастеров филигранной точности исполнения. Строгость однотонных заливок и масштабность крупных объемов сглаживает ажурная напольная плитка в виде многогранников, стеновые 3D-панели с рельефными волнами, цветная мозаика и живые растения. Безусловным украшением двусветной гостиной служит светильник Vibia, он появился на первых визуализациях и задал масштаб и парадное настроение. В выборе мебели ставка была сделана на качественные предметы с лаконичным декором: модульный диван Saba Italia, комоды с эффектом смятой бумаги и невесомые кровати Lago со стеклянными ножками.
Комплектация объекта
Строительные и отделочные материалы и изделия
Изделия из дерева, компании Raum и Bearmade
Двери, поставщик «Кредит Керамика»
ГВЛ, «КНАУФ»
Керамогранит Mirage, мозаика Sicis, плитка, поставщик «Кредит Керамика»
Гипсокартон, «КНАУФ»
Свет Vibia, Vistosi, Masiero, поставщик «Аксиома»
Сантехника Arbi, Laufen
Ковры, поставщик «Мир ковров»
Аксессуары, декор, поставщик «Лекса», Salon Home Decor
Мебель
Гостиная диван Saba Italia (модель Pixel), журнальный столик Bonaldo, комод Vibia
Столовая обеденный стол, стулья Cattelan Italia
Кухня Giulia Novars, барные стулья LaPalma
Спальня хозяев кровать и тумба Lago
Кабинет комод Cattelan Italia, кресло Calligaris
Спальня дочери кровать Lago, прикроватные столики Cote Table
Детская игровая, на заказ – изготовление Bearmade
Корпусная мебель на заказ – компания Raum
Оборудование
Системы вентиляции и кондиционирования Tosot
Электроустановочные изделия Schneider electric
Оборудование кухни Neff
Дом с зимним садом и фонтаном на Финском заливе
Миланская квартира в Москве О профессии «ландшафтный архитектор», образовании и специфике частных и общественных ландшафтных проектов говорим с Иваном Бугаевым…





































Ландшафтный архитектор. Инженер. Проектировщик. Логик.
«Мода в интерьере — это зеркало нашего быта»...
Храм в городе
Три кита современного стиля
Проект: Аэропорт «Кавказ» 
11
22
33
44
55
66
77
88
99
1010 