В своем новом проекте дизайнер Инна Зольтманн постаралась передать ощущение «тихой гавани», где набираешься энергии и отдыхаешь душой. Свобода, воздух, гармоничный баланс цвета стали основой элегантного интерьера двухэтажной квартиры на Патриарших прудах. В тихом московском центре ещё остались бывшие коммуналки с высокими потолками, выразительными окнами и интеллигентной атмосферой. Одна из них, в дореволюционном доме, очень светлая и уютная, досталась Инне Зольтманн.
«В этом интерьере нам хотелось сохранить дух старой Москвы, но добавить современные ноты, немного парижское звучание. А главное – создать своего рода портрет клиента. Заказчица – настоящая красавица, кареглазая блондинка. Ей необычайно идут пастельные цветы – светло-голубой, зеленый, бежевый, и именно они стали основными цветами интерьера. Помимо нюансной палитры важную роль в образе интерьера играют предметы искусства – академическая живопись и графика.
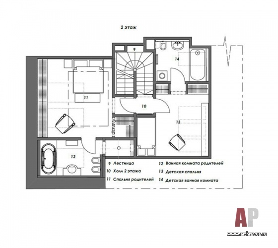
Перед дизайнером стояла задача спроектировать представительскую квартиру площадью 154 кв. м. и разделить объем на парадную часть и приватные апартаменты. Так, на первом этаже разместились помещения для семейного отдыха и приема гостей, а на втором, мансардном, две спальни (хозяйская и детская) со своими ванными комнатами.
Первый этаж имеет классическую планировку с большим центральным холлом: он создает торжественный настрой и позволяет эффективно распределить потоки движения. На центральной оси от входа спроектирована элегантная лестница, слева находится гостиная-салон, справа – парадная столовая с чайной и кухней. Белые филенчатые двери с прозрачными витражами, как в старых московских особняках, разделяют помещения и дают красивую игру света на стенах, полах и мебели. Помещения второго этажа получились большими, комфортными для жизни, с правильными пропорциями и ощущением баланса.
В этой светлой элегантной квартире можно увидеть элементы старой московской архитектуры, классических американских вилл и эклектичных французских интерьеров из района Опера Гарнье… Нежная нюансная колористика, лаконичные гипсовые потолочные карнизы, белоснежные филенчатые двери, натуральный камень с красивым рисунком, струящийся текстиль, мебель неоклассических форм – вместе они создают воздушное пространство с мощным бекграундом.
Интерьер складывался постепенно и очень осознанно: за тканями Pierre Frey дизайнер ездила в Париж, мебель подбирала в разных салонах Москвы и ближнего Зарубежья, множество предметов (двери, встроенная и корпусная мебель) были изготовлены в индивидуальном порядке российскими мастерами. Особое настроение в квартире создают аксессуары: замечательная антикварная двусторонняя ширма, китайские вазы, ковры, мелкая пластика. «На самом раннем этапе мы уделили большое внимание живописи и графике. Я убеждена, что в доме обязательно должно присутствовать искусство, оно создает особенное настроение. В данном случае нам хотелось передать ощущение гармоничного созерцания. Поэтому мы подобрали работы современных мастеров, представителей академической школы: Анастасии Соколовой, Екатерины Рожковой и Рустама Хамдамова. Я по-настоящему горжусь тем, что получилось собрать уникальные художественные произведения такого высокого уровня!»
Комплектация объекта
Строительные и отделочные материалы и изделия
Мансардные окна VELUX
Изделия из дерева, двери, экраны на радиаторы, плинтус Aeon Grove
Декоративная финишная отделка стен, краска Farrow & Ball
Натуральный камень, бразильский гранит Copacabana, мрамор, компания «Данила Мастер»
Лестница, «Мастерская Юрия Грицана»
Свет E. F. Chapman (модель Large Ruhlmsmm), Visual Comfort & Co, поставщик Visual Comfort Gallery; Barbara Barry, Robert Abbey, поставщик Design Place
Шторы Pierre Frey
Текстиль, поставщик «Галерея Арбен»; подушки, пледы, покрывала, поставщики Loffilab и Atmosphera
Ковры, поставщики Iran Carpets; Art de Vivre
Искусство, скульптура, китайские вазы, поставщик «Мастерская Кати Гердт»
Декоративная напольная ваза и зеркала Christopher Guy, поставщик IDC Collection
Флористика, «Садовый Центр Боголюбовой Людмилы»
Сантехника Devon & Devon, смесители Villeroy & Boch
Мебель
Холл круглый столик Christopher Guy, поставщик IDC Collection; пуф, на заказ, по эскизам автора проекта – изготовление Home Emotions
Гостиная встроенная библиотека, на заказ, по эскизам автора проекта – изготовление Attribute; диван Kenzo Maison, поставщик «ТРИО-Интерьер»; антикварное кресло и винтажный столик, поставщик «Мастерская Кати Гердт»; пуф, поставщик IDC Collection; тумба ТВ, на заказ, по эскизам автора проекта – изготовление Aeon Grove; антикварная китайская ширма, поставщик «Живые вещи»
Рабочая зона в гостиной книжные шкафы, на заказ, по эскизам автора проекта – изготовление Attribute; кресло и письменный стол Christopher Guy, поставщик IDC Collection; подиум, поставщик «Мастерская Кати Гердт»
Столовая буфеты, кресла, обеденный стол, банкетка и стулья Barbara Barry, керамический табурет Asiatides; антикварная китайская ширма, поставщик «Живые вещи»; журнальный столик, поставщик «Мастерская Кати Гердт»
Кухня IKEA
Спальня кровать, банкетка, поставщик Atmosphera; встроенная система хранения, на заказ, по эскизам автора проекта – изготовление Aeon Grove
Оборудование
Кухонная техника Kuppersbusch
Фото: Сергей Ананьев
Элегантная квартира в оттенках серого
Квартира с парижским стилем О профессии «ландшафтный архитектор», образовании и специфике частных и общественных ландшафтных проектов говорим с Иваном Бугаевым…































Ландшафтный архитектор. Инженер. Проектировщик. Логик.
«Мода в интерьере — это зеркало нашего быта»...
Храм в городе
Три кита современного стиля
Проект: Аэропорт «Кавказ» 
11
22
33
44
55
66
77
88
99
1010 