Для своих постоянных заказчиков архитектор спроектировал интерьер таунхауса в Барвихе площадью 220 кв. м, превратив трехэтажное пространство со сложной структурой и разноуровневыми помещениями в удобное загородное жилье в духе старого семейного поместья. Изначально дом имел очень странную планировку с несколькими уровнями, подуровнями в половину лестничного пролета и небольшими изолированными комнатами.
«Когда мы в первый раз оказались на объекте, то подумали, что едва ли получится что-то интересное… Но, как только убрали перегородки, то внутренний объем заработал совсем по-другому, возникло ощущение большого пространства: логичного и цельного», - рассказывает автор проекта. Комфортное пространство с открытой структурой стало базой для респектабельного интерьера с приглушенной цветовой гаммой, приятными на ощупь материалами и обволакивающей атмосферой.
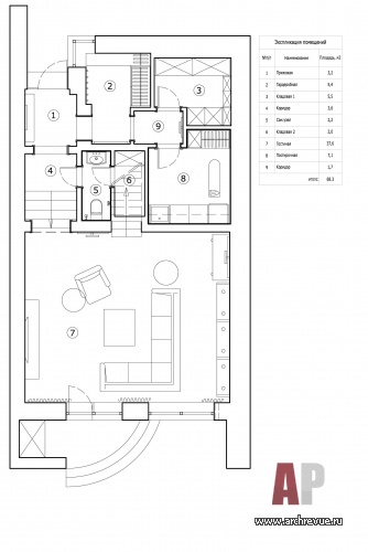
Архитектор изменил дробную внутреннюю структуру таунхауса и визуально объединил разноуровневые помещения, создав на 220 кв. м ощущение большого пространства, сродни семейному поместью. Вся общественная часть воспринимается как единое целое. Центром композиции является гостиная с высокими окнами и выходом во двор.
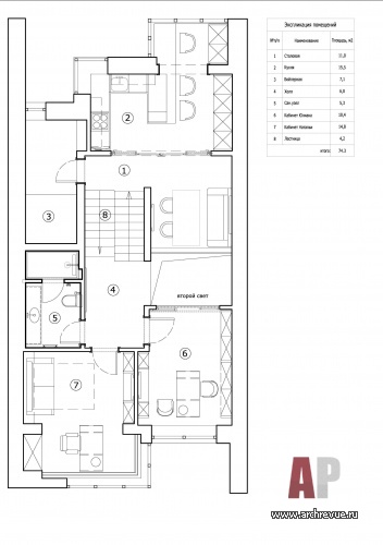
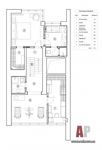
Из нее просматривается расположенная уровнем выше небольшая, но очень уютная, столовая, перетекающая в просторную кухню. С кухней-столовой визуально связаны кабинеты хозяина и хозяйки дома, размещенные на антресоли-галерее. Третий этаж занимают приватные помещения: мастер-спальня со своей ванной комнатой, спортзал с отдельным санузлом и две гардеробные.
Заказчики – поклонники исторического наследия, в интерьере они предпочитают сдержанную классику. Поэтому респектабельность здесь соседствует с удивительным чувством свободы. Интерьер общественной части выполнен в темной плотной цветовой гамме, он построен на сближенных коричневых и серых оттенках.
Строгость цветового решения компенсируют материалы: мягкие и приятные на ощупь. В оформлении использованы бельгийские текстильные обои, массивная дубовая доска с натуральной текстурой, плитка с фактурой шероховатого камня. Мебель подобрана добротная: диваны и кресла в обивке серым или в традиционную клетку текстилем, кухня цвета слоновой кости с длинной каменной столешницей, сделанные на заказ массивные шкафы и библиотека. Спальня выполнена в более романтическом ключе, светлая палитра и белая встроенная мебель служат фоном для классического наполнения: кровати с серым изголовьем, бра с абажурами и произведений искусства.
Комплектация объекта
Строительные и отделочные материалы и изделия
Обои Arte (коллекция Flamant), Aura (коллекция Handsome)
Массивная половая доска, дуб, поставщик Finex
Свет Visual Comfort & Co, поставщик Visual Comfort Gallery
Плитка Ceramiche Grazia, Adex
Сантехника Villeroy & Boch, смесители, Nicolazzi, поставщик «Бельведер»
Мебель
Гостиная диван, кресло, пуф CTS Salotti, комод Mastri Italiani; шкафы, на заказ, по эскизам автора проекта
Столовая диван Mis en Demeure, стол Mastri Italiani, стулья Guadarte
Кухня, на заказ; стулья Mastri Italiani
Кабинеты письменный стол Mastri Italiani, кресло Mascheroni; шкафы, на заказ, по эскизам автора проекта
Спальня кровать, поставщик Dantone Home
Фотографии: Сергей Моргунов
Скандинавский дизайн в московской квартире
Эклектичная квартира с элементами лофта и этники О профессии «ландшафтный архитектор», образовании и специфике частных и общественных ландшафтных проектов говорим с Иваном Бугаевым…






























Равновесие, цельность и гармония как результат работы архитектора…
Ландшафтный архитектор. Инженер. Проектировщик. Логик.
«Мода в интерьере — это зеркало нашего быта»...
Храм в городе
Три кита современного стиля 
11
22
33
44
55
66
77
88
99
1010 