Закрыть галерею
Не удалось загрузить картинку
Изображение
24
из
26
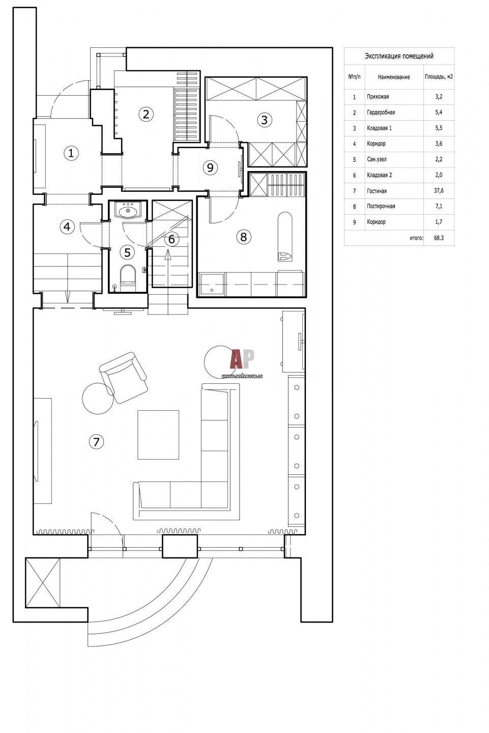
Планировка 1 этажа 3-х этажного танухауса в Барвихе.
План первого этаж трехэтажного таунхауса в классическом стиле. Общая площадь – 220 кв. м.
Проект:
Интерьер трехэтажного таунхауса с атмосферой загородного поместья
Автор проекта:
Бурмакин Павел
Объект:
Классический таунхаус в Барвихе
Общая площадь:
220 кв.м.
ё
1
2
3
4
5
6
7
8
9
0
-
=
й
ц
у
к
е
н
г
ш
щ
з
х
ъ
\
ф
ы
в
а
п
р
о
л
д
ж
э
я
ч
с
м
и
т
ь
б
ю
.