Семейная пара с двумя детьми обратилась в студию Design Rocks с пожеланием создать в центре Москвы двухэтажную квартиру с атмосферой загородного дома и дала архитекторам полный карт-бланш. Заказчики любят семейный отдых на природе и современный дизайн, они были открыты к новому и готовы экспериментировать, поэтому не стали присылать примеры вдохновляющих их интерьеров, а сказали архитекторам самим придумать для них наилучший вариант.
«Оказанное доверие было нам приятно и в то же время накладывало большую ответственность, - рассказывают архитекторы. – Над проектом трудилась команда из 5 человек. Каждый внес что-то свое, благодаря чему дизайн получился разнообразным и необычным».
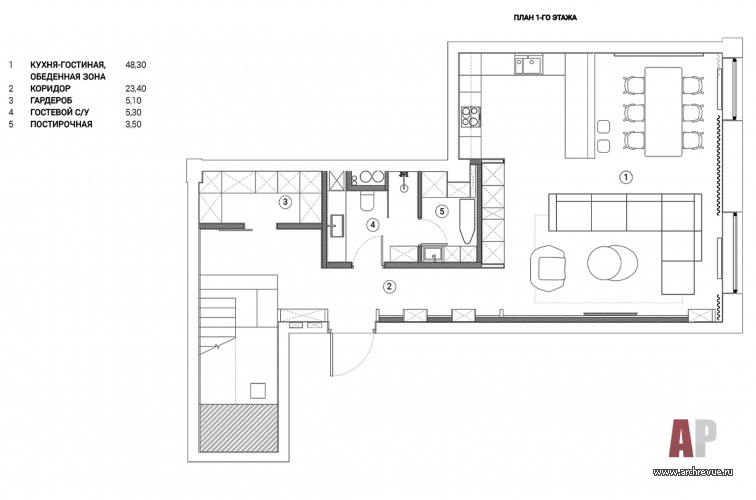
Двухэтажная квартира площадью 200 кв. м находится в клубном доме Knightsbridge Private Park в Хамовниках. Она имела неплохие исходные данные: свободную планировку, хорошую инсоляцию и выразительные окна с тонким переплетом. Первый этаж архитекторы не стали дробить на комнаты: выделив лишь гостевой санузел, гардероб и постирочную, всю оставшуюся площадь они отдали общей гостиной, столовой и кухне.
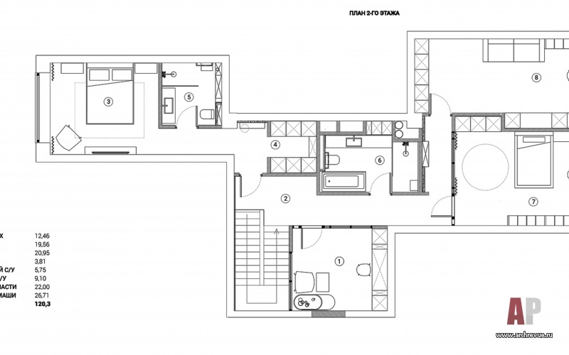
Размеры open space оставляют 48 кв. м – площадь хорошей однокомнатной квартиры! Второй этаж с окнами на две стороны занимают приватные помещения: хозяйская спальня со своей ванной комнатой, две детские с общим санузлом и стеклянный объем кабинета, который служит также местом для отдыха. Все помещения получились просторные, например, детские (22 и 26 кв. м) проектировались с расчетом на то, что в них приятно позвать друзей и провести вместе время.
Интерьер квартиры выполнен в стилистике рационального минимализма с акцентом на природные материалы и текстуры. Вместе с большими площадями помещений и открытыми перспективами они создают ощущение загородного интерьера. Декоративная домината гостиной – каменная облицовка стены за ТВ. Архитекторы рассматривали варианты из итальянского камня и отечественного гранита, пока не увидели дагестанский песчаник: эффектный, брутальный, легкий в обработке и монтаже.
Он прекрасно сочетается с натуральным необработанным деревом, из которого сделана кухня и стеллаж в холле. Еще одной ключевой точкой дизайн-проекта стала лестница, ведущая на второй этаж. Хотелось сделать ее очень легкой, воздушной, но функциональной, поэтому первые две ступени были специально оставлены более широкими (чтобы можно было присесть на них), а перила выполнены из закаленного стекла. Пространство под лестницей архитекторы заполнили белой галькой, а в оформлении холла применили подсветку и декоративные медные панели, которые придали квартире сходство с актуальным арт-пространством. Чтобы не утяжелять лестничный холл, кабинет на втором этаже было решено сделать стеклянным. Прозрачные перегородки зонируют объем, но сохраняют пространство и воздух. «Заземляют» интерьер и создают уют столярные изделия из некрашеного дерева и декоративные стеновые покрытия с эффектом бетона.
Комплектация объекта
Строительные и отделочные материалы и изделия
Стеклянные перегородки, компания Pro/stranstvo
Изделия из металла, компания Dordi
Половая доска, дуб, поставщик «Архипол»
Керамогранит Porcelanosa
Фурнитура для дверей Dnd Martinelli
Свет декоративный Flos, Normann Copenhagen, Gubi
Свет, винтажный, поставщик Repeat story
Свет технический Flos
Ковры, поставщики Art de Vivre
Постельное белье, поставщик Embra
Декор, поставщики BoConcept, BD Barcelona Design, DesingBoom
Керамика Farol, Attribute, Ксения Клайда, Ульяна Хохлова
Искусство, ArtBrut Moscow
Сантехника Tres, Fima Carlo Frattini; унитазы Ceramica Cielo, полотенцесушители Terma
Мебель
Гостиная кресло Lema (модель Lennox)
Столовая стулья Molteni&C (модель Barbicann)
Кухня Aster Cucine, барные стулья Bonaldo (модель Lamina too)
Спальня кровать, на заказ; кресло L’Appartement (коллекция Norr11, модель Elephant)
Детская диваны, корпусная мебель, на заказ; кресла Hay
Мебель для санузлов, на заказ
Кабинет кресло Minotti (модель Jensen); корпусная мебель, на заказ; кресло рабочее Vitra (модель AC 5 Work)
Оборудование
Радиаторы Irsap (модель Tesi)
Электроустановочные изделия Berker
Оборудование кухни вытяжка Faber (модель Cylindra)
Фото: Сергей Красюк
Стилист: Татьяна Гедике
Воздушный интерьер в классике
Лофт на Мосфильмовской для жизни и работы Поиски нового офиса привели владельцев архитектурного бюро «Крупный план» к неожиданному, но очень значимому шагу – приобретению особняка - объекта культурного наследия XIX века...






































Созидание как эволюция: офис бюро «Крупный план»
Равновесие, цельность и гармония как результат работы архитектора…
Ландшафтный архитектор. Инженер. Проектировщик. Логик.
«Мода в интерьере — это зеркало нашего быта»...
Храм в городе 
11
22
33
44
55
66
77
88
99
1010 