Молодая семейная пара обратилась к дизайнеру Кристине Араповой с пожеланием создать яркий и запоминающийся загородный интерьер с дизайнерскими трендами и нетривиальными решениями. Трехэтажный дуплекс находится в коттеджном поселке, приобретался он с перспективой роста семьи, поэтому крайне важно было создать не только эффектное, но и удобное пространство для жизни, отдыха и приема гостей.
«Между собой мы этот проект называли «Серенити», - рассказывает Кристина Арапова. – Когда мы приступали к работе, цветами года по версии компании Pantone стали «розовый кварц» и «серенити». Удача заключалась в том, что они оба являются любимыми цветами хозяйки дома, поэтому нежные розовый, бежевый и голубой составили основу палитры всего интерьера дома».
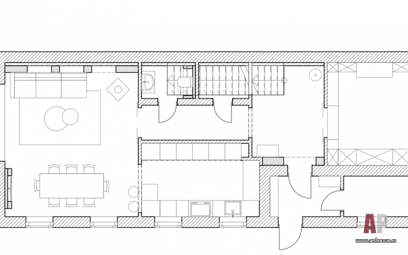
Трехэтажный дуплекс площадью 250 кв. м имеет сильно вытянутую вдоль участка форму. Это сначала вызвало опасение, что создать удобную планировку будет сложно, но дизайнеру удалось организовать пространство так, что в итоге получилось даже больше комнат, чем планировали, а сам объем обрел ясность и симметрию.
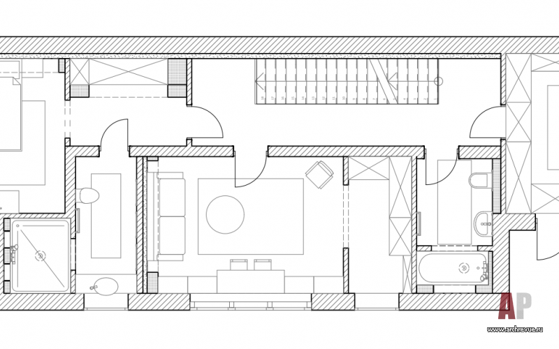
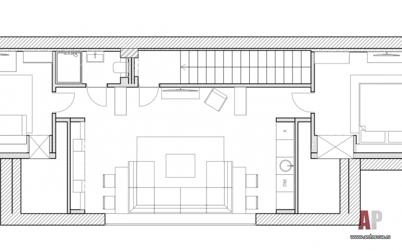
У заказчиков было несколько основных пожеланий: функциональная кухня (хозяйка много готовит), гостиная-столовая с большим обеденным столом для приемов гостей, отдельная гардеробная при входе для хранения одежды и обуви (чтобы удобно было сразу составлять луки), комфортная и эстетически вдохновляющая постирочная (заказчица занимается хозяйством сама). В итоге ядро первого этажа составила гостиная, совмещенная со столовой, из нее есть выход на уличную территорию и веранду, а также на кухню. Кухня, хотя и соединена с общей зоной проемом, выглядит обособлено, вся рабочая часть и зона приготовления пищи скрыты от гостей. Второй этаж занимают две спальни со своими ванными комнатами и гардеробными, а также просторная постирочная с окном. «Третий, мансардный этаж поначалу совсем не воспринимался заказчиками как полноценная жилая зона. Из-за скошенной кровли они не представляли, что можно здесь сделать, как использовать пространство, - рассказывает автор проекта.- Мы разделили объем на три зоны: в двух крыльях разместили кабинет и гостевую спальню, а центральную зону превратили в чилл-аут, камерную гостиную с мини-кухней, баром, зоной отдыха и душевой».
Особенность этого проекта – необычная цветовая гамма, в основе которой сложный голубой оттенок «серенити» (безмятежность), и обилие дизайнерских решений и предметов, которые создают атмосферу модного европейского интерьера. «Сложность была в том, что заказчица изначально была против привычных натуральных материалов: шпона дерева, слэбов камня. Даже паркет нужно было выбрать такой, чтобы фактура дерева не читалась!
Не нравилась ей и отделка мебели и аксессуаров золотом и латунью, - рассказывает Кристина Арапова. – Поэтому мы сместили акценты на сложные цветовые решения, деревянные изделия с эмалевым финишем, каменную мозаику и обои с геометрическим рисунком. Единственной «вольностью» стала отделка задней стенки библиотеки в гостиной обоями с изображением среза полудрагоценного камня». Дом настолько полюбился своим владельцам, что у истории появилось продолжение. Они выкупили соседнюю часть дуплекса и поручили Кристине Агаповой оформить его в том же ключе, а потом объединить два объема в большой семейный дом с общим настроением безмятежности.
Комплектация объекта
Строительство, компания Mianoff
Строительные и отделочные материалы и изделия
Двери, поставщик Union
Декоративная финишная отделка стен, краска Little Greene и Benjamin Moore
Обои York Wallcoverings (серия Candice Olsen и Modern Lux), Jaima Brown (серия Chelsea Lane), Cole & Son (серия Geometric II)
Декор из полиуретана Orac Decor
Массивная доска, поставщик Coswick
Свет Slamp (модель Ceremony Chandelier), Jonathan Adler, Farol, El Torrent, Vistosi, Brokis, Driade
Аксессуары, вазы Farol
Живопись, «Квартира S галерея»
Ковры, поставщики Dovlet House, Kover.ru
Сантехника Villeroy & Boch, Laufen, смесители Axor
Мебель
Прихожая стул Deep House, столик Zara Home
Гостиная диван Britannica, журнальный стол Enjoy Home
Столовая обеденный стол Pranzo (модельTrack), стулья Pranzo (модель Amalfi)
Кухня Alba
Спальня кровать Dream Land, тумбочки на заказ по эскизам дизайнера, ручки Restoration Hardware
Кабинет письменный стол The Idea, стеллажи по эскизам дизайнера, журнальные столики и стул, поставщик DesingBoom, диван Estetica
Детская кровать Dream Land, стол и шкафы по эскизам дизайнера, столик Farol, журнальный стол, поставщик DesingBoom
Прачечная мебель по эскизам дизайнера, кресло Dmytry Samygin
Оборудование
Электроустановочные изделия Simon
Оборудование кухни встроенная техника Siemens
Фотограф: Евгений Кулибаба
Стилист: Дарья Соболева
Дом с бионической архитектурой в Подмосковье
Квартира в духе итальянских вилл Поиски нового офиса привели владельцев архитектурного бюро «Крупный план» к неожиданному, но очень значимому шагу – приобретению особняка - объекта культурного наследия XIX века...


































Созидание как эволюция: офис бюро «Крупный план»
Равновесие, цельность и гармония как результат работы архитектора…
Ландшафтный архитектор. Инженер. Проектировщик. Логик.
«Мода в интерьере — это зеркало нашего быта»...
Храм в городе 
11
22
33
44
55
66
77
88
99
1010 