Заказчик дизайнеров Максима и Евгении Константиновых живет между Москвой и Санкт-Петербургом, поэтому квартиру в клубном доме на Басманной улице он задумывал как транзитную. Квартира площадью 115 кв. м расположена на 10 этаже, из ее окон открывается прекрасный вид на старую Москву.
Именно эту захватывающую перспективу, а также ощущение свободы и бескрайнего неба над головой дизайнеры и предложили сделать основным акцентом интерьера. Для этого они утеплили балкон, установили бельгийское окно в пол с минимальным количеством створок (не нарушив внешнего вида фасада здания), сделали барную стойку на стеклянной опоре и создали зону view point, где можно любоваться видами и расслабляться в приятной компании. Стилистически интерьер получился лаконичным и строгим: сам жанр мужской видовой квартиры требовал чистых линий, минималистичного дизайна, качественных отделочных материалов и однотонных цветовых заливок.
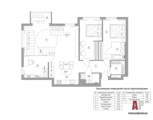
Заказчик попросил спроектировать на 115 кв. м общую гостиную, кухню, две спальни, два санузла, кабинет и гардеробную. Большой удачей стало то, что квартира сдавалась в свободной планировке, так что дизайнеры смогли реализовать все пожелания заказчика и создать большие светлые объемы.
Центральное место занимает просторный open space с видовой зоной на месте присоединенного балкона. «Очень важно было продумать обособленное пространство под кабинет, - рассказывают авторы проекта. – Ставить еще одну глухую перегородку не хотелось, поэтому мы построили в гостиной стеклянный куб и в нем разместили рабочую зону и библиотеку со встроенной откидной кроватью… В спальне мы реализовали еще одно нестандартное решение – отделили зону сна от ванной комнаты стеклянной перегородкой».
Интерьер квартиры выполнен в духе современных тенденций: светлая цветовая гамма, крупный масштаб, игра с объемами с помощью стекла и зеркал. Пол во всех помещениях единый, глянцевый с рисунком мрамора Calacatta.
Внешние стены санузла и гардеробной объединяет два зеркальных панно с геометрическими элементами. Уют и теплоту в интерьер гостиной вносят стеновые панели, интегрированные в них двери invisible, ведущие в спальни, и шкафы кухонного гарнитура из натурального дуба. Ярким декоративным акцентом служат дизайнерские светильники, а также текстиль и аксессуары сине-голубого цвета. Они ассоциируются с небом, морем, путешествиями и парусным спортом.
Комплектация объекта
Строительные и отделочные материалы и изделия
Изделия из зеркал, компания «Папа Карло»
Двери, поставщик «Софья»
Стеновые панели, поставщики «Софья», Yactline
Брашированный мрамор Salvatori (Tratti Bianco Carrara), поставщик Krassky
Финишная отделка стен и потолков, краска Little Greene и Benjamin Moore
Декоративная штукатурка «Папирус» и «Рогожка», поставщик Finex
Пол, инженерная доска Bauwerk Parquet (коллекция Villapark цвет Avorio), поставщик Krassky
Керамогранит Ariostea (Bianco Calacatta и Onice Ivory), поставщик салон «АрхКерамика»
Плитка Mutina (серия Puzzle)
Свет декоративный Gubi, поставщик Krassky
Свет встроенный, поставщик Centrsvet
Ковры, поставщик «Kovёr Buro»
Декор, аксессуары, поставщики Ceramum, Happy Collections, Zara Home, BoConcept
Постельное белье, поставщики Atelier Tati
Искусство, галерея Artis gallery
Сантехника Duravit, смесители Axor, инсталляции Geberit, полотенцесушитель Tubes Radiatori (коллекция Scaletta, модель Freestanding), двери из стекла в душевой Kermi
Мебель
Гостиная диваны, кофейный столик BoConcept, кофейный столик Bontempi; тумба под ТВ Novamobili, поставщик «ТРИО-Интерьер»
Барная зона барная стойка, компания Yactline; барные стулья Cattelan Italia
Кабинет рабочий стол, кресло, стеклянные полки Bontempi; стеллаж с кроватью-трансформером, на заказ
Столовая стулья Poliform, поставщик «ТРИО-Интерьер»
Кухня кухонная мебель Leicht, поставщик Buhanov Group
Спальня прикроватные столики Bontempi, кровать Bolzan Letti, поставщик «ТРИО-Интерьер»; шкаф, на заказ, изготовление Yactline
Гостевая спальня прикроватные столики Bontempi, кровать Bolzan, поставщик «ТРИО-Интерьер»; шкаф, на заказ, изготовление Yactline
Мебель для ванных комнат, на заказ, изготовление Yactline
Оборудование
Оборудование кухни вытяжка кухонная Elica, кухонная техника Asko, AEG, Franke, Neff
Фотограф: Ольга Мелекесцева
Стилист: Анастасия Корбут
Функциональная квартира для большой семьи
Роскошный частный особняк в центре Санкт-Петербурга О профессии «ландшафтный архитектор», образовании и специфике частных и общественных ландшафтных проектов говорим с Иваном Бугаевым…



























Равновесие, цельность и гармония как результат работы архитектора…
Ландшафтный архитектор. Инженер. Проектировщик. Логик.
«Мода в интерьере — это зеркало нашего быта»...
Храм в городе
Три кита современного стиля 
11
22
33
44
55
66
77
88
99
1010 