Для сына давнего заказчика архитектор Кирилл Егоров спроектировал и оформил небольшую трехкомнатную квартиру в новом доме и лейтмотивом всего интерьера он сделал древнюю японскую игру го. В игре используется разлинованная на квадраты деревянная доска и небольшие игральные камни черного и белого цвета. В итоге минимализм, монохром, природная фактура дерева легли в основу функционального интерьера для одного хозяина.
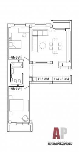
Архитектор Кирилл Егоров вспоминает, что изначально это была типовая квартира со скучной планировкой в монолитном доме. Широкий коридор, много маленьких комнат, большое количество дверей. Поскольку в квартире планировал проживать один человек (в перспективе – молодая семья), он предложил объединить коридор с прихожей, а гостиную с кухней, создав большие открытые помещения.
Спальня и детская остались изолированными, их разделила расположенная по центру коридора ванная комната. Она получилась в ходе объединения раздельных санузлов и позволила убрать «лишнюю» дверь из композиции открытого пространства. «В итоге мы добились главного – создали более ясное для восприятия пространство с осевым построением, открытой гостиной-кухней-коридором и изолированным приватным блоком. Чистое, понятное, со строгой геометрией», - отмечает автор проекта.
Декоративное решение поддерживает идею открытой архитектуры: единый цвет стен и материал напольного покрытия все всех помещениях визуально объединяет пространство, стирает границы, делает объем более цельным и просторным. Тектоники добавляют деревянные потолочные балки, ими обозначены перепады в уровнях потолков.
Отделочные материалы выбраны простые и практичные: стены выкрашены однотонной матовой краской серого цвета, на полу жилых помещений – виниловое покрытие с рисунком широкой доски, стены и пол санузла облицованы брутальным серым керамогранитом. Большая часть мебели сделана по эскизам автора проекта: система хранения в холле, комод под ТВ со светлыми фасадами контрастируют с темным деревом кухни и коричневой обивкой углового дивана. Отделка навесных кухонных шкафов шпоном дуба, выполненная из цельного деревянного слэба столешница обеденного стола, открытый технический свет на черных шинах привносит в интерьер едва уловимые нотки лофта. А настенное авторское панно «Го» придает созерцательный характер. Сам архитектор называет проект логовом Степного Волка, в нем идеально соблюден баланс эстетики и брутальности.
Комплектация объекта
Строительные и отделочные материалы и изделия
Изделия из дерева, компания «Орнамент»
Двери, поставщик Union
Стеновые покрытия, краска, Dulux
Керамогранит Arch-Skin
Свет Faro, поставщик FARO Barcelona
Сантехника Villeroy & Boch, Viega
Мебель
Прихожая встроенный шкаф, на заказ
Гостиная диван Alberta Salotti, журнальный столик Cattelan Italia; ТВ-комод, стеллажи, на заказ
Кухня Miton
Столовая стулья Bontempi; обеденный стол, на заказ
Спальня кровать Bolzan, прикроватные тумбы Orme, кресло Alberta Salotti
Мебель на заказ - «Орнамент»
Оборудование
Аудио- и видеотехника Vincent
Оборудование кухни Siemens
Эклектичный дом с элементами ар-деко
Американская квартира на Крестовском острове О профессии «ландшафтный архитектор», образовании и специфике частных и общественных ландшафтных проектов говорим с Иваном Бугаевым…


























Созидание как эволюция: офис бюро «Крупный план»
Равновесие, цельность и гармония как результат работы архитектора…
Ландшафтный архитектор. Инженер. Проектировщик. Логик.
«Мода в интерьере — это зеркало нашего быта»...
Храм в городе 
11
22
33
44
55
66
77
88
99
1010 