В современном жилом комплексе в районе Патриарших прудов архитекторы бюро Artechnology оформили апартаменты площадью 200 кв. м, сделав в них акцент на современный дизайн и большую гостиную, которая стала смысловым центром интерьера.
«Заказчик обратился к нам не в первый раз. Но в данном случае стояла задача создать квартиру для временного проживания, семейных и деловых встреч в центре города, - рассказывает один из архитекторов проекта Анастасия Поваляева. – Требовалось спроектировать большую общую зону и две спальни с ванными и гардеробной. Стилистика была выбрана современная, с натуральными природными материалами и знаковой дизайнерской мебелью».
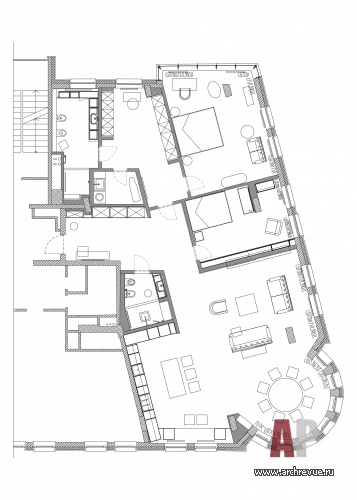
Квартира изначально имела огромное преимущество в виде полукруглого эркера и большого количества окон, однако хаотично расставленные конструктивные пилоны осложняли работу с пространством.
Чтобы пилоны не съедали полезную площадь, архитекторы постарались максимально вписать их в пространство, обыграть как часть общей интерьерной композиции, обрамление встроенной мебели. Центральное помещение в квартире – гостиная, пространство организовано так, что из прихожей сразу попадаешь в общую зону: просторную и светлую. Две спальни, ванные комнаты и большая гардеробная находятся в противоположном крыле. Архитекторы не только выгодно расположили просторный опен-спейс, но и удачно разбили его по зонам, выделив диванную группу, парадную обеденную зону с панорамным видом на город и функциональную кухню с островом-барной стойкой для легких фуршетов.
Заказчик поставил задачу создать современный интерьер: светлый, с легким настроением и обилием воздуха. «Изначально клиенты хотели полностью монохромную квартиру, но в процессе работы стали появляться акценты и яркие цветовые пятна в интерьере: мебель, текстиль, искусство», - рассказывает архитектор Светлана Ли.
Основу интерьера составляют большие цветовые заливки и строгие геометрические формы. Главный декоративный акцент гостиной – каменная стена: плиты разных размеров из натурального песчаника задают интерьеру ритм и организуют пространство. С ними рифмуются стеллажи: созданный по эскизам компанией De Castelli металлический стеллаж (он встроен в пилон между столовой и кухней) и библиотека из темного дерева с четким ритмом полок в зоне отдыха.
Комплектация объекта
Строительные и отделочные материалы и изделия
Двери Rimadesio
Декоративные финишные отделки стен, поставщик «Стенология»
Обои Omexco, поставщик Skol
Паркет Foglie d`Oro
Свет Delta Light, Molto Luce, Cattelan Italia, Chelsom
Ковры, поставщики Loloey, Jerome Botanic
Аксессуары, вазы BoConcept, Attribute, Anna Torfs
Искусство, «Галерея Дмитрия Барановского»
Постельное белье, поставщик Amalia Home Collection; покрывала, поставщики Loffilab и Lelievre
Сантехника Teknobili
Мебель
Гостиная кресло и журнальный столик Selva, диван, консоль Molteni&C, стеллажи Meritalia и De Castelli
Столовая обеденный стол, стулья Cattelan Italia
Кухня кухонный гарнитур Cesar, барные стулья Cattelan Italia, стулья у окна Gubi
Главная спальня кровать Meritalia, прикроватные тумбочки Presotto Italia, стол, кресло, стеллаж Porada, диван Meridiani
Гостевая спальня кровать Meridiani, прикроватная тумбочка Mobilidea
Гардеробная мебель для гардеробной Rimadesio, кушетка Gubi
Мебель для ванных комнат L'Origine
Оборудование
Электроустановочные изделия GIRA
Светлый пентхаус с элементами современной классики
Тактильная квартира в Москве Поиски нового офиса привели владельцев архитектурного бюро «Крупный план» к неожиданному, но очень значимому шагу – приобретению особняка - объекта культурного наследия XIX века...
























Созидание как эволюция: офис бюро «Крупный план»
Равновесие, цельность и гармония как результат работы архитектора…
Ландшафтный архитектор. Инженер. Проектировщик. Логик.
«Мода в интерьере — это зеркало нашего быта»...
Храм в городе 
11
22
33
44
55
66
77
88
99
1010 