Этот пентхаус с панорамной террасой дизайнер Ирина Крашенинникова оформила для молодой семейной пары с тремя детьми – людей энергичных, с хорошим вкусом и сходными взглядами на современное пространство. К проектированию семейного жилья заказчики подошли серьезно: они четко понимали, что хотят комфортный и стильный интерьер в духе современной классики – элегантный (без нарядности), с дорогими материалами и единой декоративной линией.
«Для меня в интерьере важна эмоциональная составляющая, она создает настроение и определяет выбор мебели, декора, аксессуаров, - рассказывает Ирина Крашенинникова. – Этот объект был красивым даже «в бетоне»: панорамные окна на две стороны, идеальная геометрия, почти полное отсутствие несущих конструкций и великолепный вид на всю Москву... Много неба… Именно ощущение свободы и близости неба вдохновили на создание пронизанного воздухом светлого пространства, в декоре которого рифмуются и небоскребы Сити, и золотые купола Новодевичьего монастыря, и холодная палитра московского воздуха».
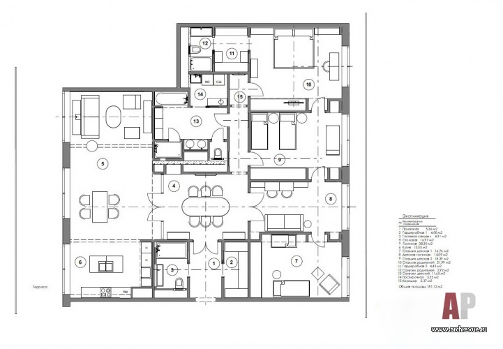
Техническое задание включало создание трех спален (родительской и двух детских), двух гостиных (общей семейной и детской – для игр, занятий и уютного общения), трех санузлов, кухни с обеденной зоной для всей семьи и большой парадной столовой для торжественных приемов. Изначально заказчики хотели нестандартного подхода к планировке, и были готовы к эксперименту.
Дизайнер предложила впустить небо внутрь и создать пространство, которое работает на просвет. Для этого выстроила анфилады, которые пересекаются друг с другом и создают интересные перспективы. Функционально квартира разделена на два блока: общую гостиную с кухней и приватную анфиладу, которая включает малую (детскую) гостиную и спальные комнаты. По центру объема находится парадная столовая: из помещения с тремя дверями отлично просматриваются жилые зоны, которые воспринимаются как цельная интерьерная композиция, и московские виды, от края до края… У спальни родителей есть собственная гардеробная и санузел. В детский санузел и постирочную можно попасть через служебный коридор. При входе в квартиру находится гостевой санузел и просторная гардеробная.
Ключом к декоративному образу пентхауса стала палитра московского неба: прохладные жемчужно-серые и серо-голубые оттенки объединяют все без исключения помещения. Так, например, для фасадов кухни выбран насыщенный цвет, сочетающийся с сине-зелеными башнями Сити, которые видны из окна кухни.
В интерьере часто используется золотая латунь – это перекличка с золотом куполов Новодевичьего монастыря, расположенного рядом, черный сварной металл, фактура натурального дерева. Мебель на заказ здесь гармонирует с предметами европейских фабрик и винтажными аксессуарами. Притом, как всегда, в интерьерах Ирины Крашенинниковой, в проекте много оригинальных, редких на российском рынке изделий небольших фабрик: например, необычные люстры-косы или светильники-капли. Особую роль играет искусство, которое своей плотной колористикой и большими размерами задает масштаб и по-хорошему «заземляет» парящий в небе интерьер.
Комплектация объекта
Строительные и отделочные материалы и изделия
Изделия из дерева, двери, обрамления проемов, плинтус, компания «Поверхности и Предметы»
Изделия из металла, стальная перегородка, компания Ivegroup
Лепной декор из гипса, поставщик «Идеал Декор»
Декоративная финишная отделка стен, краска Derufa, серия H&H, Gluck
Мрамор Viscount White, Petra Antiqua, плитка Mutina, поставщик RIM.ru
Паркет, поставщик Finex
Свет Serip, Mammalampa, Masiero, Glassburg; винтаж, поставщик Lamps of 50-60-70s
Сантехника бетонная раковина, раковины ArtCeram, ванна Vispool, смесители Dornbracht, Nicolazzi, Tres, унитазы TOTO
Кожаные аксессуары Pinetti
Текстиль Togas
Ковры, поставщик Dovlet House
Искусство, «Арт-галерея «К35»», Osnova
Мебель
Гостиная диван Cava, кресла JLC и Ana Roque, комод WeWood, стол журнальный Henge
Столовая обеденный стол Ana Roque, стулья Potocco, шкафы Hamilton Conte
Кухня, кухонный гарнитур, на заказ; стулья Vondom
Спальня родителей кровать King Koil, туалетный стол Ana Roque, табурет Global Views
Детская гостиная диван и пуф Cava, система хранения с рабочими столами String
Детская кровати Samoa, прикроватные тумбы Mercantini, кушетка Ana Roque, гардеробные шкафы, на заказ
Терраса Vondom
Корпусная мебель на заказ, встроенная мебель – изготовление «Поверхности и Предметы»
Оборудование
Системы вентиляции и кондиционирования Daikin
Электроустановочные изделия Jung
Домашний кинотеатр Epson
Полотенцесушители Broner
Дом с декором в духе соцреализма
Современная квартира с большой гостиной О профессии «ландшафтный архитектор», образовании и специфике частных и общественных ландшафтных проектов говорим с Иваном Бугаевым…




























Созидание как эволюция: офис бюро «Крупный план»
Равновесие, цельность и гармония как результат работы архитектора…
Ландшафтный архитектор. Инженер. Проектировщик. Логик.
«Мода в интерьере — это зеркало нашего быта»...
Храм в городе 
11
22
33
44
55
66
77
88
99
1010 