Архитектору Кириллу Соколову достался непростой объект: двухэтажный пентхаус на 24 этаже московской высотки изначально имел существенную особенность – значительную часть его площади «съедал» лестничный проем. Но архитектор увидел потенциал объекта, переформатировал пространство, перенес лестницу и создал рациональное городское жилье для семьи с тремя детьми.
Что касается стилистики, то заказчики сделали выбор в пользу современного интерьера: светлого, уютного, без лишнего декора в духе разумного минимализма, который по духу очень близок автору проекта.
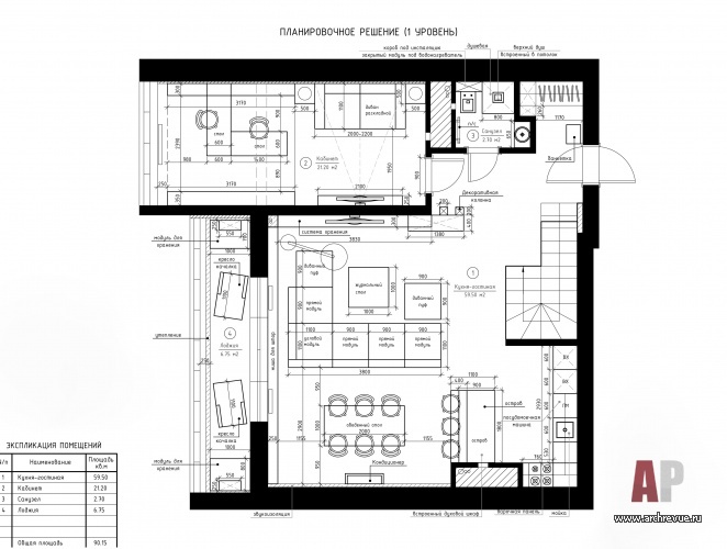
Двухэтажная квартира площадью 180 кв. м сдавалась в свободной планировке, сложность представлял только неудачно расположенный лестничный проем, который занимал слишком много места. Архитектор перенес лестницу к одной из стен и тем самым увеличил полезную жилую площадь.
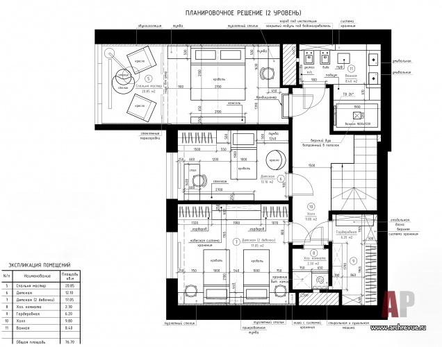
Перепланировка позволила создать рациональное жилье с большими помещениями и открытыми перспективами. Первый этаж почти целиком занимает опен спейс гостиной-столовой-кухни. К нему примыкает кабинет на два рабочих места, остекленная лоджия с зоной отдыха и гостевой санузел с душевой. Второй этаж включает три спальни: хозяйскую, комнату двоих дочерей и спальню сына, а также ванную комнату и гардеробную. Из хозяйской спальни организован выход в зимний сад с прекрасным видом на панораму Москвы.
Интерьер выполнен в духе функционального минимализма. Рациональная архитектура продиктовала использование предметов простых форм, со строгой геометрией и лаконичным декором. Природный камень, стекло, металл – брутальные, «мужские» материалы уравновешивают фактуры дерева, текстиль, а также 3D-панели из гипса с рельефом.
Заказчики предпочитают спокойные оттенки в интерьере, поэтому архитектор использовал природные монохромные оттенки: от молочно-кофейного до серо-коричневого. Яркие акценты появились только в детских комнатах. Работа над столь сложным проектом не обошлась без нюансов: «При монтаже лестницы из-за несогласованности действий рабочих разбилось стеклянное ограждение. Цельное полотно по габаритам не проходило в лифт, а потому пришлось по второму разу заносить его на 24-й этаж вручную по лестнице. Поднимали стекло 12 человек», - вспоминает Кирилл Соколов.
Комплектация объекта
Строительные и отделочные материалы и изделия
Двери, поставщик «Софья»
Декоративная финишная отделка стен, краска Tikkurila
Рельефные 3D-панели, поставщик Artpole
Паркетная доска, Timberwise
Керамогранит Atlas Concorde
Свет IDL (модель Luce da Vivere), Vistosi, Ideal Lux, Vibia, Lightstar
Сантехника Roca, Hansgrohe, Riho
Аксессуары, декор Vitra
Мебель
Гостиная Bonaldo
Столовая зона обеденный стол Bonaldo (модель Mille), стулья Bonaldo (модель Venere)
Кухня, на заказ
Кабинет на два рабочих места кресла EasyChair; стол, стеллажи на заказ
Спальня Vitra
Детская Bonaldo, Kartell, Vitra
Оборудование
Системы вентиляции и кондиционирования Daikin
Электроустановочные изделия Legrand
Городские джунгли
Буржуазная квартира в Москве О профессии «ландшафтный архитектор», образовании и специфике частных и общественных ландшафтных проектов говорим с Иваном Бугаевым…
























Созидание как эволюция: офис бюро «Крупный план»
Равновесие, цельность и гармония как результат работы архитектора…
Ландшафтный архитектор. Инженер. Проектировщик. Логик.
«Мода в интерьере — это зеркало нашего быта»...
Храм в городе 
11
22
33
44
55
66
77
88
99
1010 