Дизайнер Тина Гуревич спроектировала легкий и изящный интерьер, который стал для ее заказчицы элегантным началом новой жизни. В трехкомнатной квартире площадью 105 кв. м она планировала жить одна, наслаждаться близостью парка и принимать близких друзей и взрослого сына с женой.
«Пожелание было одно: чтобы новая квартира была полностью не похожа на предыдущее жилье, сделанное в строгой стилистике с обилием темного дерева и монохромной цветовой палитрой, - рассказывает автор проекта Тина Гуревич. – Я предложила легкий и наполненный светом проект, женственный и романтичный, с отсылками к неоклассике и жемчужно-лиловой цветовой гаммой. Для себя назвала его «Лиловая дымка», мне он напоминает весенний день в саду, где все благоухает и наполняет радостью жизни».
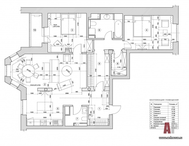
Квартира с окнами на две стороны и трапециевидным эркером изначально имела не очень удобную планировку с центральной полукруглой стеной, вокруг которой группировались жилые помещения. Дизайнер убрала эту стену и вместо нее спроектировала проходную гардеробную, которая отделила гостиную от входного блока.
Проходная гардеробная позволила решить еще одну задачу: создать изолированную от гостевого пространства хозяйскую территорию. Помимо гардеробной она включает большую спальню и санузел, попасть на хозяйскую половину можно прямо от входа, минуя общие помещения. Гостевая часть представляет собой просторный опен-спейс гостиной, столовой и кухни, из него организован проход в гостевую спальню. Гардероб для верхней одежды и гостевой санузел расположены при входе в квартиру. Таким образом, разделив объем на две изолированные части (хозяйскую и гостевую), дизайнер добилась оптимальной планировки и обеспечила заказчице и ее гостям приватность.
Концепция интерьера сложилась быстро: цветовая гамма была выбрана и утверждена заказчицей буквально на первых двух встречах. Пудровые и лиловые оттенки сирени и магнолии создали приятный глазу интерьер, где хорошо отдыхать и предаваться мечтам, а также стали фоном, который выгодно подчеркнул красоту и изысканность мебели, светильников и предметов обстановки.
Элегантный вид современному интерьеру придают классические элементы: лепные потолочные карнизы из гипса, светлый дубовый паркет, уложенный французской елкой, двери с филенками, шкафы с расстекловкой… Особое внимание привлекают панно из камня, которыми украшена зона камина и кухонный фартук. Чтобы создать интерьер с индивидуальным характером, значительную часть мебели и декоративных изделий дизайнер изготовила на заказ в московских мастерских. Особый вневременной шик добавляют винтажные предметы (например, роскошные модернистски светильники из Италии в гостиной) и предметы искусства.
Комплектация объекта
Строительные и отделочные материалы и изделия
Изделия из дерева, компания «Ателье мебели Сергея Карташова»
Двери, компания «Атрибутэ»
Дверные ручки, мебельная фурнитура, поставщики Soda homedecor, «Латунье»
Текстильный дизайн, Apriori Home
Лепной декор из гипса, поставщик «Дикарт»
Декоративная финишная отделка стен, краска Sherwin-Williams, поставщик Apriori Home
Камень, мрамор Chipollino Rosso, поставщик Stone Alliance Group; мрамор Crema Nova, монтаж «Альпари СТК»
Паркет, французская елка, массив дуба, поставщик «Империал-СФ»
Керамогранит, поставщик RM-Ceramiche
Свет Barovier & Toso, Visual Comfort & Co, Regenbogen; Amitacor, поставщик «Фламинго Свет»; LeHome, Lamps of 50-60-70s
Сантехника Villeroy & Boch, смеситель на раковине Jorger, смеситель на ванне Devon & Devon
Ковры, поставщик Dovlet House
Живопись, Any Home; гравюры, Art4interior
Флордизайн, растения, компания Treez Collection
Мебель
Прихожая шкаф, на заказ, изготовление «Атрибутэ»; консоль Galimberti Nino и кресло Softhouse, поставщик Mydesign Store
Гостиная стол и буфет, на заказ, изготовление Ariyana; журнальный стол Latunes, диван, кресло Softhouse, поставщик Mydesign Store
Кухня Aster Cucine
Спальня кровать, кресла Softhouse, поставщик Mydesign Store; тумбочки, консоль, на заказ, изготовление Ariyana; столик, поставщик Decorum
Гостевая спальня кровать Estetica; тумбочки, поставщик Mydesign Store
Мебель для ванных комнат, мебель для гардеробной комнаты, на заказ, изготовление «Ателье мебели Сергея Карташова»
Оборудование
Оборудование кухни, бытовая техника Smeg
Французский дом в Подмосковье
Бутик-отель «Родники» О профессии «ландшафтный архитектор», образовании и специфике частных и общественных ландшафтных проектов говорим с Иваном Бугаевым…

























Созидание как эволюция: офис бюро «Крупный план»
Равновесие, цельность и гармония как результат работы архитектора…
Ландшафтный архитектор. Инженер. Проектировщик. Логик.
«Мода в интерьере — это зеркало нашего быта»...
Храм в городе 
11
22
33
44
55
66
77
88
99
1010 