Семейная пара с детьми точно знала, каким будет их новый дом: светлым, с яркой изумрудной и синей мебелью и парижским шармом. Чтобы превратить мечту в реальность, заказчики обратились к дизайнеру Светлане Шандыбиной, которая мастерски обыграла в интерьере французскую тему и создала эстетский интерьер с изящным лепным декором, мраморным камином и актуальной итальянской мебелью.
«Мне очень повезло с заказчиками! Это люди с хорошим вкусом, они разбираются в современных трендах и готовы сочетать несочетаемое: буазери, кессоны, пышные классические карнизы, люстры, люстры из муранского стекла и другие приметы парадной классики с дизайнерскими диванами и креслами насыщенного изумрудного и синего цветов», - рассказывает автор проекта.
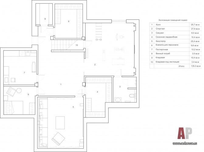
Трехэтажный дом с эксплуатируемым цоколем общей площадью 530 кв. м. сдавался в бетоне. «Перегородок не было совсем, только несущие металлические колонны зонировали пространство. Почти все колонны удалось убрать в стены, осталась лишь одна – по центру общей гостиной. Заказчики хотели большое открытое пространство, поэтому нам пришлось долго думать, как обыграть опору в интерьере», - вспоминает дизайнер Светлана Шалдыбина.
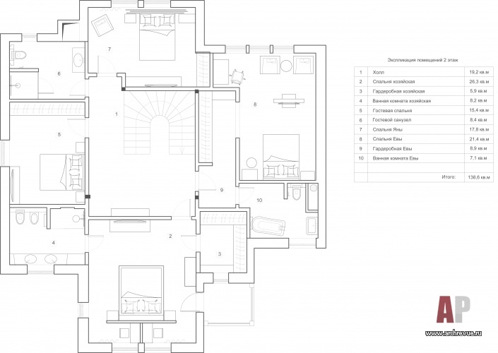
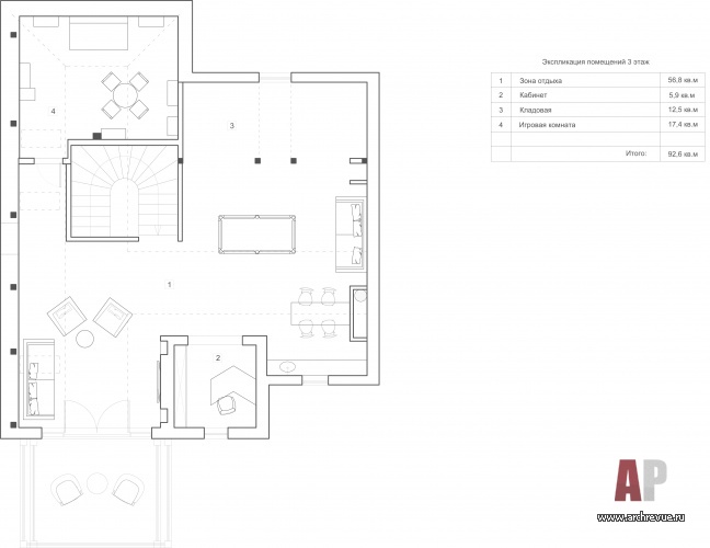
Чтобы спрятать оставшуюся на виду колонну, дизайнер придумала конструкцию из лепнины и зеркал, которая стала доминантной интерьера, своего рода арт-объектом. Опен-спейс первого этажа имеет площадь 100 кв. м, он разделен на функциональные зоны: гостиную, зону отдыха у камина, музыкальный салон с роялем и столовую. Второй этаж отдан приватным спальням, в мансарде обустроена игровая зона и бар. На самом нижнем уровне находится спортзал, кинозал, винный погреб и технические помещения. В целом, в доме постоянно проживает семья из трёх человек, старшая дочь с мужем приезжает в гости.
Ключом к декоративному облику дома стало необычное цветовое решение, где на фоне холодных былых стен с черными фрагментами активными доминантами выглядят диваны и кресла изумрудно-зеленого и синего цветов. «Основная идея первого этажа – это сложное оформление стен за счет лепного декора, который дает объем и светотени, Такое решение позволило сделать белые стены выразительными, не перегружая пространство», - отмечает дизайнер.
С белыми стенами контрастируют черные фрагменты: отделка дымохода камина, оконные рамы, абажуры светильников, знаменитые кожаные обожженные стулья MOOOI. Как современная скульптура выглядит конструкция из гипса и зеркал, внутри которой спрятана несущая колонна. «Место с колонной – первое, что видишь от входа, чтобы растворить ее в объеме, нам нужно было «сломать» форму», превратить ее в элемент дизайна», - рассказывает Светлана Шалдыбина. В стиле современной классики с элементами актуального дизайна выполнены и остальные помещения: спальни хозяев, санузлы и гостевая зона в мансарде.
Комплектация объекта
Строительные и отделочные материалы и изделия
Лепной декор из гипса, поставщик «Петергоф»
Декоративная финишная отделка стен, краска Farrow & Ball и Little Greene, поставщик «Салон краски»
Изделия из металла, перегородка, мебель в ванную комнату, компания Make Loft
Панели из металла, поставщик Dordi
Плитка, поставщики «МастерДом», «Кредит Керамика», Lucido
Паркет, поставщик Villa di Parchetti
Подоконники из мрамора, изготовитель «Верона Групп»
Стеклянные перегородки в душевой, изготовитель «ДПИ-Люкс»
Свет Barovier & Toso, Artemide, Karman, Nemo, Vibia, Flos, поставщик Italmond
Сантехника Villeroy & Boch, Boheme, Teak&Water, Noken, смесители Dornbracht, Nicolazzi, Gessi, Hansgrohe, поставщики «Макслевел» и «МастерДом»
Мебель
Прихожая комод и кресло Creazioni
Гостиная диваны и придиванные столики Molteni&C, кресла Cassina (модель 637 Utrecht), диван B&B Italia, кресло Vitra, буфет Opinion Ciatti
Столовая обеденный стол Bonaldo, стулья Bonaldo, Molteni&C, MOOOI
Кухня Modulnova
Спальня кровать Arketipo, прикроватные тумбы Creazioni
Кабинет, бар, на заказ
Оборудование
Электроустановочные изделия T&J Electric Russia, Jung, ABB, GIRA, Berker
Чугунные радиаторы Exemet, поставщик «Евроинжинс»
Деревянный дом под Тарусой
Женская квартира в припыленных лиловых тонах О профессии «ландшафтный архитектор», образовании и специфике частных и общественных ландшафтных проектов говорим с Иваном Бугаевым…




































Созидание как эволюция: офис бюро «Крупный план»
Равновесие, цельность и гармония как результат работы архитектора…
Ландшафтный архитектор. Инженер. Проектировщик. Логик.
«Мода в интерьере — это зеркало нашего быта»...
Храм в городе 
11
22
33
44
55
66
77
88
99
1010 