Перед архитектором Александром Кривицким заказчики поставили амбициозную задачу – создать идеальный дом мечты: просторный, комфортный, роскошный, который стал бы родовым поместьем для нескольких поколений семьи.
В распоряжение предоставили участок площадью 30 соток с вековыми соснами и удачным расположением. «На нем мы закомпоновали классический двухэтажный особняк с эксплуатируемым цоколем, флигелем для персонала и беседкой. Построенный на осях, с видовыми перспективами и симметричным объемами основной дом отсылает к традициям русской усадебной архитектуры и выглядит эффектно благодаря оформлению фасадов клинкерным кирпичом красного цвета, элементами из камня и панно из смальтовой мозаики», - рассказывает автор проекта.
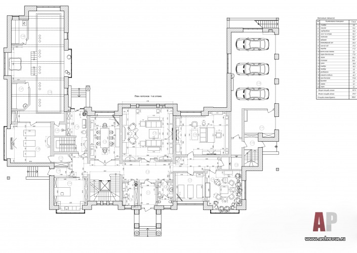
Статный особняк в плане имеет «П»-образную форму: в центральный объем вынесены основные помещения, парадный вход и выход в сад, в пристроенных объемах находятся дополнительные помещения: зона СПА с бассейном, гараж и технические службы.
Все пространства большие, просторные, с правильной геометрией и продуманными видовыми перспективами. Ядро первого этажа – роскошная анфилада, включающая входную группу и просторную гостиную. С одной стороны к ней примыкает столовая, с другой – кабинет хозяина дома. Кухня выделена несколько особняком: задачи решить ее в парадном ключе не стояло, но следовало оснастить профессиональной техникой и разместить вблизи черного хода. Еще одним пожеланием заказчиков стал зимний сад – пышно декорированное помещение с французскими окнами и выходом на территорию участка. Второй этаж отдан приватным апартаментам и включает хозяйские и гостевые спальни, ванные комнаты, гардеробные, зоны отдыха. В цокольном этаже размещены помещения для отдыха: кинозал, энотека, приватная гостиная.
Интерьер выполнен в парадном классическом стиле с использованием индивидуальных решений, авторских изделий и роскошных материалов.
Мрамор и травертин, гипсовый ажурный лепной декор потолка и позолоченные карнизы, модульный паркет, двери и мебель из ценных пород дерева с инкрустацией, мозаичные панно и шелковые обивки, витражи, хрустальные люстры и фарфоровые статуэтки – все складывается плотный, подробно оформленный интерьер. Украшением гостиной служит камин с порталом из разных сортов мрамора, выполненный по чертежам архитектора проекта. Парадная линия продолжается и в приватных помещениях: каждая спальня имеет свой характер и цветовую гамму, зимний сад выполнен в нарядной французской классике, а ванные комнаты и вовсе служат образцом роскоши… Элементы современной стилистики отчетливее всего угадываются в помещениях со сложной технической начинкой: домашнем кинозале и зоне отдыха при бассейне.
Комплектация объекта
Строительные и отделочные материалы фасада
Изделия из камня, травертина, компания Chelsea
Панно из смальтовой мозаики, по эскизам, компания «Джиель»
Облицовочный клинкерный кирпич Hagemeister, поставщик «Ладный Дом»
Медная кровля и отливы KME TECU, поставщик «Эволюция кровли »
Строительные и отделочные материалы и изделия в интерьере
Окна, поставщик «Словечно»
Лифт DomusLift производитель IGV Group
Изделия из дерева, двери, порталы, панелирование, витражи, камин, на заказ, компания Armando Rho
Лепной декор из гипса, компания «РЕАЛЬ»
Изделия из камня, компания «Ателье камня»
Обои Carl Robinson, Giardini Wallcoverings, Tiffany Design, Eugenio Colombo, Thibaut, поставщик «Труффальдино Декор»
Модульный паркет, поставщик Armando Rho; инженерная доска Foglie d`Oro, поставщик «Кредит Керамика»
Акустические панели в кинозале, шпон ореха, Decor Acoustic
Керамические панели Thibaut, плитка Petra Antiqua, мозаика Sicis, поставщик «Кредит Керамика»
Декоративный свет Zanaboni, Barovier & Toso, G.Moscatelli, Pataviumart, Novaresi, Pieter Adam, Manooi
Встроенный свет, поставщик «Мастерская Световых Форм»
Ковры Loloey
Портьеры, обивочные ткани Rubelli
Сантехника Villeroy & Boch, Milldue, Jacuzzi, Jado и Dornbracht, поставщик «Кредит Керамика»
Мебель
Прихожая Armando Rho
Гостиная два красных кресла с пуфами Zanaboni, серванты, комод, журнальный стол и диваны Armando Rho
Кабинет мягкая мебель и комод Zanaboni, остальная мебель - Armando Rho
Домашний кинотеатр специальные кресла Cineak (модель Nero Incliner), столики Armando Rho
Женский кабинет мебель I4 Mariani
Зимний сад, спальни – мебель Armando Rho
Оборудование
Оборудование бассейна, компания «Канон»
Отопление, радиаторы Kermi, поставщик «Тепло-Арт»
Электроустановочные изделия GIRA (X Class), поставка и монтаж «Мастерская Световых Форм»
Оборудование сауны и хаммама EOS (германия), поставка и монтаж «ТермоСтудия»
Парадная квартира в Санкт-Петербурге
Квартира в парижском стиле в центре Москвы Великое наследие и возрождение Храмового зодчества в России – поговорим об этом с архитектором Дмитрием Пшеничниковым, основателем архитектурного бюро «Дмитрий Пшеничников и Партнеры»









































Ландшафтный архитектор. Инженер. Проектировщик. Логик.
«Мода в интерьере — это зеркало нашего быта»...
Храм в городе
Три кита современного стиля
Проект: Аэропорт «Кавказ» 
11
22
33
44
55
66
77
88
99
1010 