В новой московской высотке студия «Aрх.Предмет» во главе с архитектором Олесей Ситниковой спроектировала трехэтажный пентхаус с террасой на крыше. Проект площадью 300 кв. м потребовал долгих согласований и детальной проработки интерьерной концепции. А началось все с того, что заказчики приобрели квартиру на последнем этаже современного жилого комплекса, затем выкупили верхние нежилые уровни и обратились с пожеланием создать роскошный триплекс с открытой верандой в центре мегаполиса.
Яркий, стильный, с дизайнерскими фишками.
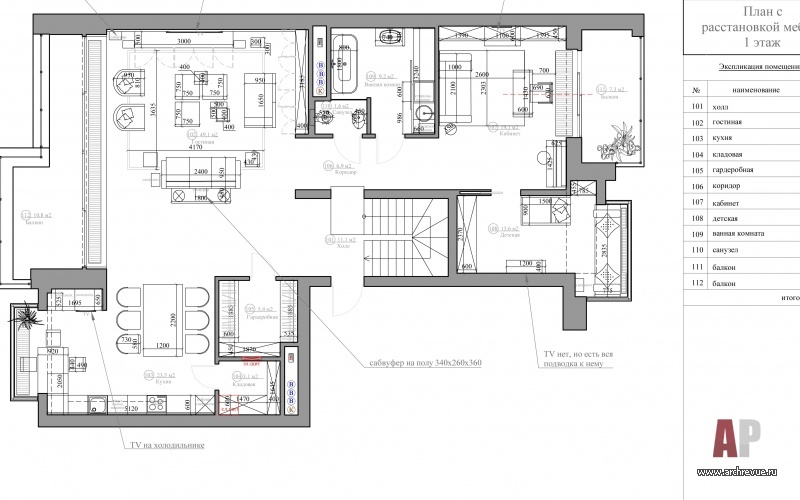
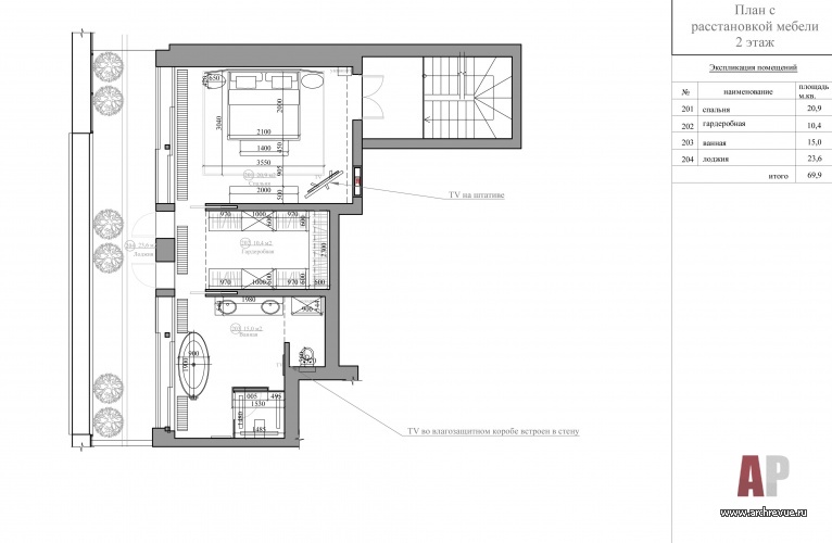
Первый уровень занимают парадные помещения: холл гостиная, столовая, кухня. Они решены по принципу студии и перетекают друг в друга. В отдельном блоке находится детская, кабинет и технические помещения. Второй этаж целиком отдан хозяйской приватной части.Она представляет собой роскошную анфиладу, состоящую из спальни, гардеробной и ванной комнаты, вытянутое вдоль панорамных окон пространство насквозь пронизано светом и украшено причудливыми тенями от резных ставен.
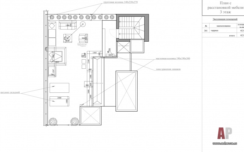
На крыше находится веранда с павильоном и открытой территорией. Соединяющие этажи лестницы предельно компактные, они примыкают к стене, не занимают много места и за счет легкой конструкции работают на просвет.
Интерьер триплекса выполнен в стиле фьюжн, он предназначен для молодой семейной пары, которая любит жить в мегаполисе и наблюдать за урбанистическими изменениями города. Если первый этаж исполнен на контрастных сочетаниях, то приватный уровень решен в сдержанной, построенной на нюансах колористике. Работа над проектом потребовала сплоченной работы подрядчиков: значительная часть изделий, мебель была изготовлена на заказ на европейских фабриках.
Ажурные ставни, двери с металлическим декором, стеновые панели из нубука, мебель и ироничные светильники из последних дизайнерских коллекций придают интерьеру настоящий, американский шик, сближают его с роскошными пентхаусами на Манхеттене.
Комплектация объекта
Строительные и отделочные материалы и изделия
Изделия из дерева, компании Cadore Arredamenti, Cesare Ferrari Group, Extra Tempore
Двери Cesare Ferrari Group
Финишная отделка стен, краски Zoffany и Little Greene, поставщик «Салон краски»
Свет Preciosa Lighting, Barovier & Toso, Catellani & Smith, Wired Custom Lighting, Contardi, Kevin Reilly, Artemide, Delta Light
Обивочная ткань Zoffany
Текстиль, поставщик Krassky
Ковры, поставщик «Kovёr Buro»
Аксессуары Crate and Barrel, BoConcept, Woon Stores, «Предметы»
Произведения искусства, «Агентство. Art Ru»
Сантехника Antonio Lupi
Мебель
Холл консоль, пуф JNL
Гостиная кресла и диваны Meridiani (модель Belmondo), консоль Christian Liaigre, постаменты JNL
Столовая обеденный стол Draenert, стулья Christian Liaigre
Кухня барные стулья Meridiani
Спальня комод Emmemobili
Кабинет стол, стул Promemoria
Оборудование
Система вентиляции и кондиционирования Daikin
Оборудование кухни Kuppersbusch
Модернистский дом в Подмосковье
Квартира с шестнадцатью окнами в Санкт-Петербурге Поиски нового офиса привели владельцев архитектурного бюро «Крупный план» к неожиданному, но очень значимому шагу – приобретению особняка - объекта культурного наследия XIX века...



























Созидание как эволюция: офис бюро «Крупный план»
Равновесие, цельность и гармония как результат работы архитектора…
Ландшафтный архитектор. Инженер. Проектировщик. Логик.
«Мода в интерьере — это зеркало нашего быта»...
Храм в городе 
11
22
33
44
55
66
77
88
99
1010 