Для семьи с тремя детьми в новом доме на юге Москвы дизайны Елена Зуфарова и Дина Масленникова оформили квартиру, воплотив в жизнь все пожелания домочадцев. На первой встрече заказчица четко сформулировала задачу: ей хотелось скандинавский интерьер в эко-стиле с природными материалами и спокойной колористикой (отсюда и возникла прохладная пастельная гамма).
Поскольку семья живет насыщенной жизнью (дети занимаются музыкой и балетом), то требовалось создать максимально просторные помещения и сделать большую гостиную, куда можно приглашать гостей и давать домашние концерты.
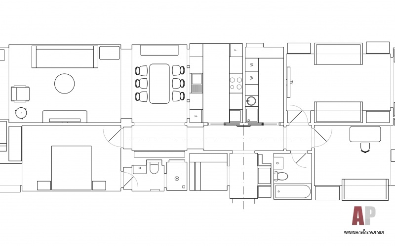
Когда дизайнеры подключились к проекту, планировка уже была готова, над ней работало архитектурное бюро «Ветер веет», поэтому Елене Зуфаровой и Дине Масленниковой следовало минимальными средствами адаптировать исходный план под жизнь семьи.
Вытянутая по ширине квартира площадью 140 кв. м с 4 окнами в торцах – не самый удачный вариант для семейного проживания, к тому же доступ дневного света ограничивали лоджии. Работу дизайнеры начали с того, что присоединили и утеплили лоджии, тем самым впустив в помещения больше света и воздуха, все жилые зоны сгруппировали возле окон (гостиную, спальню и две детские), а блок санузлов, гардеробные и постирочную вынесли в центральную темную часть. Кухню объединили с гостиной, отделив разные по назначению зоны стеклянной перегородкой с открывающимися створками. Причем зону готовки они сориентировали на хорошо освещенную дневным светом гостиную, а встроенную технику разместили вдоль стены. Вход на кухню организовали с торца, что удобно при движении, как со стороны гостиной-столовой, так и из холла.
Интерьер исполнен в современном скандинавском стиле, его отличительными чертами являются спокойные формы, нейтральная прохладная цветовая гамма, минимум мебели. В оформлении использованы исключительно натуральные материалы: штучный романовский паркет из дуба, натуральный камень и каменная мозаика, простая, но функциональная мебель.
Индивидуальный вид квартире придают детали: стеклянная перегородка в обрамлении из темного металла – элегантная конструкция, отсылающая к индустриальной эстетике, а также винтажные и антикварные предметы мебели и светильники. Так, облик столовой зоны во многом определил английский антикварный дубовый буфет, в гостиной – необычная люстра, приобретенная в антикварной лавке. Двери, встроенная мебель были сделаны на заказ по эскизам авторов проекта, также как и обеденный стол с каменной столешницей. Слэб из черного сланца с белой прожилкой посередине длиной 1,80 м дизайнеры увидели на московском складе и сразу решили сделать его акцентным элементом интерьера.
Комплектация объекта
Строительные и отделочные материалы и изделия
Текстильный дизайн, компания «Кадо», «Галерея Арбен»
Двери, книжный стеллаж, на заказ, компания «Мастерская Ивана Харламова»
Лепной декор, поставщик Skol
Декоративные финишные отделки стен, краска Zoffany, Farrow & Ball, поставщик «Салон краски»
Обои BorasTapeter, поставщик «О Дизайн»
Паркет, доска из тика, поставщик Villa di Parchetti
Натуральный камень, поставщик Cosmostone; изделия из камня, компания «АРДО»
Плитка, мозаика, поставщик Unizaro
Свет Artemide, Centrsvet, BoConcept, Markslojd
Винажные светильники, поставщик «Свет и не только 50-60-70-х годов»
Сантехника Hansgrohe, Laufen, поставщик «Макслевел»
Ковры Crate and Barrel, галерея Ansy Carpet Company
Пледы, подушки BoConcept; постельное белье Lissoy
Мебель
Прихожая, встроенные шкафы, зеркала, на заказ по эскизам дизайнеров, изготовление Oldwood; банкетка MHLiving
Гостиная диван Casamilano, модель Pillopipe, журнальные столики и кресло Crate and Barrel
Столовая винтажный буфет, поставщик A Table; каменный стол, на заказ
Кухня Nolte, барные стулья Massproductions
Спальня встроенные шкафы, на заказ, изготовление Oldwood, стеллаж, изготовление «Мастерская Ивана Харламова»
Детские кровати по эскизам дизайнеров, изготовление «ВсемCпать»; встроенные шкафы, изготовление Oldwood; письменный стол BoConcept, стулья Hay, (серия Little Nobody)
Мебель для ванных комнат, изготовление Oldwood
Оборудование
Электроустановочные изделия, розетки, выключатели Simon
Охотничья усадьба с гостиницей
Представительская квартира в высотке О профессии «ландшафтный архитектор», образовании и специфике частных и общественных ландшафтных проектов говорим с Иваном Бугаевым…
























Ландшафтный архитектор. Инженер. Проектировщик. Логик.
«Мода в интерьере — это зеркало нашего быта»...
Храм в городе
Три кита современного стиля
Проект: Аэропорт «Кавказ» 
11
22
33
44
55
66
77
88
99
1010 