Архитекторы Мария и Никита Бахаревы спроектировали квартиру для временного проживания, в которой так же хорошо, как дома. Заказчик постоянно проживает в Москве, но по делам вынужден часто и долго бывать в Минске. Первоначально он останавливался в отелях, но ни один, даже самый лучший городской отель не мог дать ему ощущение полного комфорта, сравниться со своим домом.
В квартире, которую он для себя выбрал, подкупает роскошная терраса с неоклассической балюстрадой, наполненный светом и воздухом открытый объем, то, немного ностальгическое настроение, которое вызывает у москвича советская архитектура сталинских высоток или Минского железнодорожного вокзала. Архитекторы постарались сохранить воздух и парадный настрой и в то же время создать комфортное жилье для одного человека.
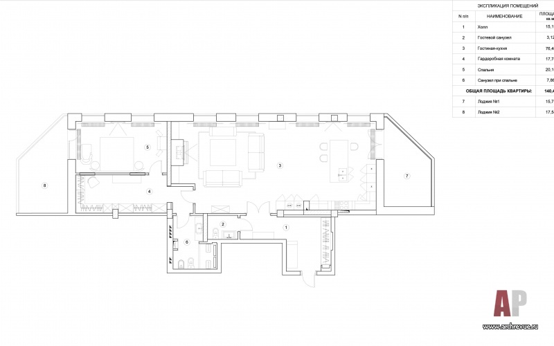
Квартира площадью 140 кв. м представляет собой вытянутый вдоль главного фасада прямоугольник с двумя открытыми лоджиями в торцах. Все жилые помещения, а их всего здесь два: общая гостиная с кухней и столовой площадью 77 кв. м и спальня сгруппированы на одной линии с панорамными окнами.
Холл, гардеробная и два санузла (хозяйский и гостевой) расположены в удаленной от окон, затемненной части квартиры. Гостиная – великолепное белоснежное пространство, насквозь пронизанное светом: 4 окна в пол и выход на открытую лоджию с парадной балюстрадой создают ощущение прогретого солнцем пентхауса.
За основу дизайнерского решения авторы проекта взяли образ люксового отеля: строгий интерьер с парадными элементами выглядит торжественно и строго. Мужской, без брутальности характер квартиры подчеркивают благородные материалы: дерево, камень, стекло, глянцевые панели и белоснежно-белый цвет с жемчужно-серыми акцентами, который пронизывает весь интерьер.
Удобные кожаные диваны, оформленные стежкой-капитоне, и дровяной камин с живым огнем способствуют отдыху и расслаблению. Функциональная, оснащенная профессиональной техникой кухня позволяет хозяину экспериментировать с меню. Роль столовой группы играет остров кухни с полубарными креслами: такое решение сохраняет воздух, не перегораживает пространство и в то же время позволяет устраивать мини-фуршеты.
Комплектация объекта
Строительные и отделочные материалы и изделия
Декоративные покрытия Benjamin Moore
Пол, массив дуба, поставщик Finex
Камин, компания «Камины Петербурга»
Свет Barovier & Toso, MOOOI, Eichholtz, Visionnaire, Terzani
Ковры, поставщик The Rug Company
Сантехника Devon & Devon, Hueppe
Мебель
Прихожая зеркальный шкаф Bizzotto, консоль Eichholtz
Гостиная диваны, журнальный столик Baxter (модели Chester Moon и Trinity), банкетка Christopher Guy
Кухня Cesar
Столовая Baxter
Спальня кровать, прикроватные тумбы, кресла Visionnaire
Оборудование
Система вентиляции и кондиционирования Daikin
Оборудование кухни Miele
Квартира в теплой гамме
Квартира в небоскребе О профессии «ландшафтный архитектор», образовании и специфике частных и общественных ландшафтных проектов говорим с Иваном Бугаевым…





















Созидание как эволюция: офис бюро «Крупный план»
Равновесие, цельность и гармония как результат работы архитектора…
Ландшафтный архитектор. Инженер. Проектировщик. Логик.
«Мода в интерьере — это зеркало нашего быта»...
Храм в городе 
11
22
33
44
55
66
77
88
99
1010 