Квартира площадью 83 кв. м расположена в жилом комплексе «Сколково-Парк», заказчики купили ее с намерением перепродать или сдавать ее в аренду семейной паре возраста 35-40 лет, возможно, с ребенком. Международные школы по соседству и строящийся вблизи бизнес-центр – хорошее для этого подспорье.
За воплощением идеи в реальность они обратились к архитекторам Илье и Светлане Хомяковым, с которыми уже имели опыт успешного проектирования большой квартиры в Барселоне, а сейчас реализуют объекты в Дюссельдорфе. «Нашей задачей было создание оригинального, привлекательного и запоминающегося пространства, с максимально эффективным использованием исходной площади (к слову, у застройщика это квартира предполагалась однокомнатной) и в рамках весьма ограниченного бюджета. При этом квартира не должна была быть слишком вызывающей или яркой. В плане стилистики и планировочного решения нам был предоставлен полный карт-бланш, обсуждались только детали. Проектирование заняло 2,5 месяца, реализация еще 11 месяцев», - рассказывает Илья Хомяков.
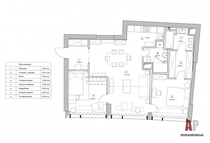
Квартир сдавалась в «бетоне», поэтому планировка была разработана архитекторами с нуля. «Пока мы искали вместе с заказчиками правильное функциональное наполнение квартиры, мы перебрали пять вариантов планов и остановились на шестом. Три больших панорамных окна и высокие (3,6 м) потолки подсказали основные пространственные решения», - вспоминают авторы проекта.
В результате задуманная застройщиком как большая «однушка» квартира вместила в себя две спальни, гостиную кухню. Он выстроены вдоль окон и представляют смежные пространства. Подсобные помещения находятся в глубине, прихожая через стеклянные раздвижные двери освещается естественным светом, встречающим жильцов с порога. Большая высота потолка в гостевой спальне позволила организовать в ней подвесную кровать с лестницей-стеллажом и встроенным платяным шкафом, а также полноценной рабочей зоной, что позволяет использовать ее и как кабинет. Кровать дополнительно изолировали льняной шторой, при желании можно уединиться, или, раздвинув ее, наслаждаться видом на парковую территорию комплекса.
Квартира оформлена в стилистике contemporary с элементами скандинавского дизайна, нетривиальными декоративными решениями и выполненными на заказ по эскизам архитекторов изделиями: мебелью, светильниками, стеновыми панно. Домината интерьера гостиной – декоративные буазери из березовой фанеры, вдохновением для них послужил итальянский обеденный стол с «шахматной» столешницей, оформленной маркетри.
За панелями спрятаны шкафчики и межкомнатная дверь в основную спальню. «Чтобы высчитать правильный размер модуля мы сделали несколько 3D- моделей. Размер модуля получился 392 х 350 мм, три верхних ряда чуть меньше по высоте - 320 мм, только так дверь получалась правильной высоты», - отмечают авторы проекта. Характерной особенностью квартиры, повлиявшей на ее художественный образ, стало то, что ни одной стенки под 90 градусов в квартире нет, так как в плане она представляет четырехугольник со скошенными торцевыми стенами. Отсюда и динамичная роспись на стенах, и стол «Гексагон», созданный российскими мастерами, а главное клиновидная дверь между гостиной и спальней. Ее изготовление потребовало большого мастерства, детальной проработки чертежей и скрупулезного изготовления. Замков, подходящих под толщину двери, просто не существовало, поэтому дизайнеры придумали специальную защелку… Собственно, весь интерьер – это эксперимент, вызов себе и производителям авторских изделий и блестящий результат воплощения фантазии в реальность.
Комплектация объекта
Строительные и отделочные материалы и изделия
Изделия из дерева, шкафы и панели из березовой фанеры NMWorkshop
Двери, поставщик «Своё»
Лепной декор Orac Decor
Декоративная финишная отделка стен, краска Benjamin Moore
Роспись Alexey Kio
Плитка Vives, поставщик «Сервер-керамика», Ornamenta, поставщик Lucido
Рамы для картин, на заказ, поставщик Za-ramkami
Свет поставщики Wishnya, Ironlamp, Happy Station
Металлическое декоративное панно Ironlamp
Сантехника Grohe
Мебель
Гостиная кресло винтажное, диван обтянут тканью Sandberg, стол lllooch, комоды, на заказ, изготовление Woodhub и NMWorkshop
Столовая обеденный стол Busatto
Кухня на заказ, изготовление Silver Home
Спальня изголовье кровати, туалетный столик, банкетка, на заказ, изготовление Woodhub, комод The Idea
Гостевая спальня композиция из шкафа, стеллажа-лестницы и подвесной кровати, на заказ, изготовление Woodhub; рабочий стол «Гексагон», изготовление «АрхПоле», винтажный стул, поставщик Mobeledom, кресло Ivanka Home
Мебель для ванных комнат, NMWorkshop
Оборудование
Оборудование кухни Samsung
Минимализм с историей
Вилла на Балтике О профессии «ландшафтный архитектор», образовании и специфике частных и общественных ландшафтных проектов говорим с Иваном Бугаевым…


























Ландшафтный архитектор. Инженер. Проектировщик. Логик.
«Мода в интерьере — это зеркало нашего быта»...
Храм в городе
Три кита современного стиля
Проект: Аэропорт «Кавказ» 
11
22
33
44
55
66
77
88
99
1010 