Для заказчицы, отметившей свое 65-летие, дизайнер Ирина Крашенннинока оформила квартиру, которая будет напоминать ее хозяйке о Москве 1970-х годов и временах ее молодости. Двухкомнатная квартира планировки площадью 38 мкв. м. находится на верхнем этаже дома башенного типа серии И-209, построенного в 1970-х годах. Хотя заказчица и живет одна, она любит принимать гостей, друзей, родственников.
Поэтому в гостиной ей требовался большой стол и раскладной диван. Стилистику она предпочитает современную, но элементы ретро отсылают к модернистской архитектуре.
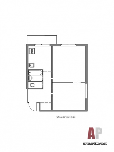
Квартира изначально имела типовую планировку с крохотной кухней (5,6 кв. м), маленьким раздельным санузлом и с полным отсутствием мест для хранения, антресолей, гардеробных. В то же время угловое расположение с окнами на две стороны, выносной балкон и французский балкон в одной из жилых комнат ее выгодно отличали от многих квартир советского периода.
«Я спроектировала килеобразную прихожую, в «киле» которой симметрично расположила два дверных проема. Один ведет в гостиную, второй – в гардеробную. Это решение позволило задать красивую ось входа: войдя в квартиру, мы сразу видим гостиную с гостеприимным обеденным столом, а не узкий коридор, ведущий на кухню», - рассказывает автор проекта Ирина Крашенинникова. Увеличить площадь кухни не удалось, но было согласовано изменение входа, благодаря чему кухня встала на одну линию с гостиной и появилась дополнительная ниша под холодильник. Поскольку квартира предназначена для одного человека, то все три помещения (кухня, гостиная, спальня) можно было сделать смежными, что визуально увеличило общий объем.
Интерьер квартиры выполнен в стилистике 1970-х годов и согласуется с модернистской архитектурой дома. Все помещения решены в единой цветовой гамме: светлом сером оттенке с насыщенными темно-синими акцентами. Такой прием визуально расширяет пространство, создает иллюзию большого цельного объема.
Интерьер квартиры мало напоминает жилье пенсионерки: чистое пространство, монохром, современная дизайнерская мебель, отсутствие мелких декоративных предметов… Только большая библиотека говорит о почтенном возрасте хозяйки. В оформлении дизайнер старалась отразить стиль 1970-х годов: глянцевые наливные полы, серая штукатурка, дизайнерская мебель в стиле ретро отсылают к эстетике тех лет. Но при этом квартира выглядит ярко, свежо и современно.
Комплектация объекта
Строительные и отделочные материалы и изделия
Окна, поставщик Kaleva
Двери 3elle, поставщик Stalwood
Декоративная отделка стен, потолков, краска Dulux
Лепной декор, поставщик Ultrawood
Керамогранит Provenza, поставщик RIM.ru
Наливные полы, поставщик Bensola
Свет Donolux, SLV, Madam Stoltz, Objet de Curiosité, Latitude, поставщик Atelier Art&Co
Аксессуары напольные вазы Urbanika, ваза «на детских ножках» Dylan Kendall
Сантехника ArtCeram, смесители Tres, ванна Roca, поставщик Aeroom
Мебель
Прихожая табурет Kartell
Гостиная диван BoConcept, металлическое кресло Objet de Curiosité
Столовая обеденный стол, на заказ, изготовление «АрхПоле», стул мягкий Pranzo, стул деревянный, винтаж
Кухня кухонный гарнитур IKEA, стол для завтраков fineobjects
Спальня диван-кровать Softline, прикроватный столик Objet de Curiosité, комод Bragindesign
Оборудование
Электроустановочные изделия, розетки, выключатели Jung
Радиаторы Arbonia, поставщик «Тепло-Арт»
Оборудование кухни Samsung
Благородная эстетика
Дом с фольклорными мотивами О профессии «ландшафтный архитектор», образовании и специфике частных и общественных ландшафтных проектов говорим с Иваном Бугаевым…
















Равновесие, цельность и гармония как результат работы архитектора…
Ландшафтный архитектор. Инженер. Проектировщик. Логик.
«Мода в интерьере — это зеркало нашего быта»...
Храм в городе
Три кита современного стиля 
11
22
33
44
55
66
77
88
99
1010 