Для молодого мужчины, профессионального спортсмена архитектор Егор Серов спроектировал квартиру в доме на Мосфильмовской улице. Основной идеей интерьера стало стремление создать удобное современное жилье для холостяка, а также расширить пространство и сделать акцент на вид из окон в сторону Воробьевых Гор.
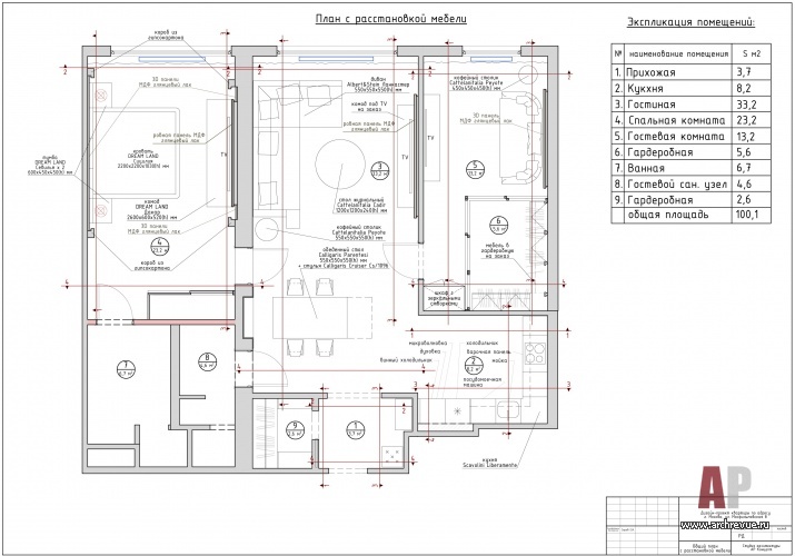
Пространство организовано с учетом комфортного проживания для одного человека. Кухня объединена со столовой и гостиной и представляет собой наполненную светом студию. Спальня с ванной комнатой, а также гостевая-кабинет с прозрачным гардеробом изолированы от общего пространства.
Вход в квартиру предваряет небольшая прихожая с гардеробом для верхней одежды и гостевым санузлом.
Каждый элемент декора служит задаче визуального расширения пространства. Глянцевые натяжные потолки темно-серого цвета, лакированные стеновые панели с гладкой и рельефной поверхностью, мебель с полированными фасадами и стеклянными элементами, прозрачные шкафы, люстры с зеркальным эффектом, двери Invisible из белого глянца наполняет интерьер множеством бликов и отражений.
Монохромная цветовая палитра, строгая геометрия рисунков, плитка под кирпич, стиль минимализм – приметы, характерные для мужских интерьеров.
Комплектация объекта
Строительные и отделочные материалы и изделия
Двери, поставщик Lualdi Porte
Стеновые панели, поставщик Stenberg
Свет Artemide, Foscarini
Керамогранит, поставщик «Макслевел»
Сантехника Duravit, Roca, Hansgrohe, Hueppe
Мебель
Гостиная диван Albert&Shtein, стол журнальный Porada
Столовая обеденный стол, стулья Calligaris
Кухня Scavolini
Cпальня кровать, комод, тумбы Dream Land, шкаф-купе Mr.Doors
Гардеробная Mr.Doors
Оборудование
Электроустановочные изделия, розетки, выключатели ABB
Оборудование кухни Miele
Европейский фьюжн
Американский декаданс О профессии «ландшафтный архитектор», образовании и специфике частных и общественных ландшафтных проектов говорим с Иваном Бугаевым…


















Ландшафтный архитектор. Инженер. Проектировщик. Логик.
«Мода в интерьере — это зеркало нашего быта»...
Храм в городе
Три кита современного стиля
Проект: Аэропорт «Кавказ» 
11
22
33
44
55
66
77
88
99
1010 