Для семейной пары, которая любит принимать гостей, дизайнер Варвара Зеленецкая реконструировала загородный дом в Подмосковье. «Задача состояла в том, чтобы, не меняя конструктива и уже существующей планировки здания, полностью обновить первый этаж. Создать удобную зону для приема гостей и общения, в дизайне мы хотели соединить черты камерной виллы в Нормандии и привычной дачи старой русской интеллигенции, - рассказывает дизайнер. – Второй уровень, на котором находятся спальни, заказчиков полностью устраивал».
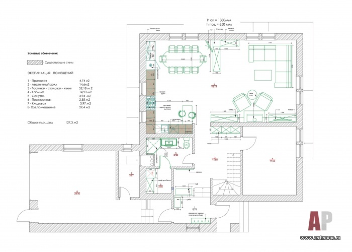
Первый этаж площадью 127 кв. м был изменен с помощью исключительно декораторских средств. Прежде всего, дизайнер визуально объединила зоны гостиной, кухни и столовой, создав просторное помещение (площадью 52 кв. м) с комфортными камерными зонами: диванной группой, зоной отдыха у камина и парадной кухней-столовой. От гостиной она отделена двусторонним стеллажом, выполненным на заказ в стиле Прованс. Холл с лестничным маршем занимает отдельное помещение с выходом в гостевой санузел и постирочную.
Для него был специально спроектирован встроенный вместительный гардеробный шкаф с зеркалами. Прихожая вынесена самостоятельным блоком, благодаря чему личные помещения максимально удалены от входа.
Стилистику Прованса задали существующие потолочные деревянные балки. В поддержку к ним появились деревянные изделия из светлого дерева, декоративная штукатурка, имитирующая кирпичную стену, каменная плитка в форме многогранников, которой выложен пол в кухне-столовой. Лейтмотивом интерьера стала прохладная пастельная гамма, в частности разные оттенки синего цвета, которые использованы в отделке кухонных фасадов, буфете, текстиле мягкой группы.
Основную декоративную задачу дизайнер видела в создании уютного, открытого дома, где гостеприимные хозяева часто собирают друзей, родных и близких.
Комплектация объекта
Строительные и отделочные материалы и изделия
Изделия из дерева, лестница, компания «Бристоль »
Двери, поставщик «Софья»
Оформление стен, штукатурка Derufa, финишная отделка – краски Little Greene, поставщик «Салон краски»
Массивная половая доска, поставщик «Лесресурс»
Свет Fine Art Lamps
Плитка Manifattura Ceramiche, поставщик «Базальт Керамика»
Мебель
Кухня Schuller
Корпусная и встроенная мебель, на заказ, компания «Бристоль »
Мягкая мебель, аксессуары Flamant
Оборудование
Оборудование кухни Miele
Семейные ценности
Эклектика на Морском проспекте О профессии «ландшафтный архитектор», образовании и специфике частных и общественных ландшафтных проектов говорим с Иваном Бугаевым…

















Ландшафтный архитектор. Инженер. Проектировщик. Логик.
«Мода в интерьере — это зеркало нашего быта»...
Храм в городе
Три кита современного стиля
Проект: Аэропорт «Кавказ» 
11
22
33
44
55
66
77
88
99
1010 