Интерьер видовой квартиры площадью 180 кв. метров исполнен в эклектичном стиле с элементами пышной классики, ар-деко и современного дизайна. Заказчики – восточная семья с темя детьми – обратилась с пожеланием создать комфортный и внешне эффектный интерьер с изолированной кухней, просторной гостиной с видом на набережную Невы и изолированным приватным блоком. Интерьер получился ярким и нетривиальным.
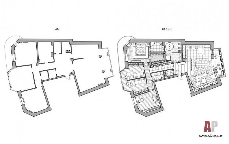
В расположенной в доме с полукруглыми фасадами квартире изначально не было ни одной прямоугольной комнаты, ни двух параллельных стен. Архитекторы начала с того, что скорректировали исходный план, добавили строгости, симметрии и разделили исходный объем на два крыла: слева от входа разместились приватные помещения - три детские и хозяйская спальня со своей ванной и гардеробной.
Справа разместились общественные зоны: гостиная, столовая и изолированная стеклянной перегородкой с цветочным орнаментом кухня сгруппированы вдоль панорамных окон с видом на воды Невы. В центральной, затемненной, части квартиры находятся технические помещения, санузлы, буферный коридор, объединяющий разные по назначению жилые блоки, а также парадная входная группа.
Доминанта парадного по характеру интерьера – стеклянная перегородка с золотым орнаментом, выполненная по интересной технологии: рисунок нанесен на пленку (с одной стороны – золотую, с другой – серебряную), которая зафиксирована между двух стекол.
Стилизованный цветочный орнамент вдохновлен эстетикой ар-деко, чтобы его поддержать архитекторы использовали панели-буазери из массива ореха, природный камень (в отделке пилястр и несущих колонн) и мозаику. В то же время лепные карнизы отсылают к стилистике классицизма, как и текстиль в ярких бирюзовых тонах. Бирюзовый – любимый цвет хозяйки дома – архитекторы использовали умеренно, чтобы не сместить акценты с роскошного вида за окном.
Комплектация объекта
Строительство, компания «Алекс»
Строительные и отделочные материалы и изделия
Лепные изделия из гипса, поставщик «Департа»
Изделия из камня, облицовка камина, компания «Камнетес»
Декоративная финишная отделка стен и потолков, фактурная штукатурка, росписи, компания AD Modum
Плитка Apavisa
Паркетная доска Solidfloor
Свет Cattelan Italia, Brand van Egmond, Sigma L2, Delta Light
Сантехника Axor, Dornbracht
Мебель
Gamma Arredamenti, Giorgetti, Mantellassi, Angelo Cappellini, Turri, Minotti
Оборудование
Системы вентиляции и кондиционирования Mitsubishi
Домашний кинотеатр Samsung
Оборудование кухни Miele
Квартира для холостяка
Белое золото О профессии «ландшафтный архитектор», образовании и специфике частных и общественных ландшафтных проектов говорим с Иваном Бугаевым…





















Созидание как эволюция: офис бюро «Крупный план»
Равновесие, цельность и гармония как результат работы архитектора…
Ландшафтный архитектор. Инженер. Проектировщик. Логик.
«Мода в интерьере — это зеркало нашего быта»...
Храм в городе 
11
22
33
44
55
66
77
88
99
1010 