Расположенная в тихом московском центре квартира площадью 160 кв. метров создана для трех женских поколений семьи: хозяйки, ее мамы и юной дочери-школьницы. Историческое окружение, а также эстетические предпочтения заказчиков, определили элегантную, неоклассическую направленность интерьера.
А стремление создать тихую уютную обстановку – выбор спокойной, карамельно-кофейной цветовой гаммы, которая вносит гармонию в торопливый городской ритм.
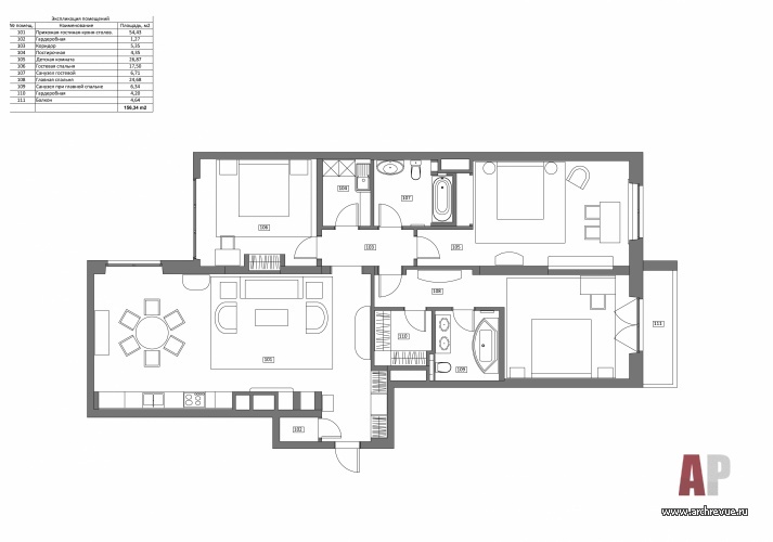
Квартира находится в новом доме, основной сложностью стал ее непростой план с большим количеством темных помещений: вытянутое пространство освещают лишь окна, расположенные по торцевым сторонам.
Чтобы визуально сбалансировать объем, архитекторы разделили его на два просторных самостоятельных блока: общую гостевую часть, где кухня является основным помещением, в котором протекает жизнь семьи, и приватные изолированные помещения. Хозяйская спальня представляет собой полноценные личные апартаменты со спальным местом, ванной комнатой и гардеробной. В детской логично обозначены две зоны: спальная и рабочая. Комната бабушки расположена ближе всего к гостевой части, что удобно для пожилого человека. Не самое удачное расположение несущих колонн и коммуникаций ограничило количество санузлов: их в квартире удалось сделать два (хозяйский и гостевой), не считая постирочную.
Важную роль в облике интерьера играет текстиль, который лег в основу теплой, цветовой палитры всех помещений. Нейтральную кофейно-карамельную колористику авторы проекта усложнили с помощью тончайших неоклассических орнаментов.
Изысканные цветочные композиции нанесены на стены в технике альфрейной живописи и создают иллюзию парадного палаццо. Широкие лепные карнизы выкрашены в единый со стенами цвет, что придает помещениям целостность и визуально увеличивает их размеры. Интерьер строится на нюансах цветов и фактур: помимо декоративных штукатурок с орнаментальными росписями в интерьере использованы природный камень, дерево, тонированное в фоновый цвет, текстильные мебельные обивки. Все вместе они создают образ респектабельного и одновременно женственного интерьера.
Комплектация объекта
Строительные и отделочные материалы и изделия
Текстильный дизайн, компания French Touch
Финишная отделка стен, «Студия Марата Ка»
Лепной декор из гипса компания «Мастерская М-2 »
Камень, поставщик «РестКаменьСтрой»
Свет Masiero, Bronze d`Art Francais, La Murrina, Beby Group, Giulia Mangani, поставщик Italian Design
Шторы Mark Alexander
Сантехника раковина, унитаз Villeroy & Boch (Loop & Friends, Amadea, Century), ванна Villeroy & Boch (Cetus, Subway), смесители Jado, полотенцесушитель Margaroli
Мебель
Гостиная диван, кресло Ceppi Style, придиванный столик Luciano Zonta (модель Versailles Tavolino), комод Salda, стул Galimberti Nino
Детская кровать, кресло, письменный стол, стул Salda, комод Angelo Cappellini, прикроватная тумбочка Galimberti Nino
Гостевая кровать Savio Firmino
Вся мебель – поставщик Italian Design
Оборудование
Электроустановочные изделия Fontini
Оборудование кухни, встроенная техника Miele, холодильник General Electric
Дом в перламутровых тонах
Янтарное ар-деко О профессии «ландшафтный архитектор», образовании и специфике частных и общественных ландшафтных проектов говорим с Иваном Бугаевым…



















Созидание как эволюция: офис бюро «Крупный план»
Равновесие, цельность и гармония как результат работы архитектора…
Ландшафтный архитектор. Инженер. Проектировщик. Логик.
«Мода в интерьере — это зеркало нашего быта»...
Храм в городе 
11
22
33
44
55
66
77
88
99
1010 