Для давних и уважаемых заказчиков архитектор Анна Беляевская и дизайнер Наталия Сморгонская оформили квартиру на Петроградской стороне – одном из самых старых и престижных районов Санкт-Петербурга. Лейтмотивом современного по сути интерьера стало изображение Шуховской башни.
Образ интерьера – обжитой минимализм с яркими цветами и эффектными декоративными приемами – дизайнеры нашли еще при оформлении предыдущей квартиры семьи. Концепцию нового интерьера заказчики восприняли с энтузиазмом.
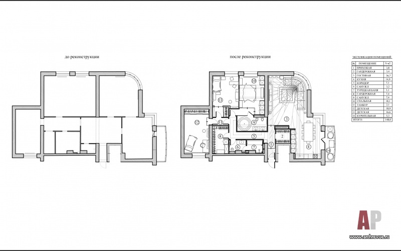
Планировка квартиры максимально удобна для проживания семьи с двумя детьми. С помощью системы коридоров она разделена на два блока: дневную и ночную. Приватная часть включает две детские и спальню хозяев со стеклянной перегородкой, отделяющей ванную комнату с круглой гидромассажной ванной.
Общественная зона представляет единое помещение гостиной с угловым диваном и зоной ТВ, биокамином и кухней с обеденной группой. На застекленном балконе организована курительная хозяина дома.
Образ интерьера вдохновлен архитектурой Шуховской башни. Изображение шедевра инженерной мысли начала ХХ века украшает потолок центральной гостевой зоны. Баннеры закрыты стеклом, в центре размещен световой фонарь, отчего создается ощущение, будто находишься внутри сетчатой оболочки сооружения и смотришь наверх, где небо, солнце и черные силуэты раскидистых ветвей деревьев.
Этим же принтом декорирована одна из стен при входе в квартиру. Стеклянные панели, глянцевые поверхности, белый мрамор Poanazzo, разноцветная мебель добавляют интерьеру яркости и оригинальности.
Комплектация объекта
Строительство, компания «Алекс»
Строительные и отделочные материалы и изделия
Декоративная финишная отделка стен и потолков, фактурная штукатурка, поставщик AD Modum; краска Tikkurila
Двери Rimadesio
Изделия из камня, поставщик «Камнетес»
Паркетная доска Solidfloor
Баннеры с водонепроницаемой пленкой, поставщик «Иллан»
Зеркальные панели, стекло, поставщик «ВР Стекло»
Сантехника Rifra, Hansgrohe, Hueppe
Мебель
Гостиная диван, пуф Gamma Arredamenti
Столовая обеденный стол Cattelan Italia, кресла Moroso
Кухня Leicht
Спальня Cattelan Italia
Оборудование
Электроустановочные изделия Jung
Радиаторы Arbonia
Теплый пол Devi
Оборудование кухни Kuppersbusch
Классический усадебный сад
«Умная» роскошь Поиски нового офиса привели владельцев архитектурного бюро «Крупный план» к неожиданному, но очень значимому шагу – приобретению особняка - объекта культурного наследия XIX века...





















Созидание как эволюция: офис бюро «Крупный план»
Равновесие, цельность и гармония как результат работы архитектора…
Ландшафтный архитектор. Инженер. Проектировщик. Логик.
«Мода в интерьере — это зеркало нашего быта»...
Храм в городе 
11
22
33
44
55
66
77
88
99
1010 