Заказчики – любители горнолыжного спорта – приобрели дом в стиле шале в месте под Санкт-Петербургом, которое славится своими лыжными трассами. За созданием дизайн-проекта они обратились к архитекторам Анне Беляевской и Наталии Сморгонской.
Задачу сформулировали предельно просто: создать интерьер не хуже одного из самых известных и респектабельных отелей в Куршевеле – Le K2, где они любят останавливаться во время зимнего отдыха. Взяв за основу стилистку прославленных интерьеров, авторы проекта разработали проект дома с атмосферой альпийского luxury -курорта.
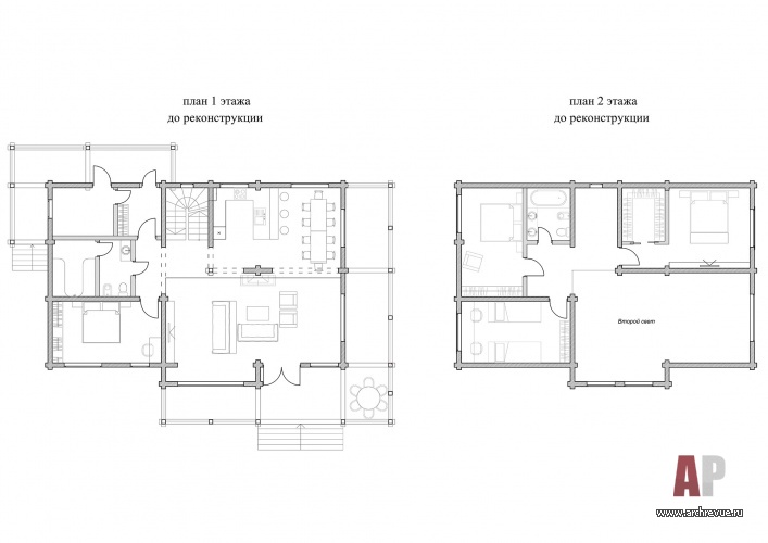
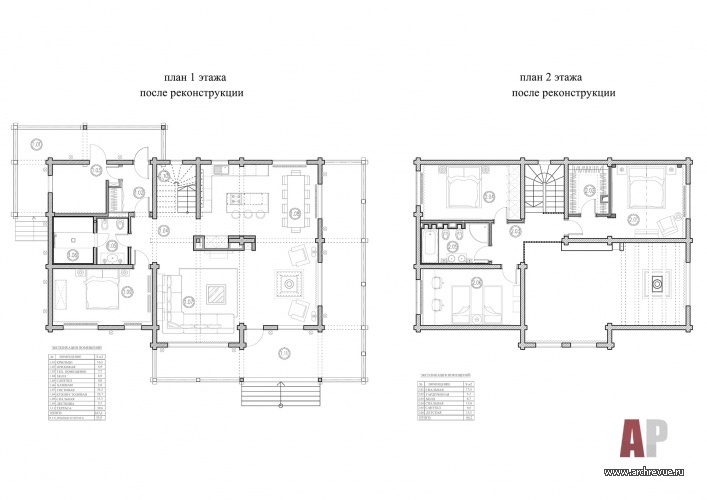
Пространство шале организовано на двух наземных этажах. Большую часть первого этажа занимает двусветная гостиная с каменным камином и огромным угловым диваном. По одну сторону от домашнего кинотеатра расположена кухня-столовая, по другую – лестницы на второй этаж.
Лестница скрыта в нише и не включена в общее гостевое пространство. За счет панорамных окон по двум сторона коттеджа гостиная наполнена естественным светом и ориентирована на природу. Помимо общественных помещений внизу также находится гостевая спальня и СПА-комплекс с хаммамом. Верхний этаж – приватные помещения хозяев.
В интерьере шале традиционные деревянные конструкции сочетаются с современными материалами. Чтобы разнообразить декор, клееный брус стен архитекторы смиксовали с плиткой из сланца и диким камнем в отделке дымохода камина.
Одной из сложных задач стал поиск нужного оттенка серой краски для стен. Он должен был напоминать состарившееся от времени дерево и при этом не выглядеть мрачно и чрезмерно брутально. Кроме того переосмысливать роскошные альпийские интерьеры авторам проекта следовало с помощью бюджетных решений.
Комплектация объекта
Строительство, компания «Алекс»
Строительные и отделочные материалы и изделия
Кровля, гибкая черепица Tegola
Декоративная финишная отделка стен и потолков, фактурная штукатурка, поставщик AD Modum; краска Tikkurila
Изделия из камня, поставщик «Камнетес»
Плитка Apavisa, Mainzu
Паркетная доска Solidfloor
Свет Visionnaire
Сантехника Globo, Simas
Мебель
Гостиная диван Biba Salotti, кресла Pinton, журнальный столик Cattelan Italia
Кухня Arrital Cucine, барные стулья Pinton
Спальня кровать Invetro
Оборудование
Газовый котел Viessmann
Электроустановочные изделия Jung
Радиаторы Arbonia
Теплый пол Devi
Орфография и пунктуация авторов сохранена
Мой выбор.
Прошу разместить внешний вид дом. Так же интересует сметная стоимость проекта.
Классика для жизни
Квартира для дайверов О профессии «ландшафтный архитектор», образовании и специфике частных и общественных ландшафтных проектов говорим с Иваном Бугаевым…






















Созидание как эволюция: офис бюро «Крупный план»
Равновесие, цельность и гармония как результат работы архитектора…
Ландшафтный архитектор. Инженер. Проектировщик. Логик.
«Мода в интерьере — это зеркало нашего быта»...
Храм в городе 
11
22
33
44
55
66
77
88
99
1010 