Архитекторы Анна Беляевская и Наталия Сморгонская оформили квартиру в монолитном доме для семьи с тремя детьми. В качестве основной декоративной линии они выбрали переосмысленную классику, которую дополнили современными деталями.
Основной акцент в белоснежном интерьере сделали на декоративное настенное панно – копию фрагмента классической сюжетной живописи.
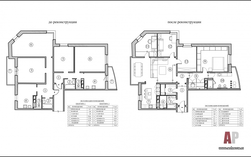
Выбираю квартиру, заказчики перебрали массу вариантов в новостройках и в итоге остановились на монолитном доме. Чтобы хватило места семье с тремя детьми, они приобрели две соседние квартиры и объединили их в единое пространство.
Расположение квартир в монолитном доме позволило сделать по фасаду панорамное остекление, так получилось два панорамных помещения: гостиная-столовая и ванная комната. Центральное помещение в доме – объединенная гостиная, столовая зонирована подиумом, кухня вынесена в глубину пространства. Поскольку максимум квадратных метров было отдано общественному блоку, жилые комнаты получились не очень большими, однако у всех есть своя комната. В холле, в темной зоне даже удалось сделать небольшой кабинет.
Интерьер квартиры исполнен в неоклассическом стиле с элементами эстетики гламура, которая особенно отчетливо прослеживается в спальне. Центральное помещение исполнено на контрасте белоснежной столовой группы и песочно-рыжеватой гостиной.
На фоне белых стен и каменных полов особенно эффектно выделяются коричневый кожаный диван, золотисто-рыжий паркет, а главное – фотопанно в духе классической живописи. Высокий лепной карниз с симметричным орнаментом, зеркала в отделке простенков и потолка, а также декоративная штукатурка с эффектом травертина усиливают традиционную стилистику интерьера. В покрытии стен угадываются венецианские мотивы.
Комплектация объекта
Строительство, компания «Алекс»
Строительные и отделочные материалы и изделия
Декоративная финишная отделка стен и потолков, фактурная штукатурка, поставщик AD Modum; краска Tikkurila
Лепной декор из гипса Сергей Гаврилин
Баннеры с водонепроницаемой пленкой, поставщик «Иллан»
Зеркала, стекло, поставщик «ВР Стекло»
Двери, поставщики Bellissimo, Rimadesio
Керамогранит Coem
Свет SLV, Fabbian
Настенные часы Nomon
Сантехника Rifra, смесители Hansgrohe, душ Hueppe
Мебель
Гостиная, столовая Gamma Arredamenti
Кухня Leicht
Спальня Caccaro
Оборудование
Системы вентиляции и кондиционирования Mitsubishi
Электроустановочные изделия Jung
Радиаторы Arbonia
Теплый пол Devi
Ретро-офис с арт-объектами
Усадьба с французским акцентом Поиски нового офиса привели владельцев архитектурного бюро «Крупный план» к неожиданному, но очень значимому шагу – приобретению особняка - объекта культурного наследия XIX века...























Созидание как эволюция: офис бюро «Крупный план»
Равновесие, цельность и гармония как результат работы архитектора…
Ландшафтный архитектор. Инженер. Проектировщик. Логик.
«Мода в интерьере — это зеркало нашего быта»...
Храм в городе 
11
22
33
44
55
66
77
88
99
1010 