В квартире на севере Москвы дизайнеры воплотили мечту хозяев об эклектичном и интеллигентном классическом интерьере, в котором тесно переплетаются черты различных исторических стилей и направлений. Ее облик и стилистику во многом определили наклонные окна, выстроенные по главному фасаду – бывшие лоджии, пристроенные к общему жилому помещению. Благодаря им подробно декорированная квартира стала напоминать прогретый солнцем загородный дом с большой семейной историей.
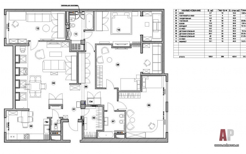
Квадратная в плане квартире входным блоком и центральным коридором разделена на две практически равные части. Слева от входа расположена гостиная с обеденной группой, диванной зоной и библиотекой, которая объединена с кухней. На одной оси с общественными помещениями выстроен кабинет хозяина. Справа от входа находится блок приватных помещений: три спальни (две детские и родительская), две ванные комнаты и гардеробные.
С гостевыми помещениями они соединяются коридором, оформленным в английском стиле.
В этом подробном и плотно декорированном интерьере зашифрованы отсылки к разным классическим стилям и направлениям: английская классика, французский Прованс, американское кантри, итальянский классицизм. Перемещаясь из помещения в помещение, словно путешествуешь во времени по разным странам. Интерьер гостиной выглядит основательно и добротно благодаря американской и итальянской мебели из массива темного дерева.
Несмотря на то, что здесь нет антиквариата и семейных реликвий, квартира выглядит обжито и напоминает родовое поместье с историей. Английские обои в клетку и с викторианским орнаментом придают помещениям декоративность. В спальнях их сменяют обои с традиционным французским цветочным декором: нежным и романтичным.
Комплектация объекта
Мансардные окна VELUX
Двери IPA
Паркет, поставщик Ital Parchetti
Плитка, поставщик «Кредит Керамика»
Свет Cafissi
Часы Lenzkirch, Gustav Becker
Сантехника, поставщик Konzept
Мебель
Прихожая Fratelli Pavanello
Гостиная Bamax, Cafissi, Tiferno Mobili, Dolfi, Fratelli Pavanello , Hooker
Кухня Bamax
Cпальня Bamax, Cafissi, Tiferno Mobili
Гардеробная Bernazzoli
Детские Bamax, Cafissi, Tiferno Mobili, Dolfi, Fratelli Pavanello
Санузлы Cerasa
Оборудование
Оборудование кухни Ilve
Фантазийное ар-деко
Таунхус в стиле ретрофутуризм О профессии «ландшафтный архитектор», образовании и специфике частных и общественных ландшафтных проектов говорим с Иваном Бугаевым…



















Ландшафтный архитектор. Инженер. Проектировщик. Логик.
«Мода в интерьере — это зеркало нашего быта»...
Храм в городе
Три кита современного стиля
Проект: Аэропорт «Кавказ» 
11
22
33
44
55
66
77
88
99
1010 