Супружеская пара пригласила архитектора Екатерину Петросян для оформления и создания уютной жилой среды в уже готовом доме. Исходная ситуация вызвала только позитивные эмоции: трехэтажный статный особняк, классическая планировка, двусветная полукруглая гостиная, высокие витражи настраивали на парадный лад. Снаружи дом с округлыми эркерами и поддерживающими балконами колоннами также был всем хорош, кроме цвета – ярко-желтого, кричащего.
Именно поэтому работа началась с поиска новой цветовой палитры для внешней отделки: после долгой компьютерной цветовой корректировки выбор был сделан в пользу редкого пастельного фисташкового цвета.
В основу планировочного решения дома положен классический принцип симметрии. По центральной оси первого этажа выстроены парадные гостевые помещения: холл, перетекающий в гостиную со вторым светом и центральным камином. По обе стороны от нее в полукруглых эркерах находятся столовая, совмещенная с кухней, и зимний сад. По обе стороны от холла организованы гостевые спальни и технические помещения с котельной.
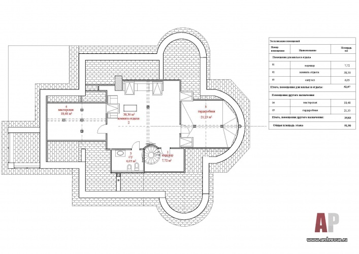
Незначительным изменениям подверглась планировка второго этажа дома, где находятся спальни, в том числе зеркально расположенные детские для мальчиков-близнецов, а также кабинет и ванные комнаты. Здесь архитектор выстроила винтовую лестницу в мансарду, которую превратила в современную зону отдыха с гардеробной и мастерской.
Благородная пастельная палитра экстерьера дома во многом определила облик его интерьеров. К нежной фисташке добились теплые оттенки слоновой кости, приглушенного золота, спелого персика. Светлая цветовая гамма во многом определила стилистику в духе французской классики. Кресла а-ля Людовик XVI, обои в стиле шинуазри, кухня с атмосферой прованса, восточные ковры и гобеленовые обивки задают тон в декоре первого этажа.
В приватных помещениях классическая тема выступает в чуть более облегченном виде. А в интерьере мансарды, и вовсе, сменяется современным декором с акцентом на фактуру красного дерева.
Комплектация объекта
Строительные и отделочные материалы и изделия
Изделия из кованого металла, компания «Кузнечное ремесло»
Лепной декор, золочение камина, компания «Ван»
Витражи, компания «Стеклодизайн»
Мансардные окна VELUX (модель GGL 3073 «Классика»)
Двери, поставщик Union
Обои ArtNobilisGroup, Blue Mountain Wallcoverings, Lewis & Mark, поставщик «Декор Буржуа»
Мрамор в отделке подоконников и столешниц, поставщик «Гранит»
Плитка Petracer’s (коллекция Rinascimento), поставщик «Декор Буржуа»; Gardenia Orchidea (дизайн Versace, коллекции Versace Royal, Versace Palace), поставщик «Примавера»
Паркет, антик дуб, поставщик «Паркет-Холл»
Массивная половая доска, ятоба, поставщик JungleWood
Камин Edilkamin (модель топки Cristal 90), Arriaga (модель портала – Preston), поставщик «Центр каминов»
Свет Beby Group, поставщик «Декор Буржуа»; Versace Home, поставщик «Примавера»
Сантехника Villeroy & Boch
Мебель
Beby Group, Bauformat
Оборудование
Телевизоры Pioneer
Зеленый «Клевер»
Дом в васильковых тонах Поиски нового офиса привели владельцев архитектурного бюро «Крупный план» к неожиданному, но очень значимому шагу – приобретению особняка - объекта культурного наследия XIX века...



















Созидание как эволюция: офис бюро «Крупный план»
Равновесие, цельность и гармония как результат работы архитектора…
Ландшафтный архитектор. Инженер. Проектировщик. Логик.
«Мода в интерьере — это зеркало нашего быта»...
Храм в городе 
11
22
33
44
55
66
77
88
99
1010 