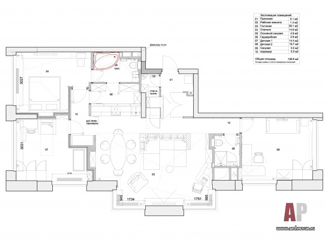
Современная квартира для семьи с двумя детьми расположена в жилом комплексе премиального класса. При сложной исходной конфигурации плана она обладала неоспоримым достоинством – восхитительным панорамным видом из окон. Отчасти привязываясь к ним, а отчасти руководствуясь логистикой передвижения в небольшом пространстве, архитекторам следовало разместить на площади 100 кв. м помимо гостевого блока три спальни, два санузла, две гардеробные, кабинет и серверную.
Кроме того, в качестве обязательного условия заказчики обозначили наличие сквозной планировочной триады: спальня хозяев – ванная – гардеробная комната. При создании дизайн-проекта выбор был сделан в пользу разумного минимализма. Ключом к образу квартиры являются оригинальные стеллажи с правильной геометрией и ломаный ритм потолка.
Центральную часть в прямоугольной квартире занимает просторная гостиная (площадью 40 кв. м), она объединена с кухней, столовой и кабинетом. Разные по назначению зоны выделены с помощью сложной геометрии подвесных потолков и углового библиотечного стеллажа. По обе стороны от гостиной расположены детские комнаты.
Хозяйские апартаменты со своей ванной и гардеробной находятся справа от входа и соединены с остальными помещениями длинным коридором.
Небольшая трехкомнатная квартира выполнена в современном модернистком стиле. В облике всех помещений явно читаются три геометрические фигуры: прямоугольник, квадрат и трапеция. Чтобы визуально усложнить свободное пространство гостиной-кухни автор предложила сделать подвесные потолки. Два трапециевидных объема разрезают потолок гостиной, делая помещение зрительно еще более просторным и одновременно четко обозначая разные по назначению зоны.
Динамику потолка подчеркивает декор полов – огромные квадратные щиты, масштабирующие помещение, а также угловой стеллаж, намечающий два вектора движения: к диванной группе и к кабинету. Помимо гостиной глянцевые белые стеллажи с ультрасовременным дизайном присутствуют также в спальне, деткой и ванной комнате. Природные акценты в интерьере с жесткой геометрией – фотообои с видом водопада и монохромная золотисто-песочная цветовая гамма.
Комплектация объекта
Строительство, компания AFK-Group
Строительные и отделочные материалы и изделия
Изделия из дерева, декоративные панно, компания «Венгес»
Декоративные финишные отделки стен, потолков, компания «Студия Марата Ка»
Гипсокартон, производитель и поставщик «КНАУФ»
Двери L'Invisible, поставщик фирма Union
Щитовой наборный паркет из брашированного дуба, поставщик «Студия Паркетных Решений»
Зеркала, поставщик «Московская Зеркальная Фабрика»
Фотопечать, поставщик «Драфт Принт»
Декоративный свет, поставщик ITG
Технический свет iGuzzini, Wever & Ducré
Сантехника Boffi, Villeroy & Boch
Мебель
Гостиная Flexform, Emmemobili
Детские Flexform
Кухня Modulnova
Вся мебель – поставщик ITG
Оборудование
Система вентиляции кондиционирования Daikin, поставка и монтаж SKN group
Аудио-видеооборудование Pioneer
Электротехническое оборудование, поставщик ITG
Оборудование кухни Siemens
Квартира с панелями из палисандра
Маленький лофт для одного Поиски нового офиса привели владельцев архитектурного бюро «Крупный план» к неожиданному, но очень значимому шагу – приобретению особняка - объекта культурного наследия XIX века...





















Созидание как эволюция: офис бюро «Крупный план»
Равновесие, цельность и гармония как результат работы архитектора…
Ландшафтный архитектор. Инженер. Проектировщик. Логик.
«Мода в интерьере — это зеркало нашего быта»...
Храм в городе 
11
22
33
44
55
66
77
88
99
1010 
Перед нами была поставлена задача сделать невозможное возможным: разместить в трехкомнатной 100-метровой квартире с невероятно неблагоприятной исходной конфигурацией плана семью с двумя разновозрастными детьми. То есть организовать гостиную, кухню, три спальни, два санузла и две гардеробные. И при столь плотной структуре сохранить ощущение простора и свободы. Но, судя по тому, что взрослые довольны, а дети катаются по квартире на тумбочках на скорость, нам это удалось!