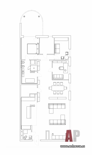
Современная квартира расположена в историческом центре Москвы. В плане она представляет собой сильно вытянутый прямоугольник (изначально это было 5 нанизанных на коридор комнат) с окнам только по одной длинной стороне. Перед архитектором стояла непростая задача создать уютное и функциональное жилое пространство для молодой семьи, полностью нивелировать планировочные недостатки квартиры.
В итоге каждый архитектурный и декоративный прием, использованный в проекте, работает на правильное решение объема и гармонизацию пространства.
Квартира разделена на два блока: гостевую зону и хозяйские апартаменты. Чтобы визуально расширить пространство и сделать его более светлым, архитектор предложила сделать коридор частью общественного пространства. Гостиная, кухня, столовая решены по студийному принципу с перетекающими друг в друга зонами.
К репрезентативной зоне примыкает кабинет. За счет использования панелей из стекла с легкой тонировкой вместо глухих перегородок он выглядит как стеклянный куб и тоже работает на общую идею расширения пространства. Приватные помещения (спальня, ванная, гардеробная и гостевая) расположены в дальней части квартиры. Логика движения в них также тщательно продумана. Например, попасть из спальни в ванную или в гардеробную можно напрямую, так как в них по два входа, чтобы утром не беспокоить спящего.
Задача декоративных приемов – гармонизировать пространство, визуально его расширить и компенсировать нехватку естественного света. Так, в оформлении использованы панели из стекла (прозрачного, тонированного и зеркального), они создают дополнительную перспективу. Визуально собирает пространство общей гостиной дубовый пол, собранный из укрупненных (1,20 Х 1,20) квадратов по индивидуальному рисунку.
Комфортную среду формирует декоративная отделка стен и потолка финишными покрытиями одного цвета и фактуры. Финиши имитируют фактуру замши, притом отсутствие четкого ритма в рисунке дает ощущение приближения и собирает вытянутый объем квартиры. Простая и функциональная мебель правильных пропорций без избыточного декора завершает облик современного интерьера.
Комплектация объекта
Декоративные финишные покрытие стен, полов, потолков, «Студия Марата Ка»
Пошив штор, компания Ashley
Строительные и отделочные материалы и изделия
Гипсокартон, производство «КНАУФ»
Раздвижные перегородки от компании, поставщик TRE-P&TRE-Più
Натуральный камень, поставщик «Бенефит»
Декоративный свет Murano Due, Minotti, Artemide, поставщик «Философия Дизайна»
Встроенные светильники iGuzzini
Сантехника Toscoquattro
Мебель
Гостиная Minotti, поставщик «Аркада»
Кабинет Matteograssi, Molteni&C
Кухня Minotti, поставщик «Аркада»
Спальня Giorgetti, поставщики «Философия Дизайна», «Интерьеры Махараджей»
Оборудование
Система вентиляции и кондиционирования Daikin
Электроустановочные изделия, поставка и монтаж, компания «Реал Р»
Современная квартира для молодой семьи
Квартира в стиле современная классика Поиски нового офиса привели владельцев архитектурного бюро «Крупный план» к неожиданному, но очень значимому шагу – приобретению особняка - объекта культурного наследия XIX века...











Созидание как эволюция: офис бюро «Крупный план»
Равновесие, цельность и гармония как результат работы архитектора…
Ландшафтный архитектор. Инженер. Проектировщик. Логик.
«Мода в интерьере — это зеркало нашего быта»...
Храм в городе 
11
22
33
44
55
66
77
88
99
1010 
Квартира имеет очень сложный план, поэтому здесь нет декора, только правильно решенный объем! Зрительно расширяли длинное узкое пространство с окнами по одной стороне и невысокими потолками мы всеми возможными средствами: студийной планировкой, использованием отраженного света стеклянных панелей, отсутствием элементов с четким ритмом… Марат Ка предложил мне оригинальное решение оформления стен и потолков. Он сказал, что раз такая сложная исходная ситуация, то не надо ее скрывать, нужно человека девизуализировать, перевернуть все с ног на голову. Сделать светлый пол и плотный, насыщенный потолок. Поэтому стены и потолок он оформил декоративными финишами одного цвета и фактуры с имитацией замши.