Двухэтажная квартира находится в историческом здании в центре Москвы. Ее интерьер был задуман как дизайнерский эксперимент – смелый и эклектичный. Для своего хозяина - любителя современного искусства большого фантазера – она одновременно служит местом для жизни, рабочей студией и выставочной площадкой.
Пространство квартиры организовано на двух уровнях. Первый этаж – студийное пространство общественной зоны, оно включает в себя гостиную с камином, кухню и столовую. Центральное положение занимает лестница, ведущая на второй этаж, где расположены приватные помещения.
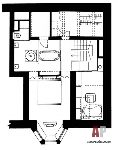
Ступая с лестницы в холл второго этажа, сразу попадаешь в ванную комнату, которая отгорожена стеклянными перегородками. К ней примыкает SPA-комплекс с сауной, гардеробная и спальня с эркером. Кровать в ней размещена изголовьем ко входу, чтобы удобнее было любоваться рассветами прямо из кровати.
Эклектичный интерьер исполнен на контрастах. Светлая древесина ясеня в нем сочетается с пурпурными драпировками и фактурной штукатуркой. Красная глянцевая кухня в стиле ар-деко с необарочными китчевыми креслами, жесткой лестницей из металла и минималистским модульным стеллажом, где размещена коллекция авторских кукол.
Хромированная кухонная техника и современные хай-тековые светильники усиливают ощущение дизайнерского арт-пространства.
Комплектация объекта
Текстильный дизайн, компания «Экипе»
Строительные и отделочные материалы и изделия
Декоративные финишные покрытия стен, компания «Артель»
Окна, поставщик «Диаста»
Массивная половая доска Nolte, поставщик «Паркет-Холл»
Керамическая плитка, мозаика, поставщик RIM.ru
Свет Album , Ingo Maurer, поставщик DK Project
Сантехника Duravit, Rapsel, поставщик «Нэксклюзив»
Мебель
Кухня «Allmilmо»
Оборудование
Система вентиляции и кондиционирования Daikin
Системы безопасности, поставка и монтаж «УльтраСтар»
Оборудование кухни Siemens, Kuppersbusch
Квартира в минимализме
Ресторан в стиле фьюжн Поиски нового офиса привели владельцев архитектурного бюро «Крупный план» к неожиданному, но очень значимому шагу – приобретению особняка - объекта культурного наследия XIX века...














Созидание как эволюция: офис бюро «Крупный план»
Равновесие, цельность и гармония как результат работы архитектора…
Ландшафтный архитектор. Инженер. Проектировщик. Логик.
«Мода в интерьере — это зеркало нашего быта»...
Храм в городе 
11
22
33
44
55
66
77
88
99
1010 