Интерьер респектабельной квартиры создан в стиле современной классики (руководитель проекта Денис Бабков, студия «АРС-Проект»). Заказчик хотел функциональный интерьер с традиционным декором. Одним из пожеланий также было наличие просторной гостиной, максимально удаленной от приватной части.
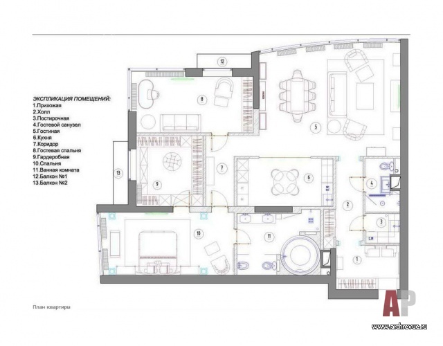
Квартира в новом жилом комплексе изначально была сдана в свободной планировке с двумя несущими стенами. Исходя из этих условий, архитекторы предложили оптимальный планировочный вариант с логичным разделением пространств на два самостоятельных блока.
Значительную часть площади занимают хозяйские апартаменты (спальня, гардеробная, ванная). Кухня вынесена в центр объема и является продолжением просторной гостиной-столовой. Нехватка естественного освещения в зоне кухни компенсирует стеклянная перегородка, отделяющая ее от столовой. Композиционный центр гостевой зоны – домашний кинотеатр, он формирует своего рода ось, вдоль которой выстраиваются диванная зона, столовая группа и камин.
С точки зрения стиля интерьер квартиры представляет собой переосмысленный вариант традиционной классики. В работе над проектом авторы использовали характерные для классического стиля приемы декорирования: роскошный натуральный камень, художественный паркет, гипсовую лепнину с позолотой.
В отделках использовались исключительно натуральные материалы с богатой текстурой, редкие породы дерева и камня. Значительная часть элементов декора создавалась конкретно под этот проект.
Комплектация объекта
Строительство, компания «А.Н.Интерьерстрой»
Изделия из дерева, компания «МЭМ»
Отделочные материалы
Двери, на заказ, по эскизам авторов проекта, изготовление «МЭМ»
Портал камина, на заказ, изготовление «Стрелец-Камины Петербурга»
Натуральный камень, мрамор, поставщик «Гранит+»
Мраморная плитка Petra Antiqua, поставщик «Итаком»
Мраморная мозаика Megaron, поставщик «Фиера люкс»
Декоративный свет Fine Art Lamps, Schonbek, поставщик «Baker шоу-рум»
Технический свет, поставщик DreamLight
Санузел Kohler, THG
Мебель
Гостиная Baker, Christopher Guy
Столовая Hickory Chair, Baker
Кухня Downsview Kitchens
Спальня Baker
Вся корпусная мебель и аксессуары – поставщик «Baker шоу-рум»
Встроенная мебель, гардеробная, на заказ, по эскизам авторов проекта, изготовление «МЭМ»
Оборудование
Система кондиционирования Daikin
Электроустановочное оборудование, поставщик DreamLight
Аудио- и видеотехника Pioneer
Современное ар-деко
Интерьер квартиры в классике О профессии «ландшафтный архитектор», образовании и специфике частных и общественных ландшафтных проектов говорим с Иваном Бугаевым…
























Ландшафтный архитектор. Инженер. Проектировщик. Логик.
«Мода в интерьере — это зеркало нашего быта»...
Храм в городе
Три кита современного стиля
Проект: Аэропорт «Кавказ» 
11
22
33
44
55
66
77
88
99
1010 