Колумбия – горная страна. Нет ничего хуже, когда в горах стоят высокие здания. Это небезопасно и не эстетично. Построить хорошую красивую высотку на фоне гор очень трудно, не каждый архитектор это может. Поэтому вполне понятно, почему архитектурное бюро David Ramirez Arquitectos специализируется в основном на небольших строениях. Что еще нужно для счастья бедному колумбийскому дизайнеру? – немного кофе-нефте-кокаиновых денег, дешевая рабочая сила и райский пейзаж вокруг. Главный работник архитектора здесь – это потрясающей красоты колумбийская природа. Она создает самое важное – атмосферу райского наслаждения. Архитектор лишь достраивает все остальное.
Дом стоит на склоне великих Анд в местечке Ретиро, в 30 минутах езды от Медельина. Дом построен в 2009 году, общая площадь, включая террасы, 352 кв. метра. Этот двухуровневый дом расположен в живописном местечке в окружении леса с поэтичным видом на колоритную плотину Ла-Фе, очень похожую на природное горное озеро.
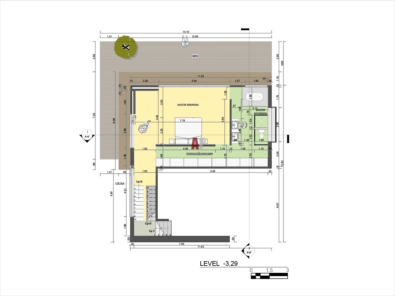
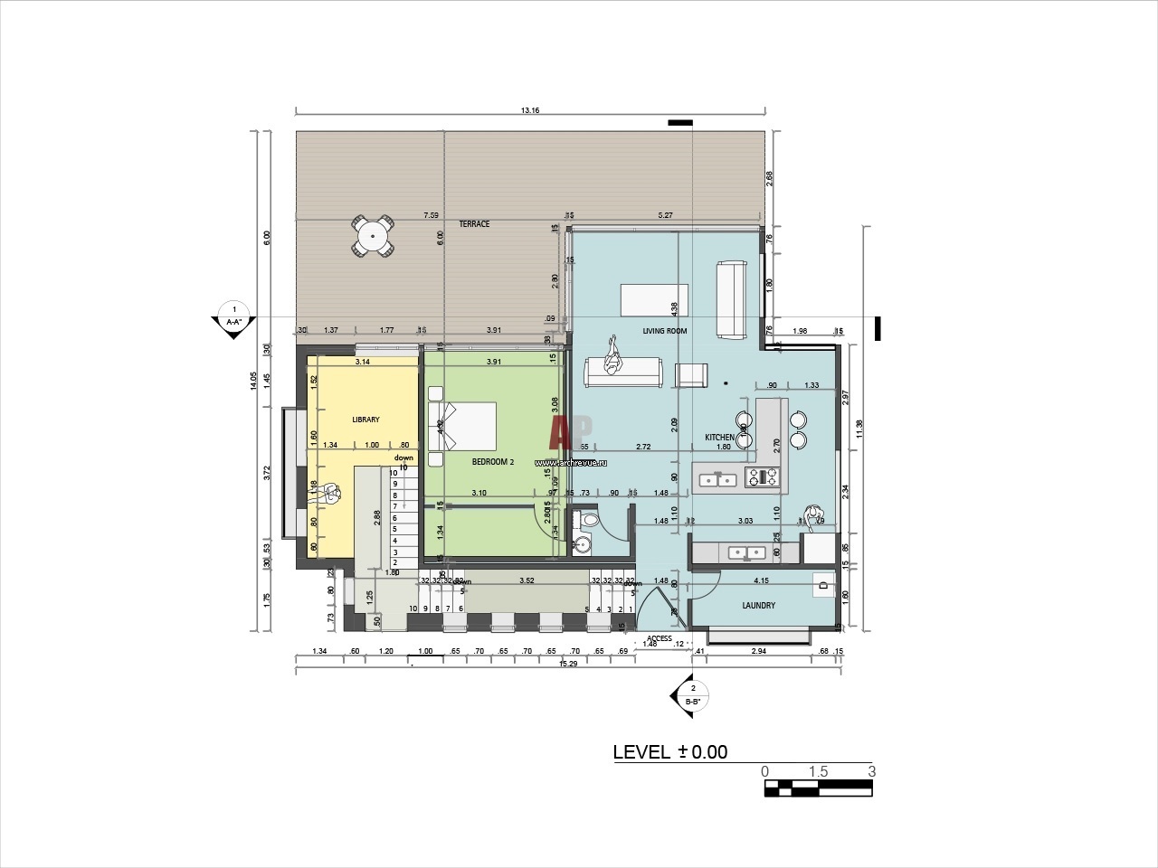
Дом относительно небольшой, в нем находятся две спальни, просторная гостиная, пара кабинетов и романтичные террасы. Главный вход расположен с задней стороны дома и проходит через верхний уровень. С этой стороны от автостоянки к дому ведет мраморная лестница, которая опоясывает все строение и выходит на нижнюю большую деревянную террасу.
На первом этаже доминируют окна, занимающие почти всю стену. Все внимание этой комнаты сосредоточено на пейзаже за окном. Красивейшая горная панорама открывается с трех сторон. Боковые стены также имеют большие окна. Общая комната продолжается деревянной террасой, которая подходит к самому краю склона. Гостиная совмещена с кухней, поэтому помещение первого этажа представляет собой одну просторную комнату с небольшими функциональными перегородками. Этажи соединяет узкий и ничем не примечательный коридор. Интересно, что вспомогательные помещения дома не имеют самостоятельного значения. К этим помещениям можно отнести и кабинет, который из-за своего малого метража и какой-то структурной неосмысленности не представляет собой законченной комнаты.
Второй этаж гораздо интереснее, хотя по размеру существенно меньше первого. По сути, это всего лишь одна большая комната с перегородкой, отделяющей спальную часть от санузла. Вместо стены – окно. Пейзаж в целом тот же, что и на первом этаже, но есть интересное отличие. Склон, на котором расположен дом, довольно крутой, поэтому второй этаж находится на уровне верхушек деревьев. Выйдя на небольшую террасу второго этажа, видишь прямо под собой простирающиеся деревья и горы. Значительную часть видимой природной картины занимает небо.
Вся постройка выполнена в стиле современного функционализма, что хорошо дополняет мебель в стиле лофт. Нет ничего лишнего, никаких декораций. Видимо, таким минимализмом архитектор хотел подчеркнуть живописность окружающей дом природы. Из всего вышесказанного можно сделать вывод, что дом несамодостаточен – он сконцентрирован на пейзаже. Благо, что в Колумбии нет зимы. На белом фоне такая заостренность на природе выглядела бы легкомысленной.
Дата создания: 2009
Расположение: Медельина, Колумбия
Площадь строения: 352 кв.м
Архитекторы: David Ramirez Arquitectos






























Форма-Польза-Красота. Три кита правильного интерьера
Созидание как эволюция: офис бюро «Крупный план»
Равновесие, цельность и гармония как результат работы архитектора…
Ландшафтный архитектор. Инженер. Проектировщик. Логик.
«Мода в интерьере — это зеркало нашего быта»... 
