Фото интерьера входной зоны квартиры в стиле неоклассика Фото интерьера столовой квартиры в стиле неоклассика
Фото интерьера кухни квартиры в стиле неоклассика
Фото интерьера спальни квартиры в стиле неоклассика
Фото интерьера санузла квартиры в стиле неоклассика
Фото интерьера гардеробной квартиры в стиле неоклассика
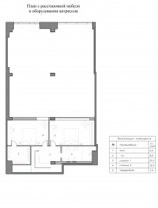
Планировка 1 этажа квартиры с антресолью для временного проживания.
Фото интерьера входной зоны квартиры в стиле фьюжн
Фото интерьера входной зоны квартиры в стиле фьюжн
Фото интерьера гостиной квартиры в стиле фьюжн
Фото интерьера гостиной квартиры в стиле фьюжн
Фото интерьера гостиной квартиры в стиле неоклассика
Фото интерьера каминной квартиры в стиле неоклассика
Фото интерьера кухни квартиры в стиле неоклассика
Фото интерьера будуара квартиры в стиле неоклассика
Фото интерьера гостевой квартиры в стиле неоклассика
Фото интерьера кабинета квартиры в стиле неоклассика
Планировка 2 этажа квартиры с антресолью для временного проживания.
Фото интерьера коридора квартиры в стиле фьюжн
Фото интерьера гостиной квартиры в стиле фьюжн
Фото интерьера гостиной квартиры в стиле фьюжн
Фото интерьера каминной квартиры в стиле неоклассика
Фото интерьера зоны отдыха квартиры в стиле неоклассика
Фото интерьера спальни квартиры в стиле неоклассика
Фото интерьера ванной комнаты квартиры в стиле неоклассика
Фото интерьера гостевой квартиры в стиле неоклассика
Фото интерьера сауны квартиры в стиле неоклассика
Фото интерьера входной зоны квартиры в стиле фьюжн
Фото интерьера входной зоны квартиры в стиле фьюжн
Фото интерьера зоны отдыха квартиры в стиле фьюжн
Фото интерьера гостиной квартиры в стиле фьюжн