Команда студии Hills оформила квартиру на Шаболовке и вступила в диалог с главной архитектурной доминантой района – Шуховской башней.
Именно стилистика конструктивизма вдохновила авторов проекта на этот выразительный интерьер, созданный для семейной пары с детьми. В работу им достался очень непростой «исходник». Трехэтажная квартира площадью 288 кв. м с большой террасой находится в доме, построенном на начале 2000-х годов. Изначально она имела сложную структуру: этажи с дробной нарезкой помещений смещены по вертикали, нерациональная лифтовая шахта, которая занимала много места и «съедала» пространство, проходная прихожая, лестница при входе, несущие колонны на видовых осях – все это создавало ощущение хаоса и вызывало дискомфорт. Поэтому работа над проектом началась с серьезных конструктивных изменений. Первоначальный этап (перепланировка, разработка дизайн-проекта), предшествующий собственно ремонту, занял около года. В итоге заказчики решились на радикальные изменения и получили комфортный, функциональный и эстетичный интерьер для жизни большой семьи в городе.
Архитекторы демонтировали почти все перегородки, заменили лифт на легкую металлическую лестницу с перфорацией, гармонично обыграли несущие колонны, не скрывая их, а напротив, сделав визуальной особенностью пространства.
Они реализовали запрос заказчиков на современный, воздушный интерьер с логичным зонированием и понятной логикой движения. Помимо общей дневной зоны, приватных помещений для родителей и двоих детей, авторы предусмотрели два отдельных рабочих места и достаточное количество систем хранения.
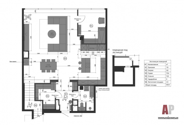
На первом этаже разместили прихожую с выходом в гостевой санузел и гардеробную, а также просторную гостиную-кухню-столовую, из которой можно попасть в гостевую спальню. На втором этаже спроектировали приватные апартаменты: кабинет, спальню и детскую, два санузла, кладовку, гардеробную и сауну с постирочной. Через холл второго этажа лестница ведет на третий уровень с домашним кинотеатром, рабочей зоной, небольшой кухней и санузлом. Таким образом архитекторы максимально раскрыли потенциал многоуровневого объекта с террасой площадью 58 кв. м.
Заказчики ориентировались на современный и минималистичный стиль, который хорошо сочетается с функциональностью и комфортом.
При выборе материалов они хотели избежать использования натуральной кожи в отделке или мебели: в семьи живут две кошки. Архитекторы предложили обыграть месторасположение квартиры и подчеркнуть декоративными решениями вид на ажурную башню Шухова. Открытые несущие колонны, микроцемент в отделке стен, панели из металла и бетона, керамогранит под камень, строгая геометрия декоративных элементов – все это отсылает к эстетике конструктивизма. Их брутальность уравновешивает обилие натурального дерева, характерное для стиля джапанди.
Комплектация объекта
Строительные и отделочные материалы и изделия
Изделия из дерева, стеновые панели, компания Униквариум
Скульптурный камин с медной трубой, на заказ
Работы по камню, остров, столешницы кухни, компания Энитоп
Двери под покраску и панели, поставщик LETO
Микроцемент, поставщик Topciment
Панели бетонные настенные, поставщик Neklinker
Инженерная доска, поставщик Coswick
Каменный шпон, поставщик Leaf Stone
Керамогранит, поставщик ItalON
Свет Стильный свет, Astep, Eichholtz, Oluce, Flos, Centrsvet
Зеркало Object Wood
Ковры, поставщик Ami ковры
Сантехника SantiLine; душевая система Grohe; смесители Migliore, Paffoni, Cezares; крючки IDDIS; инсталляция Tece
Мебель
Гостиная диван Arts Sofa, столик журнальный Object Wood
Столовая стол обеденный Tattahome, стулья Archipélago
Кухня, на заказ – изготовление Униквариум
Спальня кровать, на заказ; тумбы прикроватные Lulu and Georgia
Детская кровать, на заказ
Гостевая спальня кровать и банкетка, на заказ; прикроватная тумба Angel Cerda
Рабочая зона стул Lulu and Georgia, кресло Herman Miller
Кинозал диван Mononova, журнальный столик SK Design
Кровати и банкетки на заказ – изготовление Облако
Эксцентричный дом для удовольствия
Деревянная усадьба в Подмосковье О профессии «ландшафтный архитектор», образовании и специфике частных и общественных ландшафтных проектов говорим с Иваном Бугаевым…

































Ландшафтный архитектор. Инженер. Проектировщик. Логик.
«Мода в интерьере — это зеркало нашего быта»...
Храм в городе
Три кита современного стиля
Проект: Аэропорт «Кавказ» 
11
22
33
44
55
66
77
88
99
1010 
«Мы использовали в интерьере материалы российских производителей и авторские изделия по нескольким важным причинам. Во-первых, это поддержка отечественных предприятий и ремесленников, помощь в сохранении и развитии наших технологий. Во-вторых, российские компании предлагают более выгодное соотношение цена-качество по сравнению с импортными аналогами. Это позволяет реализовать проект с учетом бюджета без ущерба для эстетики и долговечности. Еще один плюс – возможность работы с локальными производителями, а значит более гибкий и индивидуальный подход к проекту».