Новый проект дизайнера Владимира Афанасьева – частный дом в Ялте с живописным видом на море и горы и расслабленной атмосферой. Связанная с ним история началась с обращения молодой семейной пары с тремя детьми с предложением найти и оформить дачу в красивом месте России, куда можно приезжать надолго в любое время, и где у каждого члена большой семьи будет свое место для уединения, а также пространство для общего досуга и приема гостей.
Заказчики живут в Москве, и из-за отдаленного расположения и занятости у них не было возможности посещать объект. Поиски подходящей недвижимости, выбор исполнителей, контроль за выполнением работ и поставками мебели и материалов они полностью доверили Владимиру Афанасьеву. Хозяева впервые приехали в дом только через полтора года, где их ожидал полностью укомплектованный интерьер.
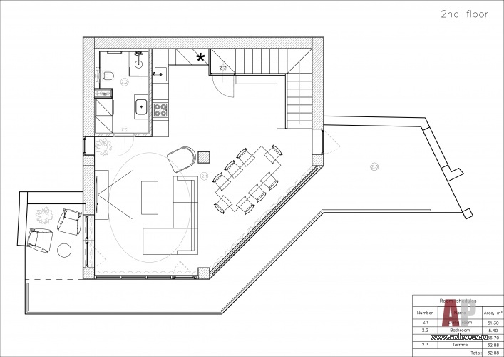
«Заказчики поставили задачу подыскать дом в Ялте, подходящий по ряду параметров: расположенный в тихом уединенном месте, с достаточной для большой семьи площадью. Я посмотрел более двадцати объектов и нашел идеальный», - рассказывает автор проекта. Дом площадью 250 кв. м, из которых 95 кв. м занимают террасы, находится в горах, из его окон открывается живописный вид на бухту и горы. С одной стороны к участку примыкает охранная зона заповедника, которая никогда не будет застраиваться.
«Мы прибрели дом на стадии бетонной коробки, без отделки. Из минусов отмечу не самую удачную архитектуру – возможно, дом изначально планировался как гостевой – с поясом террас на этажах и большим количеством выходов на каждом из них. Но место, ландшафт и внутренняя архитектура все компенсировали», - рассказывает дизайнер. Чтобы сбалансировать объем, он пристроил дополнительную террасу и хозблок, полностью отделал заново фасад и разработал ландшафтный проект. В итоге получилась комфортная современная дача на море для большой семьи.
Дом с жилой площадью 150 кв. м 95 кв. м террас построен на сложном рельефе. Он достался без внутренних перегородок, поэтому планировка производилась с нуля с учетом потребностей большой семьи.
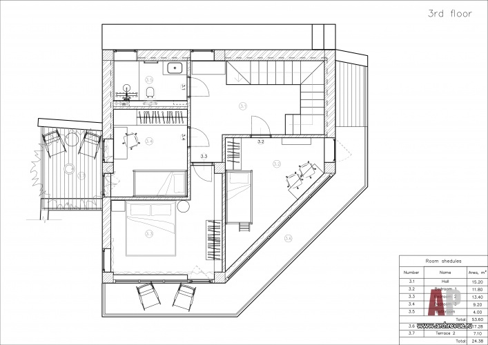
Работу с пространством осложняла небольшая площадь этажей (всего 50-60 кв. м) с центральной монолитной колонной в центре каждого из них. При этом техническое задание было довольно обширным: помимо мастер-спальни нужно было спроектировать две отдельные детские, два санузла (один с постирочной), а также большое пространство кухни-столовой-гостиной, чтобы собираться в ней всей семьей. Дизайнеру даже удалось организовать многофункциональное пространство на верхнем уровне: с камином и небольшой кухней. Оно может служить как гостиной для зимних посиделок, так и кабинетом или гостевой спальней. Кроме того, именно отсюда открывается лучший панорамный вид и выход на большую террасу с лежаками, где летом можно комфортно загорать.
«Чтобы разместить все необходимые жилые помещения в довольно компактном объеме, мы приняли решение спроектировать небольшую пристройку к дому. В нее перенесли часть инженерных узлов, а также сделали хранение для хозяйственного инвентаря. Плюс к одной из спален была спроектирована и возведена отдельная уединенная терраса», - рассказывает автор проекта.
Отопление дома осуществляется исключительно за счет водяного теплого пола. Климат в Ялте теплый, и этого вполне достаточно. Уже после приобретения дома был согласован проект и заведен газ, также была возведена полностью оборудована котельная и переделана система канализации. Была организована уличная инженерия, включающая систему полива и освещения ландшафта.
Интерьер дома идеально отражает его назначение – комфортный отдых на море. Нейтральные цвета, тактильные материалы, природные формы служат продолжением пейзажа и настраивают на медитативный лад.
«Нам не хотелось перегружать интерьер обилием цветов. Хотелось сделать его спокойным, поэтому мы использовали оттенки бежевых и коричневых цветов, а в качестве акцентов – синие, как отсылка к морю, и теплые терракотовые оттенки», - рассказывает автор проекта.
Особенность проекта в том, что он реализован в рамках согласованного бюджета. В отделке использованы относительно недорогие, но качественные материалы. На полу всех помещений – керамогранит, на стенах и потолках – износоустойчивая канадская краска. В детской мальчиков доминантой является стена из профлиста, окрашенного в синий цвет. Она является брутальным элементом и служит импровизированной магнитной стеной для игр детей.
Идея проекта – использование мебели и аксессуаров исключительно отечественных дизайнерских брендов. Из готовых изделий, пожалуй, самым примечательным предметом стала лавка бренда Karenga в гостиной, выполненная из массива термированного тополя, который непредсказуемо впитывает масло при отделке и выглядит очень оригинально. А из авторских решений акцентом служит стеллаж в гостиной, который также играет роль лестничного ограждения. Поэтому несмотря на всю легкость и воздушность конструкции, она имеет хороший запас прочности.
Комплектация объекта
Строительные и отделочные материалы и изделия
Двери, поставщик Pro Design
Финишная отделка стен и потолков, краска MF Paints, поставщик Sherwinstore
Керамогранит ItalON, поставщик «Барс»
Ковры, поставщик Troubadour
Свет Tayga Design, Ceramum, Svoy design
Текстиль, поставщик Troubadour
Керамика, поставщики 4Elements Gallery, «Нежно»
Сантехника Bossini, поставщик «Европейская cантехника»
Мебель
Гостиная диван The Idea пуф Annki Studio, лавка Karenga, кофейный столик Ominimalism, кресло Delo Design
Столовая стол и стулья «Ток»
Кухня и стеллаж, на заказ
Спальня кровать, поставщик Divan.ru; прикроватные столики Ceramum; шкаф, на заказ
Детские диван Izzikids, стулья Delo Design; столы, тумбы, зеркала и шкафы, на заказ
Мезонин с печью плетеная мебель Dantone Home; кухня и письменный стол, на заказ
Уличная мебель кресла Qullar, столик Eburet
Семейная усадьба с историей
Парижский стиль в казанской квартире О профессии «ландшафтный архитектор», образовании и специфике частных и общественных ландшафтных проектов говорим с Иваном Бугаевым…






































Созидание как эволюция: офис бюро «Крупный план»
Равновесие, цельность и гармония как результат работы архитектора…
Ландшафтный архитектор. Инженер. Проектировщик. Логик.
«Мода в интерьере — это зеркало нашего быта»...
Храм в городе 
11
22
33
44
55
66
77
88
99
1010 
«Несмотря на по большей части удаленное ведение объекта (на место я приезжал примерно раз в полтора месяца), проблем в процессе практически не возникало. Нам очень повезло со строителями, которые все выполнили на высшем уровне. Абсолютно вся мебель и большинство чистовых отделочных материалов были привезены из Москвы. Все изготавливалась на основе замеров под мою ответственность.
В этом проекте мне хотелось использовать продукцию исключительно отечественных производителей и наглядно показать, что в России много дизайнерских брендов высокого уровня. Все поставщики сработали отлично, ни от кого не было задержек или брака».