Двухэтажную частную виллу в Сочи с лаконичными фасадами из камня, дерева и стекла спроектировала, построила и оформила архитектор Наталья Толмачева. Идея проекта – современный и комфортный дом для отдыха на российском курорте с бассейном, патио и роскошными панорамными окнами, которые впускают южный пейзаж внутрь.
«Очень важно было создать объем, в котором много воздуха. Поэтому мы использовали раздвижные витражные системы на фасадах, в том числе в зоне кухни-гостиной. Создание безбарьерной среды между помещением улицей – это первое, что просят заказчики при строительстве доме именно в Сочи. Также при проектировании дома мы сразу заложили хорошую высоту потолков, в чистовой отделке она составила 3400 м. Высоту подчеркнули сомасштабными межкомнатными дверями с высотой полотна 2600 м и многовариантностью световых сценариев. В дизайне спален мы учли индивидуальные запросы членов семьи. Хотя интерьеры и получились разными, в них прослеживается общая стилистика дома», - рассказывает автор проекта.
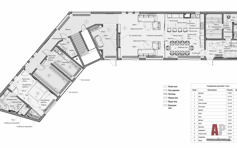
Планировка двухэтажного дома не совсем стандартная. В плане он напоминает летящую в косяке птицу. Такая форма обусловлена пожеланием заказчика создать приватный внутренний двор с бассейном, а также конфигурацией участка площадью 10 соток, особенностями его рельефа и расположением соседних домов.
Обязательными условиями также были наличие в доме большой гостиной-столовой с барной стойкой, сауны и лаунджа под открытым небом.
Пространство дома площадью 480 кв. м организовано на двух этажах. Внизу находятся прихожая, гостиная, кухня-столовая, гостевой санузел, мастер-спальня с собственным
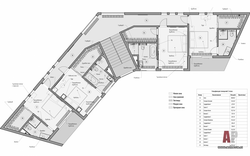
санузлом и отдельной гардеробной, а также сауна с комнатой отдыха. На втором этаже организованы четыре спальни, каждая имеет собственный санузел и гардеробную. В цокольном этаже размещены технические помещения и студия для постоянного проживания обслуживающего персонала.
Стилистика интерьера виллы соответствует современным лаконичным фасадам. В оформлении ставка сделана на декоративные штукатурки с тактильным эффектом, фактуры натурального камня и деревянные изделия: фасады мебели и панелей с необычной раскладкой и шпонированные рейки.
Интересное решение – зонирование кухни-столовой стеклянной перегородкой с тонкими черными импостами, которая позволяет трансформировать пространство из тихого семейного в празднично-гостевое. Особое настроение в общей зоне создает биокамин, воле которого семья любит собираться вечерам за разговорами и просмотром кинофильмов. В кухне-столовой акцент сделан на белоснежный обеденный стол на восемь персон.
Невесомость композиции уравновешивает шпонированная кухня и двери. В мастер-спальне черные оттенки смягчает дерево, в детских и гостевых эффектным декоративным приемом служат шпонированные рейки, элементы из латуни и насыщенный по цвету текстиль.
Комплектация объекта
Строительство и ремонтные работы, компания Д-строй
Строительные и отделочные материалы и изделия
Отделка фасадов керамогранит Laminam, поставщик «Терра»
Оконные раздвижные системы Schuco, поставка и установка компания «Сочи Стекло Комплекс»
Керамогранит для улицы и бассейна Ceramica Mayor, поставщик «Люкс Керамика»
Раздвижные перегородки из закаленного стекла, компания Graviti
Межкомнатные двери Academy, поставщик салон дверей и напольных покрытий «Панга-Панга»
Декоративная отделка стен, краска Swiss Lake, лепнина из полиуретана, поставщик Home Decor
Инженерная доска, поставщик «Олимп Паркета»
Паркет дубовый Chevron, поставщик Lab Arte
Керамогранит Apavisa, ItalON, поставщики «Бомонд», «Мосплитка»
Текстильный дизайн, компания Great Verlion
Ковры, поставщик «Мир ковров»
Декор и аксессуары, поставщик Gilini Home
Сантехника Ideal Standard
Мебель
Прихожая диван Minotti
Гостиная диваны Minotti
Кухня гарнитур Binova, поставщик Cucine Store
Спальня кровать, тумбы, стол Antonelli Atelier
Спальни детей, на заказ
Оборудование
Системы вентиляции и кондиционирования Daikin
Сауна Harvia
Квартира в историческом особняке на Пречистенке
Яркий дом для творческой заказчицы Поиски нового офиса привели владельцев архитектурного бюро «Крупный план» к неожиданному, но очень значимому шагу – приобретению особняка - объекта культурного наследия XIX века...

































Созидание как эволюция: офис бюро «Крупный план»
Равновесие, цельность и гармония как результат работы архитектора…
Ландшафтный архитектор. Инженер. Проектировщик. Логик.
«Мода в интерьере — это зеркало нашего быта»...
Храм в городе 
11
22
33
44
55
66
77
88
99
1010 