Эта квартира в новой столичной высотке – уже третий совместный проект заказчиков и дизайнера Виктории Вольвач. Их основным пожеланием стало, чтобы интерьер был не похож на предыдущие и отражал новый этап жизни и личностного роста.
Функционально было необходимо спроектировать комфортное городское жилье для семьи с двумя детьми (девочкой и мальчиком), организовать три спальни, общую зону и функциональные вспомогательные помещения. Вдохновением для проекта стал вид из квартиры на Москву-реку. Спокойные краски и безмятежность панорамных перспектив подтолкнули к созданию интерьера с нейтральной цветовой палитрой, тактильными фактурами и исключительно натуральными материалами.
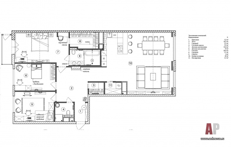
Квартира площадью 140 кв. м сдавалась в свободной планировке. Первоначально сложностью казались монолитная колонна и вентиляционная шахта, расположенные в самом центре квартиры. Однако в процессе создания дизайн-проекта их удалось чрезвычайно удачно обыграть: сделать отдельный блок мокрых зоны и организовать прекрасный просторный холл.
Чтобы визуально увеличить потолки, дизайнер использовала несколько декоративных приемов: сконструировала фальш-стены, за которыми спрятала портьеры, максимально выделила оконные проемы, обрамив черным камнем, и подчеркнула плоскости стен с помощью плинтуса скрытого монтажа, а также стеновых панелей, кухни и встроенной мебели до потолка из натурального шпона.
Сама дизайнер стилистику этого проекта определяет как «бельгийский минимализм» - спокойный интерьер с мягкими контрастами и природными фактурами. О фламандских домах прежде всего напоминает известковая декоративная штукатурка, которая вместо привычной окраски использована практически во всех помещениях.
Она имеет состаренный эффект и придает пространству ощущение творческой незавершенности, даже некоторой небрежности. Еще один характерный акцент – изделия из светлого дубового шпона с красивой текстурой, они изготовлены на заказ по эскизам автора проекта. Натуральный паркет, природный мрамор, ткани из органических тканей, деревянные жалюзи как нельзя лучше поддерживают в этом интерьере идею благородной роскоши.
Комплектация объекта
Строительные и отделочные материалы и изделия
Изделия из дерева, плинтус, компания Wood Deed
Межкомнатные двери, поставщик Union
Финишная отделка стен Lanors
Натуральный камень, поставщик «Данила Мастер»
Свет Luceplan, Tooy Panzeri
Текстильный дизайн, жалюзи, поставщик «Ашторы»
Текстиль домашний, поставщик Enere
Ковры, поставщик Dovlet House
Декор Vitra, Jonathan Adler; аксессуары, поставщики Nata Nova ceramics, Levadnaja Decor
Искусство, Reloft
Сантехника Jacob Delafon, Laufen, смесители Hansgrohe, Timo
Мебель
Прихожая и холл пуфы Woodfans, на заказ; корпусная мебель из шпона дуба, на заказ, по эскизам дизайнера
Гостиная диваны Dantone Home журнальный столик Baxter; корпусная мебель из шпона дуба, на заказ, по эскизам дизайнера
Столовая обеденный стол The ply, стулья Dantone Home
Кухня кухонный гарнитур Giulia Novars, полубарные стулья Bontempi
Спальня кровать из натуральной кожи и льна Woodfans, на заказ; корпусная мебель из шпона дуба, на заказ, по эскизам дизайнера; рабочий стул BoConcept, кресло Archipélago
Детская, корпусная мебель из шпона дуба, на заказ, по эскизам дизайнера
Корпусная мебель на заказ – изготовление Wood Deed
Поставка мебели, света и аксессуаров – ТРИО-Интерьер, Флэт-интерьеры, Dantone Home
Оборудование
Электроустановочные изделия Bticino
Оборудование кухни, бытовая техника Kuppersbusch
Светлая историческая квартира в сталинском доме
Квартира с металлическими панелями Поиски нового офиса привели владельцев архитектурного бюро «Крупный план» к неожиданному, но очень значимому шагу – приобретению особняка - объекта культурного наследия XIX века...























Созидание как эволюция: офис бюро «Крупный план»
Равновесие, цельность и гармония как результат работы архитектора…
Ландшафтный архитектор. Инженер. Проектировщик. Логик.
«Мода в интерьере — это зеркало нашего быта»...
Храм в городе 
11
22
33
44
55
66
77
88
99
1010 
«Весь процесс строительства был целой историей со множеством сюрпризов. Так как само проектирование начиналось еще во времена пандемии, а строительство захватило санкционный период, многие предметы мебели и оборудования добывались буквально с трудом. А молодые и инициативные ребята-строители каждый раз удивляли своими hand made изобретениями».