Заказчики увидели публикацию одного из интерьеров дизайнера Татьяны Красиковой и пригласили на встречу. Молодая семейная пара с ребенком приобрела квартиру площадью 90 кв. м в малоэтажном доме 1990-х годов постройки в тихом московском переулке, рядом с историческим зданием посольства Франции.
Окна квартиры выходят во двор, где ощущается старая столичная неспешность. «Симметричные эркерные окна, большая ванная комната с окном, несколько несущих колонн и ригели на потолке, которые нужно обыграть – лучший исходник и представить сложно»! – отмечает дизайнер. Ранее здесь был сделан основательный ремонт, возведены кирпичные перегородки, покрытые толстым слоем штукатурки. От морально устаревшей отделки заказчики согласились избавиться без сожаления, чтобы получить актуальный классический интерьер с элементами ретро и современной живописью.
«Самым сложным был демонтаж старой штукатурки, она была сделана на совесть! Строители ее сняли, зачистили до основания потолки и стены, а потом приступили к возведению новых перегородок, окраске поверхностей и монтажу гипсовой лепнины», - рассказывает дизайнер.
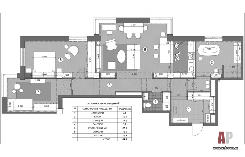
Дизайнер сделала перепланировку с учетом современных представлений о комфорте. Появилась удобная прихожая с достаточным количеством мест хранения, большая ванная комната с отдельно стоящей ванной, просторной душевой кабиной и раковиной на двоих.
Гостиную она объединила с кухней и реализовала мечту заказчиков о большом острове, где можно готовить вместе. В отдельный блок вынесла спальню и детскую, которые соединила с остальными помещениями коридором-галереей. И смогла организовать достаточно мест для хранения вещей, скрытых за мебельными фасадами, а также для музыкальных инструментов – пианино, гитар, в будущем виолончели.
Получилась идеальная квартира для отдыха и общения, культурного досуга и совместного музицирования. Настоящая тихая гавань для интеллигентной семьи.
Молодая современная пара очень любит музыку, книги, искусство, поэтому культурная составляющая стала неотъемлемой частью интерьера. Основа дизайн-проекта – классика, но не пышная и дворцовая, а спокойная, сдержанная, деликатная.
А обязательный атрибут – красивая гипсовая лепнина со сложным рисунком. Ее поддерживают арочные ниши и порталы, белые филенчатые двери, однотонные светлые стены, штучный дубовый паркет с укладкой-елочкой в духе советских времен. Советское ретро – еще одна декоративная тема интерьера.
Ярче всего она проявляется в мебели в стиле 1960-70-х годов и аксессуарах. «Очень важно было вписать в интерьер картины современных художников из коллекции клиентов. Во многом, идейным вдохновителем для меня стал художник-абстракционист Юрий Злотников. Его позитивные полотна и полная ярких красок палитра вдохновили усилить светлый классический интерьер яркими, открытыми цветами», - отмечает автор проекта.
Комплектация объекта
Строительные и отделочные материалы и изделия
Финишная отделка стен, краска Benjamin Moore
Лепной декор из гипса, поставщик «Дикарт»
Керамогранит Vives, Adex, Equipe Ceramicas
Свет, поставщик Loft Concept
Текстильный дизайн, компания Artique
Ткани Kravet Couture, Equipo DRT, Osborne&Little, Clarke & Clarke
Зеркала, на заказ, компания Ava zerkala
Аксессуары, поставщик Zara Home
Сантехника ванна Victoria + Albert, смесители Nicolazzi, душевая перегородка Radaway
Мебель
Гостиная диван, кресло, пуф MDeHouse, тумба Dantone Home; витрина, на заказ, Prestige de France
Столовая стол, стулья Cosmorelax
Кухня кухонная мебель – изготовление «Альфа Кухни»; стулья Cosmorelax
Спальня кровать Dantone Home, тумбочка Lulu Space
Мебель для ванных комнат, на заказ – изготовление «ТД Зеромакс »
Встроенная мебель на заказ – изготовление «Альфа Кухни»
Оборудование
Радиаторы Arbonia
Квартира в стиле софт-минимализм
Историческая квартира с современным искусством О профессии «ландшафтный архитектор», образовании и специфике частных и общественных ландшафтных проектов говорим с Иваном Бугаевым…





















Созидание как эволюция: офис бюро «Крупный план»
Равновесие, цельность и гармония как результат работы архитектора…
Ландшафтный архитектор. Инженер. Проектировщик. Логик.
«Мода в интерьере — это зеркало нашего быта»...
Храм в городе 
11
22
33
44
55
66
77
88
99
1010 
«Ценно, что заказчики полностью нам доверились в выборе материалов и мебели. В процессе строительства мы следовали четко разработанному проекту и визуализации, все детали согласовывали в рабочем режиме. Проект был готов и согласован за пару месяцев, 9 месяцев занял ремонт с авторским надзором. За все время с заказчиками мы виделись лишь несколько раз, общение было конструктивное, обсуждения преимущественно велись по переписке».