Дизайнеру Елена Маркиной достался уникальный проект. Квартира площадью 160 кв. м расположена доходном доме в Хамовниках, построенном в 1912 году архитектором Дмитрием Челищевым. До революции квартирой полностью владела семья заказчика, после советская власть оставила ей всего две комнаты, отдав остальные помещения на подселение. В наше время наследники постепенно выкупили комнату за комнатой, став полноправными владельцами квартиры.
Заказчики – замечательная семейная пара с двумя дочерями, которые обе серьезно занимаются музыкой – хотели сохранить исторический шарм квартиры, но без пышности и тяжелой классики. Дизайнер предложила облегченный вариант с отсылкой к современным французским интерьерам, где строгая классическая основа легко и непринужденно соединяется с винтажными предметами, современной мебелью и декором. Из обязательных пожеланий было размещение двух музыкальных инструментов (рояль и пианино) и создания комфортной среды для музицирования. Получился светлый, элегантный, наполненный индивидуальными решениями интерьер – оптимальный для проживания творческой семьи с классическим образованием.
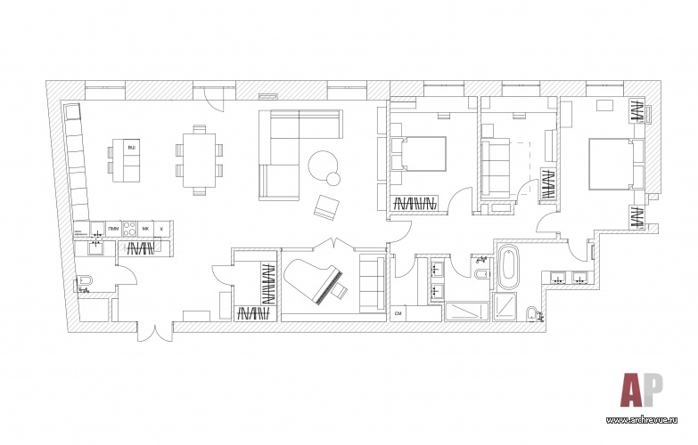
«Планировка для меня – это основа идеального интерьера. Поэтому, впервые попав на объект, я была сильно озадачена, как сделать из бывшей коммуналки с длинным коридором и скучной нарезкой комнат современное семейное жилье. А главное, чтобы эту перепланировку можно было согласовать», - рассказывает автор проекта.
В итоге вытянутое пространство дизайнер разделила на два самостоятельных объема: общественную и приватную зоны. В общественной разместилась просторная прихожая с гардеробной для верхней одежды и обуви и дополнительными шкафами, гостевой санузел, и общая гостиная – замечательное пространство с двумя окнами и выходом на балкон. Здесь находится кухня с островом, столовая и зона отдыха с камином, к которой примыкает библиотека с роялем. Она отделяется от гостиной стеклянной перегородкой с распашными дверями. «Поскольку дочери заказчиков профессионально занимаются музыкой (одна из них является лауреатом международных конкурсов и выступает в лучших концертных залах Москвы), очень важно было разместить музыкальные инструменты: пианино и, особенно, рояль. Хотелось, чтобы, с одной стороны, он стал украшением квартиры, а с другой – чтобы его можно было изолировать во время регулярных музыкальных занятий, чтобы не мешать другим домочадцам. Поэтому в библиотеке мы сделали хорошую звукоизоляцию, установили перегородку со стеклопакетами и выпадающим порогом. Двойные шторы из бархата с дистанционным управлением и ковер дополнительно поглощают звук», - отмечает дизайнер.
Более компактное по габаритам пианино находится в приватной части квартиры, в спальне одной из дочерей. Всего в приватном блоке получилось три спальни и два санузла. Такую планировку дизайнер считает идеальной для этой семьи, для ее реализации потребовалась большая работа и долгие консультации с органами согласования.
При оформлении интерьера дизайнеру хотелось сохранить атмосферу места, подчеркнуть историю. Так, из оригинальной лепнины сохранились три потолочных розетки (одну обнаружили под подвесным потолком из гипсокартона).
Их дизайнер бережно отреставрировала, перенесла в главные зоны квартиры и поддержала декором (например, изображенные на одной из них симарглы – мифические полубожественные существа – рифмуются с фигурками из бронзы). Карнизы были разработаны по индивидуальному эскизу по историческим рисункам.
Все двери изготовлены индивидуально в столярной мастерской, а фурнитура, в том числе и для окон привезена из Италии. Деревянные окна также сделаны в России, их особенность – нестандартный профиль штапика, чтобы рамы выглядели изящнее, и индивидуальная колеровка.
Общая цветовая гамма – это светлые стены и насыщенные цветовые акценты, в ряде помещений (например, в двух санузлах) дизайнер добавила еще больше цвета, сделав цветными потолки. В оформлении использованы только натуральные материалы: мрамор, гранит, обои с ручной росписью, гипс, дерево. Значительная часть мебели изготовлена на заказ с использованием экзотических пород (например, шкаф в прихожей с раскладкой из шпона эвкалипта). Светильники преимущественно винтажные, с шармом ушедшей эпохи. Последний штрих – картины и скульптура, они наполняют пространство эмоциями.
Комплектация объекта
Строительные и отделочные материалы и изделия
Финишная отделка стен, краска Diamond Vogel (серия Avalon Ultra Premium), поставщик «Студия Обоев №1»
Обои с росписью Fresq
Паркет, поставщик Design Studio Parquet
Гранит Black River
Керамогранит Iris FMG, Ceramica Vogue, Refin, Brix, Casa Dolce Casa (коллекция Onyx&More), Rex, Emilceramica, Provenza
Столешницы Stone&Home, поставщик Mercurystone
Мебельные ручки, поставщики Dec-or, Maru studio
Свет Flos, Mazzega 1946, Venini, Kalmar; винтаж
Текстильный дизайн, «Студия Аллы Зайцевой»
Ковры, поставщик Art de Vivre
Декор, поставщик Woon Stores
Сантехника Gessi, Jorger, Victoria + Albert, Ceramica Cielo, Margaroli, Graff, Duravit, Villeroy & Boch, Omoikiri, Blanco
Мебель
Прихожая Rooma Design & Furniture
Гостиная диван Poliform, кресло Poltrona Frau, столики Baxter, DiTre Italia, Normann Copenhagen, комоды, диван Rooma Design & Furniture
Столовая обеденный стол, стулья Cattelan Italia
Спальня кровать, тумбы Rooma Design & Furniture, пуф Modenature
Детские Rooma Design & Furniture, Manifesto
Оборудование
Радиаторы Arbonia
Электроустановочные изделия Legrand
Оборудование кухни, встроенная техника Kuppersbusch
Квартира в осенних тонах
Семейный лофт с террасой на крыше О профессии «ландшафтный архитектор», образовании и специфике частных и общественных ландшафтных проектов говорим с Иваном Бугаевым…





































Созидание как эволюция: офис бюро «Крупный план»
Равновесие, цельность и гармония как результат работы архитектора…
Ландшафтный архитектор. Инженер. Проектировщик. Логик.
«Мода в интерьере — это зеркало нашего быта»...
Храм в городе 
11
22
33
44
55
66
77
88
99
1010 
«Работа над проектом велась один год и десять месяцев. Сделав планировочное решение, нам было очень важно до начала работ согласовать перепланировку официально, поэтому на этом этапе реализация была на какое-то время приостановлена, мы ждали подтверждения из соответствующих органов. И только после его получения начались ремонтные работы».