Архитекторы Валерия Исакова и Мария Куркова (архитектурная студия «ТУДА») реконструировали загородный дом из конца 1990-х годов, превратив вычурный коттедж из красного кирпича с морально устаревшим ремонтом в по-европейски элегантный особняк: с благородным дизайном, отсылками к классическим традициям и шармом итальянских интерьеров с историей.
Двухэтажный дом с мансардой заказчица приобрела в самом начале пандемии с целью перевезти пожилых родителей из квартиры в центре за город. Ее отец, хозяин дома – выдающийся ученый-физик – приверженец классического стиля, сама хозяйка – адепт современного дизайна. Перед архитекторами стояла задача создать проект в духе традиционных европейских домов, где современность и история тесно переплетены. А главное – адаптировать коттедж из лихих 90-х с бронированной комнатой, сценой, джакузи, бассейном в подвале, арками разных размеров, гипсовой лепниной с невообразимыми ордерами и прочими атрибутами «элитности» под современные реалии.
Для этого они провели масштабную реконструкцию, которая затронула фасады, ландшафт, планировку, инженерию и внутреннее наполнение. Они также полностью заменили кровлю, добавили пристройки и навесы, переделали входную группу, заменили все фасадные элементы – то есть фактически полностью перестроили дом. И сделали это менее, чем за два года с перерывами на локдаун. «Мы много лет знакомы с заказчицей, построили дом для ее сына с семьей, сделали несколько интерьерных проектов.
Работа была выстроена на доверии, поэтому проект мы подготовили очень оперативно: за 2 месяца сделали архитектурный проект и запустили стройку, параллельно с ведением работ по реконструкции подготовили проект интерьеров (за 4 месяца). Основные сложности были связаны с непростым «исходником», но благодаря слаженной работе всей команды и доверии заказчика нам удалось дать дому вторую жизнь», - рассказывают авторы проекта.
«Найти достоинства у исходника гораздо сложнее, чем описать недостатки, - рассказывают авторы проекта. - Главное, от чего хотелось избавится – это от тотальной безвкусицы, которая отразилась в том числе во внутренней планировке, исправить пропорции и общее восприятие пространства».
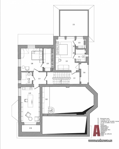
Из плюсов нужно отметить: несмотря на то, что дом имеет 4 этажа, он построен с разбежкой по уровням в половину этажа и в итоге смотрится как двухэтажный дом с мансардой и хорошими высотами. Кроме того, довольно логичное расположение несущих стен позволило сделать масштабную перепланировку, увеличить арочные окна и проемы, сделать большую гостиную. В итоге архитекторы «пересобрали» пространство так, что атмосфера в доме полностью поменялась: добавили света, отказались от ненужного, наполнили каждое помещение смыслом, функцией и комфортом.
Так, в цокольном этаже они разместили зону отдыха с сауной и бильярдной, а также технические помещения (постирочную, помещение водоподготовки, кладовую, холодильную и морозильную камеры). На первом этаже расшили прихожую, организовали гардеробную. В высокой гостиной надстроили антресоль-библиотеку, в столовой наоборот убрали верхнее перекрытие.
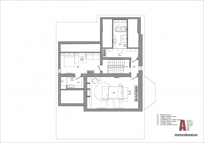
Второй этаж отдали под гостевые спальни, третий полностью заняли апартаменты хозяина дома – отца заказчицы. Они включают спальню, рабочий кабинет, гардеробную и санузел. Четвертый и пятый мансардные этажи превратили в спальню заказчицы с гардеробом и санузлом и еще одну гостевую, также со своими вспомогательными помещениями.
На образ интерьера во многом повлияла арочная форма окон и многочисленных проемов, которыми обладал исходный объем. Правда, окна архитекторы максимально увеличили, сделав панорамными, а проемы выстроили по осям и раскрыли, подчеркнув глубину пространства и интересные перспективы.
Эти арки отсылают к средиземноморской эстетике и вместе с другими дизайнерскими элементами – каменными полами, брашированным деревом, травертином, декоративными штукатурками с тактильным эффектом – создают образ классического итальянского особняка на море. Благородство интерьеру придает цветовая палитра с природной тональностью: нейтральная, с приглушенными мягкими серыми и бежевыми оттенками, которые подчеркивает натуральное дерево, черненый металл, темная фурнитура мебели.
Широкие заливки исполнены в более светлых тонах, мелкие детали (например, плинтус) декорированы более темными и пыльными цветами. Спальни получились чуть более теплыми и легкими, чем парадные помещения, с преобладанием ненавязчивых и элегантных оттенков кофейной пенки или молочной дымки. Строгие классические оттенки, например, цвет английского известняка (Portland spone), присутствует лишь в спальне отца, приверженце классики.
«Материалы в проект мы подбирали с заделом на «красивое старение». Максимум натуральности и естественности, тактильно приятные природные текстуры – все за тем, чтобы, будучи неотъемлемой частью интерьера, они год от года становились красивее и наполняли пространство живой историей», - отмечают авторы проекта. Значительную часть мебели архитекторы изготовили на заказ, ее задача – подчеркнуть историческую эстетику, усилить ощущение домашнего тепла и уюта. От прежней жизни в доме осталась лишь центральная лестница, но изменилась до неузнаваемости. «Украшенная резными львами и непропорциональными балясинами, казалось, она была первым кандидатом на демонтаж. Но, избавившись от всех этих вычурных элементов, мы увидели очарование старых дубовых ступеней и классических косоуров. Лестницу мы сберегли, сохранили все потертости и живописные шероховатости, обновив лишь защитное финишное покрытие. С новым ограждением она осовременилась и стала смысловым и стилистическим ядром дома, и точно «попала» в его характер и новую эстетику», - рассказывают авторы проекта.
Комплектация объекта
Строительные и отделочные материалы и изделия
Изделия из дерева, компания «Ателье мебели Ostinec »
Двери, раздвижные перегородки, поставщик Belorawood
Винтовая лестница, ограждения и поручни дубовой лестницы, компания Metal Made
Финишная отделка стен декоративные штукатурки Oikos, краска Little Greene
Лепной декор из полиуретана Orac Decor
Паркетная доска, дуб, поставщик Finex
Керамогранит, поставщики ItalON и Arch-Skin; плитка Wow (коллекции Puzzle и Gea), Porcelanosa, 41zero42 (коллекция Solo), Equipe Ceramicas (коллекция Magma Malachite)
Широкоформатный термопланкен, поставщик Twood
Камины, компания «Мой камин »; топка камина, отделка огнеупорные стальными панелями, компания «Астов»
Свет декоративный Visual Comfort & Co, Stephane Davidts, GTV Lighting, Atelier Areti, Nemo, Axo Light, DiTre Italia, MOOOI, Ferm Living, Midj
Технический свет, поставщик Centrsvet
Сантехника ванна Kaldewei; раковины Tiffany World и Gruppo Sanitari Italia, смесители Fima Carlo Frattini, Emmevi, Burlington, Bossini; термостаты Gattoni; аксессуары Decor Walther, Keuco, Devon & Devon, Treesseci
Постельное белье, поставщик Atelier Tati
Искусство, Reloft art
Мебель
Прихожая консоль AM Classic: шкафы, на заказ – изготовление «Мастерская KSM »
Гостиная диван Saba Italia, кресло Giorgetti, столики DiTre Italia, кресла у окна Tecni Nova, библиотека, на заказ – изготовление «Мастерская KSM »
Столовая стол Arte Brotto, диван TreCi Salotti
Кухня островок обеденный стол и буфет, на заказ – изготовление «Ателье мебели Ostinec »
Гостевая спальня изголовье кровати La Redoute, стол Dantone Home, стул VicalHome
Спальня отца изголовье кровати VicalHome, тумбы и комод Dantone Home, кресло Tecni Nova
Кабинет отца стол Morelato, рабочее кресло Poltrona Frau, кресла у окна и кофейный столик DiTre Italia; стеллажи, на заказ – изготовление «Мастерская KSM »
Главная спальня кровать Twils, диван Saba Italia, кресло Giorgetti
Бильярдная бильярдный стол – изготовление «Старт»; бар, на заказ – изготовление «Мастерская KSM »
Оборудование
Конвекторы Itermic, радиаторы Arbonia
Электроустановочные изделия Jung, коллекция LS 990
Сауна, компания «ИТС сауна »
Оборудование кухни техника Miele, вытяжка Smeg
Эпатажная квартира московских дизайнеров
Монохромная квартира для заказчиков из мира fashion О профессии «ландшафтный архитектор», образовании и специфике частных и общественных ландшафтных проектов говорим с Иваном Бугаевым…













































Ландшафтный архитектор. Инженер. Проектировщик. Логик.
«Мода в интерьере — это зеркало нашего быта»...
Храм в городе
Три кита современного стиля
Проект: Аэропорт «Кавказ» 
11
22
33
44
55
66
77
88
99
1010 