Дизайнер Анна Кларк любит работать с квартирами в исторических зданиях: высокие потолки, необычные окна, классическая архитектура, анфиладная планировка и удивительная аура, присущая дореволюционным домам, позволяют создать эклектичные интерьеры не стыке настоящего и прошлого. Элегантные, благородные, выдержанные. Поэтому, когда поступило предложение оформить квартиру в Доме московского купеческого общества (знаменитом Соляном доме) 1915 года постройки с видом на Славянскую площадь, церковь Всех Святых на Кулишках и Кремлевские звезды, она подключилась с огромным энтузиазмом.
Заказчики – творческая пара, супруг играет на рояле и за диджейским пультом, супруга – профессионально занимается вокалом и выступает на сцене. Это был их первый ремонт, и к процессу они подошли очень серьезно. На Анну Кларк вышли через социальные сети, провели тщательный кастинг, включающий тендер на концепцию и перепланировку, и рекомендации от предыдущих заказчиков. Предложенный дизайнером проект покорил их элегантной простотой, функциональностью и стилистическим соответствием старинной архитектуре дома без лишнего пафоса и чрезмерной декоративности.
«Когда я впервые зашла на проект, то увидела огромные открытые пространства с потолками высотой 3,6 метра и 12 большими окнами. В квартире уже были снесены межкомнатные перегородки, со внешних стен отбита штукатурка, на полу были остатки метлахской плитки, а прямо посередине стояла старая ванна на ножках. В квартире давно никто, кроме голубей, не жил, и она была не в самом лучшем состоянии – потолок протекал, инженерные системы изношены, деревянные окна требовали замены», - рассказывает автор проекта.
Поэтому работа началась с реконструкции и всевозможных согласований: дом имеет статус «объекта культурного наследия регионального значения». Казалось бы, при таких исходных данных ремонт имел шанс затянуться на годы, но процесс шел стремительно: две месяца заняли чертежи и визуализация, еще два – согласования перепланировки, месяц демонтаж и стандартных девять месяцев ремонтные работы. В итоге через год заказчики уже принимали гостей в новой квартире.
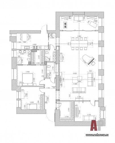
Заказчики хотели, чтобы квартира была разделена на два блока: парадную часть с большим салоном на манер XIX века, где можно принимать гостей, музицировать и устраивать вечера, и изолированные приватные помещения. Пространство площадью 220 кв. м изначально разделяла единственная несущая стена, от нее дизайнер и предложила отталкиваться и выделила два самостоятельных крыла.
Справа от входа она разместила открытое помещение гостиной, столовой и кабинета, окна общей зоны выходят на парадную, историческую Москву. Раздвижная перегородка из бронзового стекла при необходимости отделяет рабочую зону, изолирует пространство.
В левом крыле с видом на тихий двор находятся приватные помещения: две спальни (хозяйская и гостевая), три санузла (один из них с окном), гардеробная, постирочная и кухня.
Перепланировку удалось выполнить в пределах существующих мокрых зон, без нарушений требований БТИ. Довольно долгое время заняло техническое планирование и оснащение квартиры - вентиляция, кондиционирование, водные коммуникации.
Стилистически интерьер тяготеет к сдержанной европейской эклектике, он отчасти напоминает богемные апартаменты Франции и Италии, где современная мебель и декоративные приемы соседствуют с традиционным дизайном и предметами с историей. «Сначала от заказчицы был получен референс на стилистику пуризма в духе интерьеров Кристиана Лиэгре, но после того, как я сделала первые коллажи, стало понятно, что нужно добавить больше тепла и уюта, иначе квартира будет похожа на шоу-рум с красивой мебелью», - отмечает дизайнер.
Так в интерьере появились лепные карнизы в эстетике ар-декор, высокие двери со строгими филенками, итальянский паркет «французская елка» с мебельной выделкой древесины, бронзовое стекло, подоконники из камня, мебель в стиле mid century. Колористика интерьера приглушенная, очень благородная. Стены гостиной выкрашены в светлый оливкой оттенок, кабинета – в сложный серо-синий, остальные помещения имеют дымчатый флер, который выгодно подчеркивает строгую графику мебели, светильников, аксессуаров и искусства.
Заказчица изначально хотела мебель фабричного производства, поэтому в местных столярных мастерских были изготовлены только встроенные шкафы. Вся мебель и светильники доставлены из Европы. «Мне как дизайнеру было важно не потерять связь интерьера с экстерьером», - отмечает автор проекта. Поэтому получился комфортный для жизни минималистский по духу интерьер с историческими деталями, которые еще сильнее подчеркивают красоту пространства.
Комплектация объекта
Строительные и отделочные материалы и изделия
Двери межкомнатные, перегородка из бронзового стекла, поставщик Mr.Doors
Финишная отделка стен, краска Farrow & Ball
Лепной декор из гипса, поставщик «Петергоф»
Паркет «французская елка», поставщик Garbelotto
Паркет дубовый, поставщик «Хороший пол»
Плитка Settecento (коллекция Crayons), Diesel, мозаика Petra Antiqua, поставщик Lucido
Свет декоративный Italamp, Kundalini, Chelsom, Heathfield & Co, Brokis, Modo Luce, BoConcept
Свет технический Wever & Ducré, Aledo, Modular, поставщик «Гармония Света»
Римские шторы, портьеры, компания A-Decor
Подушки, поставщики Loffilab и Enere
Ковры, поставщики Design Carpets и BoConcept
Постельное белье, поставщик Amalia Home Collection
Искусство, RedGallery
Декор, поставщики Global Views, Any Home, Eichholtz
Сантехника Simas, Villeroy & Boch, поставщик «Макслевел»
Мебель
Гостиная диваны DiTre Italia, кресла Eichholtz; журнальный столик, поставщик Repeat story
Столовая обеденный стол Molteni&C, стулья Horm
Кабинет диван Milano Bedding, столик Eichholtz, стеллаж Bjorkkvist; стулья, поставщик Repeat story
Кухня кухонная мебель Hacker Kitchen, стол и стулья Calligaris
Спальня кровать Pianca, пуф Loffilab, столик Ligne Roset
Гостевая спальня диван Dienne, журнальные столики Ligne Roset
Мебель для ванных комнат и зеркала Arbi, поставщик «Макслевел»
Оборудование
Электроустановочные изделия Buster + Punch
Семейный лофт на Яузе
Эргономичная семейная квартира в современном стиле Великое наследие и возрождение Храмового зодчества в России – поговорим об этом с архитектором Дмитрием Пшеничниковым, основателем архитектурного бюро «Дмитрий Пшеничников и Партнеры»























Равновесие, цельность и гармония как результат работы архитектора…
Ландшафтный архитектор. Инженер. Проектировщик. Логик.
«Мода в интерьере — это зеркало нашего быта»...
Храм в городе
Три кита современного стиля 
11
22
33
44
55
66
77
88
99
1010 