Для российской семьи из пяти человек архитекторы бюро LAD оформили современную виллу на побережье Средиземного моря, в небольшом испанском городе Льорет-де-Маре. Благодаря тому, что они подключились на раннем этапе строительства здания, удалось типовой архитектурный проект удалось адаптировать под нужды и привычный стиль жизни большой семьи.
Поскольку требования к высотности на побережье Испании позволяют строить объекты не выше одного этажа, для размещения функционала пришлось углубиться в скалу на два дополнительных уровня. В итоге получился минималистский трехэтажный объем с протяженными каскадными террасами и переливным двухуровневым бассейном. Строительством и отделкой дома занималась испанская строительная компания, но российские архитекторы тщательно контролировали процесс. Одним из их предложений также было оформление фасада в тех же материалах и цветовой гамме, что и интерьеров, для создания цельного архитектурного образа.
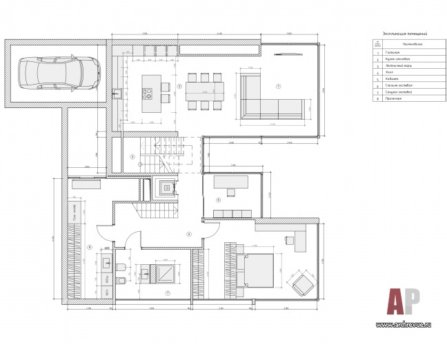
Планировочное решение виллы площадью 440 кв. м подчинено идее функционального использования пространства для жизни большой семьи, при этом продумано таким образом, чтобы сохранить ощущение свободы и перспективы. Парадные помещения (гостиная, кухня, столовая) занимают второй этаж с панорамным остеклением и выходом на открытые террасы, каскадом спускающиеся к морю.
К общей зоне примыкает кабинет, изолированный прозрачными стеклянными перегородками, которые во всем доме используются вместо глухих стен. Полупрозрачный объем растворяется в пространстве и сливается с природным пейзажем. На верхнем уровне расположены спальни хозяев с панорамным видом на море, на нижнем – гостевые апартаменты, технические помещения и гараж. Хозяйские спальни ориентированы на ландшафт и имеют выход на террасы к бассейну. При каждой организован собственный санузел. Три уровня связывает между собой лестница со сквозной, «парящей» конструкцией, которая не перекрывает видовые перспективы моря.
Главную роль в интерьере, конечно, играет море. Пространство оформлено и укомплектовано так, чтобы ничто не отвлекало внимание от роскошных природных видов, но при этом было функциональным и предельно эргономичным. Курортный интерьер – особый жанр в дизайне, и этот проект в полной мере демонстрирует его особенности.
Интерьер оформлен в духе сбалансированного минимализма. Ставка сделана на нейтральную, почти монохромную палитру и разнообразие материалов: камня, дерева, стекла, гладкой и текстурной штукатурки, легкого, «летящего», текстиля. Именно богатые природные фактуры при отсутствии активного декора позволяют расставить верные акценты, сформировать запоминающийся интерьер для летнего отдыха.
Комплектация объекта
Строительные и отделочные материалы и изделия
Двери и перегородки Rimadesio
Натуральный камень, раковина и подстолье, мрамор Salvatori; травертин; широкоформатный керамогранит
Свет декоративный Flos, Ligne Roset, Paolo Castelli, Vistosi, Slamp
Свет технический, встроенный и профильный Centrsvet
Элекропианино Roland
Сантехника тропический душ Zucchetti; раковина и столешница из камня Stone Forest; раковины, унитазы, биде, ванны Antonio Lupi и Laufen, смесители Hansgrohe
Мебель
Гостиная диван Frigerio, приставной столик Poliform
Столовая обеденный стол и стулья Porada, Molteni&C
Кухня Aster Cucine
Кабинет письменный стол, стул, кресло и стеллажи Cassina
Спальня хозяина кровать Gamma Arredamenti, кресло Donghia, стулья Poliform
Мастер-спальня кровать, кресло, пуф B&B Italia, столики Pottery Barn, стул Poliform
Детская спальня кровать и стул Minotti
Гостевые спальни кровать и кресло Molteni&C, кровать Twils
Оборудование
Оборудование кухни, бытовая техника Fulgor Milano
Тактильная квартира для семьи с детьми
Монохромная квартира для молодой пары О профессии «ландшафтный архитектор», образовании и специфике частных и общественных ландшафтных проектов говорим с Иваном Бугаевым…








































Ландшафтный архитектор. Инженер. Проектировщик. Логик.
«Мода в интерьере — это зеркало нашего быта»...
Храм в городе
Три кита современного стиля
Проект: Аэропорт «Кавказ» 
11
22
33
44
55
66
77
88
99
1010 