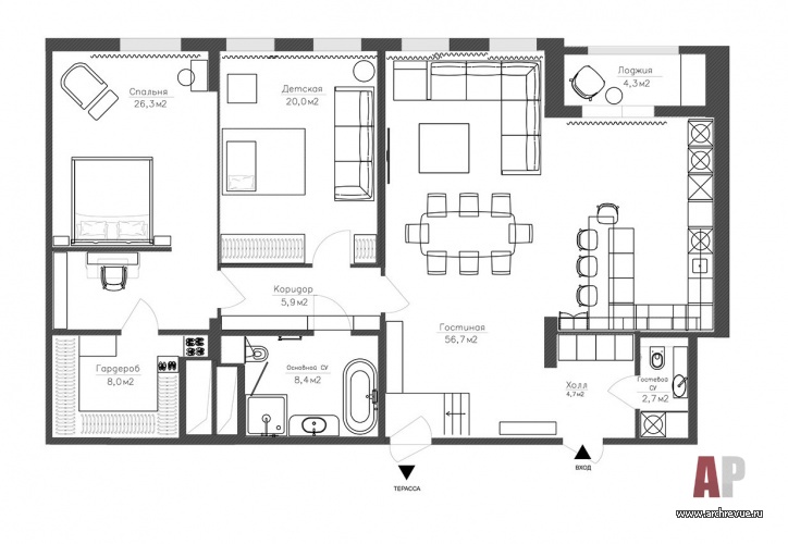
Дизайнеру Анне Шевченко досталась неординарная квартира. Она расположена в новом доме на набережной Москвы-реки, особенность дома в том, что он построен с сохранением исторического фасада. С одной стороны, новое здание полностью вписывается в привычную застройку района, а с другой – обеспечивает комфорт сегодняшнего дня. Квартира площадью 120 кв. м. расположена на одном из последних этажей.
В процессе работы над проектом удалось присоединить часть эксплуатируемой кровли, таким образом появилась роскошная открытая терраса (35кв. м) и небольшая внутренняя лестница – нечастые элементы современных московских квартир. У заказчиков ответственная работа, связанная с большим количеством людей и информации, поэтому они мечтали о нейтральном интерьере, где могли бы восстанавливаться после насыщенных будней. Чтобы создать атмосферу тишины и равновесия, дизайнер использовала материалы природных оттенков, а также изделия из дерева и натурального камня с деликатной фактурой.
Изначальная планировка квартиры была довольно удачной: пространство прямоугольной формы с хорошей инсоляцией естественным образом делилось на дневную и ночную зоны. Но небольшие изменения все же были внесены: чтобы увеличить общую гостевую зону, дизайнер присоединила к ней холл, а лестницу, которая «съедала» много места, перенесла ближе к выходу на террасу и сделала более компактной.
Также было решено отказаться от предложенного застройщиком третьего санузла и кладовой в пользу большой гардеробной. Из-за объединения гостиной немного изменился маршрут движения на кухню, теперь попасть в нее можно из гостиной, а не из прихожей. В итоге исходный план стал более логичным и удобным для проживания конкретной семьи.
Квартира расположена в доме у реки, все окна выходят на гранитную набережную, где мало зелени и ярких красок. Чтобы разбавить холодный монохром за окном, дизайнер создала теплый монохром внутри. Стены и пол во всех помещениях она оформила в сближенной цветовой гамме, отчего пространство воспринимается как единое целое и дает ощущение теплой гармонии.
Заказчики достаточно требовательные к уровню комфорта – визуальному и тактильному. Они не хотели никаких активных фактур, и дизайнер тщательно подбирала деликатные текстуры: работала с деревом, керамикой, стеклом. Предметы выбирала крупные, выразительные, геометричные, чтобы они не дробили интерьер. «Нам изначально было понятно, что в пространстве не будет ничего лишнего и оно останется полным воздуха. Поэтому единственным декоративным акцентом в этом нейтральном интерьере стало современное искусство из коллекции заказчика», - отмечает автор проекта.
Комплектация объекта
Строительные и отделочные материалы и изделия
Декоративная отделка стен, краска Farrow & Ball (оттенок Tallow)
Пол, инженерная доска, поставщик Coswick
Мрамор Palissandro
Керамогранит, поставщик Italon
Свет, поставщики Visual Comfort Gallery, L’Appartement и Centrsvet
Керамика DirtyHands
Аксессуары вазы Menu, блюдо 101 Copenhagen, разделочные доски Denis Milovanov, стаканы HKliving, поставщик L’Appartement; столики и кувшин, поставщик Zara Home
Текстиль, поставщик Tish Home; шторы, поставщик Artique
Сантехника ванна Riho, унитазы Laufen, раковина Sanita Luxe, смесители Grohe
Мебель
Гостиная шкафы Mr.Doors, библиотека Bjorkkvist, диван Natuzzi, столик La Redoute; кресло 366 Concept, поставщик L’Appartement
Столовая обеденный стол и стулья Team 7
Кухня, на заказ, барные стулья Team 7
Спальня кровать Team 7, кресло Natuzzi
Детская пуф Muuto, поставщик L’Appartement
Садовая мебель, поставщик «Твой Дом»
Оборудование
Электроустановочные изделия Jung
Оборудование кухни, встроенная бытовая техника Neff
Фотограф: Андрей Орехов
Квартира с брутальным декором в Санкт-Петербурге
Современная квартира с винтажными предметами О профессии «ландшафтный архитектор», образовании и специфике частных и общественных ландшафтных проектов говорим с Иваном Бугаевым…
























Ландшафтный архитектор. Инженер. Проектировщик. Логик.
«Мода в интерьере — это зеркало нашего быта»...
Храм в городе
Три кита современного стиля
Проект: Аэропорт «Кавказ» 
11
22
33
44
55
66
77
88
99
1010 