Для семьи из четырех человек архитекторы студии Chado в Ростовской области построили двухэтажный дом с монументальной архитектурой и прозрачными светлыми интерьерами. Особенность проекта – панорамное остекление, которое объединяет экстерьер и внутренне пространство и делает объем проницаемым. Конструктивно дом состоит из двух приземистых объемов из железобетона, облицованных светлым камнем и контрастным кирпичом.
Прямо по центру обращенного во внутренний двор фасада проходит массивная труба двустороннего камина в отделке красным колотым камнем, она подчеркивает симметрию здания. Панорамные витражи открывают выход на террасу с переливным бассейном под отрытым воздухом, а также в сад, где расположена беседка-барбекю, каменный грот и пруд с живыми рыбами.
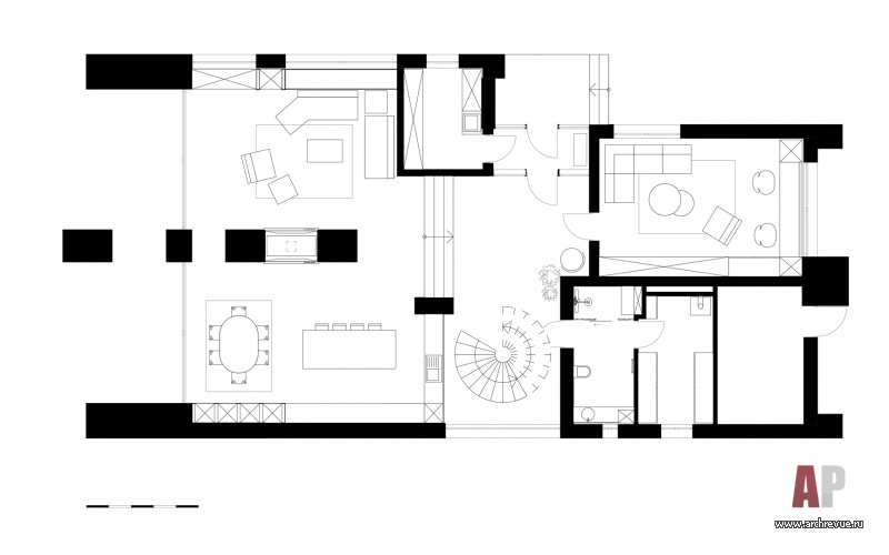
Двухэтажный дом площадью 400 кв. м имеет рациональную планировку. Первый этаж занимают общественные помещения: просторная гостиная и кухня-столовая, разделенные двухсторонним камином, кабинет и гостевой санузел. На втором этаже спроектированы четыре спальни, гардеробные и санузлы.
Уровни связывает эффектная спиральная лестница, отлитая из бетона. Она расположена по центру объема, вокруг нее группируются жилые пространства.
В интерьере отчетливо просматривается структура здания, архитекторы не стали маскировать ее декором, а, напротив, вывели на первый план. За счет сквозной планировки и лаконичной отделки дом выглядит светлым, воздушным, почти прозрачным. Во внутреннем оформлении активно используются отделочные материалы фасада – бетон и брутальный колотый камень насыщенного красного цвета.
Пространство масштабирует щитовой паркет из дуба натурального цвета под маслом и крупные геометричные светильники. Уютную атмосферу в открытых помещениях создают теплый оттенок шпона мебели и балки из белого дерева.
Комплектация объекта
Строительные и отделочные материалы и изделия
Кирпич, черепица, брусчатка, поставщик «Брикфорд »
Окна и витражи Schuco, поставщик «Скайлайн»
Двери межкомнатные, поставщик «Софья»
Изделия из металла, кованое ограждение лестницы, компания «Металл Декор»
Изделия из натурального камня (подоконники, столешницы, столики), поставщик SLC
Штукатурка, Derufa
Паркетная доска, поставщик Siberian Forest
Керамогранит Mirage, Porcelanosa, Colorker, Grespania, поставщик «Бомонд»
Ручки для кухни и шкафов Buster + Punch, поставщик D&D
Свет Italamp, Visual Comfort & Co, Eichholtz
Сантехника Noken, Laufen, Kaldewei, ArtCeram, инсталляции Tece, полотенцесушить «Сунержа», поставщик «Бомонд»
Ковры, поставщик «Обоинн и Шторц»
Аксессуары, декор, поставщик AP Luxury Brands
Мебель
Гостиная диван Flexform, кресла Poliform, Sevensedie, банкетка Meridiani, столы Eichholtz
Столовая обеденный стол, на заказ; стулья Cattelan Italia
Кухня на заказ; барные стулья Cattelan Italia
Кабинет диван Desiree, кресло Sevensedie
Холл второго этажа консоль LCI Stile, столики Eichholtz
Уличная мебель Varaschin
Поставка мебели – D&D
Оборудование
Электроустановочные изделия ABB
Оборудование кухни встроенная техника Gaggenau
Система вентиляции и кондиционирования, оборудование бассейна, компания Vimhome
Фотограф: Михаил Чекалов
Светский интерьер для приемов и праздников
Семейная квартира с мягким дизайном О профессии «ландшафтный архитектор», образовании и специфике частных и общественных ландшафтных проектов говорим с Иваном Бугаевым…































Созидание как эволюция: офис бюро «Крупный план»
Равновесие, цельность и гармония как результат работы архитектора…
Ландшафтный архитектор. Инженер. Проектировщик. Логик.
«Мода в интерьере — это зеркало нашего быта»...
Храм в городе 
11
22
33
44
55
66
77
88
99
1010 