Спроектированный архитектором Юлией Скачковой дом находится в Ленинградской области, в коттеджном поселке «Репино Парк».
Запрос был на по-европейски лаконичный загородный дом для растущей семьи, с продуманным разделением на общие и приватные зоны и возможностью быстрой трансформации пространства. Главная идея проекта –внешне сдержанный, не бросающийся в глаза коттедж, очарование которого в максимальном комфорте проживания и тесной связи экстерьера с ландшафтом.
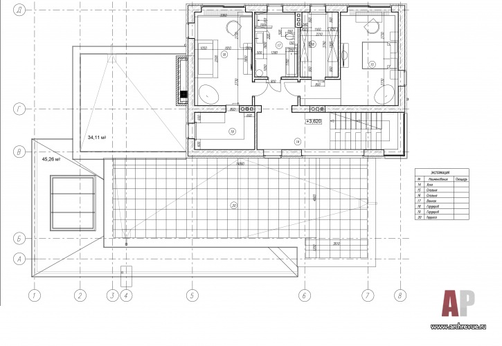
«Изначально хотелось одноэтажный дом, чтобы вся жизнь протекала на одном уровне, с непосредственным выходом на улицу. Но из-за ограниченной площади участка и необходимости создать функциональное компактное пространство, было решено все же построить второй этаж, куда вынести детские и тренажерный зал», - рассказывает автор проекта.
Архитектура дома такова, что с некоторых ракурсов постройка выглядит одноэтажной: терраса второго этажа и жилые зоны утоплены в глубину, благодаря чему общий объем выглядит легким. Яркая архитектурная деталь – консольные свесы кровли над террасой.
Функциональную архитектуру с разбивкой на лаконичные объемы поддерживает ритмичная отделка фасадов фоновой серой штукатуркой, черным кирпичом и листами из кортеновской стали. «Хотелось добавить яркости, живости, и коричнево-рыжий оттенок стали служит как раз таким акцентом. Вообще у нас получился дом в оттенках окружающей природы: штукатурка цвета питерского неба, темный, «земляной» кирпич и рыжий кортен, перекликающийся с цветом стволов высоченных сосен, растущих на участке», - комментирует архитектор.
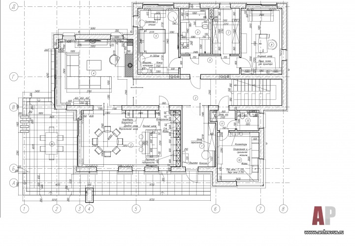
Дом площадью 430 кв. м имеет универсальную планировку и подходит для проживания трех-четырех человек, пары с двумя детьми.
Все основные помещения – общие дневные пространства и мастер-блок расположены на первом этаже. Второй этаж занимают две спальни, одна из них детская, другая – гостевая, которая может легко трансформироваться в еще одну детскую.
Планировка дома подчинена сторонам света. Так, окна гостиной-столовой-кухни, решенных как единое пространство со сквозным проходом, обращены на утреннее, дневное и вечернее солнце. Тогда как спальня и кабинет выходят на север, где нет прямых солнечных лучей.
Кухня и столовая – полностью единое пространство, зонированное стеклянными перегородками. В гостиной стеклянные перегородки несут скорее эстетическую функцию, но также немного изолируют звук.
Концепция интерьера – продолжение декоративной линии, заданной функциональной архитектурой и отделкой фасадов.
Как и снаружи, внутри основной объем исполнен в светло-сером оттенке. Он служит фоном для черной, выполненной в красивом матовом дереве мебели. Такой контраст останавливает взгляд, служит акцентом монохромного пространства.
Доминанта первого этажа – панорамный, трехсторонний камин, отделанный слэбом натурального черного камня с прозрачными прожилками, который привезли из Бразилии. За счет топки с прозрачным стеклом, монументальная композиция слово парит в воздухе. И это в рациональном и в хорошем смысле «приземленном» интерьере выглядит очень необычно.
Особого внимания заслуживает кухня. Гарнитур имеет комбинированную отделку из темного состаренного дерева и штукатурки под бетон на фасадах. Палитра второго этажа также максимально нейтральная, поскольку все помещения при необходимости должны легко трансформироваться.
Комплектация объекта
Строительные и отделочные материалы и изделия
Отделка фасадов кирпич Roben, кортеновская сталь, поставщик «Группа компаний БИС»
Лестница, компания «Сендега»
Двери скрытого монтажа, двери из стекла поворотные и распашные Barausse, поставщик Pollini Casa
Паркет, поставщик «Настоящие полы »
Плитка, поставщик Novus и «Плитказавр»
Плинтуса, поставщик Union
Камин, компания «Магия камина »
Свет декоративный Tom Rossau, Flos, Panzeri, Ideal Lux
Свет встроенный, поставщик Ledmonster
Текстильный дизайн, компания «Шлейф»
Сантехника ванна, раковина со столешницей, зеркало с подсветкой, душевое ограждение Rexa Design; смесители и аксессуары и кнопки Quadro Design; раковина из камня, поставщик Verum stone; раковина из кварцевого агломерата, поставщик «Карат»
Мебель
Прихожая вешалка Porada
Гостиная диван Arflex, комод и стеллаж Sangiacomo, стол кофейный Laskasas
Столовая стол обеденный Potocco, кресла обеденные Molteni &C
Кухня кухонная мебель с барной стойкой Nolte, поставщик Nolte Küchen
Спальня кровать, тумба, туалетный столик Novamobili, комод для белья Sangiacomo, кресло Potocco, вешалка Living Divani
Кабинет стол рабочий Minotti, диван Felis; стеллаж Alf DaFre, поставщик салон-представитель итальянского бренда Alf DaFre
Спальня гостевая кресло Gervasoni
Детская гардероб, поставщик Флэт-интерьеры
Поставка мебели, света и сантехники – Pollini Casa
Оборудование
Радиаторы, поставщик Laboratory
Семейный дом с теплой атмосферой
Яркая квартира с элементами ретро в Екатеринбурге О профессии «ландшафтный архитектор», образовании и специфике частных и общественных ландшафтных проектов говорим с Иваном Бугаевым…


































Равновесие, цельность и гармония как результат работы архитектора…
Ландшафтный архитектор. Инженер. Проектировщик. Логик.
«Мода в интерьере — это зеркало нашего быта»...
Храм в городе
Три кита современного стиля 
11
22
33
44
55
66
77
88
99
1010 