Для молодой семейной пары с ребенком дизайнер Анастасия Горбачева спроектировала люксовый интерьер в современно стиле.
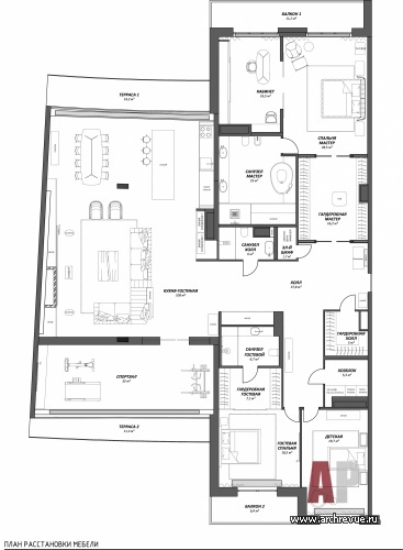
Пентхаус площадью 350 кв. м расположен в новом жилом комплексе с видом на акваторию Санкт-Петербурга. Заказчики имеют очень хороший вкус и прекрасно ориентируются в дизайне, они поставили задачу спроектировать квартиру с внушительным функционалом и современным наполнением в духе тихой роскоши. Нужно было спроектировать отдельный мастер-блок, гостевое крыло, спортзал, санузел с хаммамом, постирочную, а также большую зону кухни-столовой и гостиной с домашним кинотеатром. Мебель выбрали проверенных итальянских брендов, которые задают тон на рынке. Отделочные материалы – максимально натуральные, тактильно и визуально приятные.
Квартира включает без малого 15 разных по назначению помещений, и это без учета террас! Чтобы разместить столь обширный функционал и создать удобные внутренние связи, дизайнер отказалась от коридоров и других неэффективных зон.
Общую гостиную она организовала в центральном пространстве с панорамным остеклением и выходом на открытую террасу. Хозяйские помещения (спальню, кабинет, ванную, гардеробную) спроектировала в правом крыле, детский блок и гостевые апартаменты – в левом. Рациональное зонирование создано за счет продуманной расстановки мебели и раздвижных перегородок.
Квартира оформлена в сдержанной элегантной палитре, монохром природного камня акцентируют оттенки натуральной кожи, латуни, дубового шпона.
«За основу мы выбрали глубокий серый цвет в сочетании с медовым дубовым полом, и на это сочетание уже наслаивали сложные цвета латуни, шпона дуба, графита и других, - рассказывает автор проекта. – Едва ли не главный предмет в интерьере – кухонный гарнитур Boffi – абсолютно идеальное произведение мебельного искусства с латунными фасадами и островом из гранита, которое из-за сложностей с производством и доставкой мы ожидали полтора года!». Фоном к кухне идут панели из шпона с интегрированными латунными ручками, скрывающие систему хранения, оборудование для домашнего кинотеатра и встроенные колонки, а также огромные винные шкафы, индивидуально спроектированные и привезенные из Италии.
Основу интерьера составляет мебель ведущих итальянских брендов, таких как Boffi, Minotti, Rimadesio, B&B Italia. Встроенные системы, панели и скрытые шкафы спроектированы и произведены в России.
Интерьер получился эклектичным по духу. С классическим оформлением стен и потолков лепниной сочетается абсолютно современная, минималистская мебель, свет и аксессуары. За ровными потолками с деликатной лепниной скрывается высокотехнологичное инженерное оборудование интерьера.
Комплектация объекта
Строительные и отделочные материалы и изделия
Изделия из дерева, компания Corian Club
Раздвижные перегородки Rimadesio
Лепной декор из гипса, поставщик «Дикарт»
Финишная отделка стен, краска Салон краски
Паркет, французская елка, дуб, поставщик Viva Parket
Мрамор Arabescato, гранит Cosmic
Свет Flos, Estiluz, Delightful, Lee Broom, Oluce, B.lux
Сантехника Antonio Lupi, Ex.t, Ceramica Cielo, Mastella, Casabath; смесители Gessi, Cea
Искусство, l.e.store
Мебель
Прихожая банкетка Minotti, зеркало Maxalto
Гостиная кресла, диван, журнальные столики Minotti
Столовая обеденный стол Minotti, стулья Gubi, полубарные стулья Audo Copenhagen
Кухня гарнитур Boffi
Спальня кровать B&B Italia; прикроватные тумбы, кресло и пуф Minotti
Гардеробная Rimadesio, пуф Minotti
Кабинет стол и стул Minotti, кресло Gubi, тумбы и полки с подсветкой Rimadesio
Детская кровать, комод, кресло и прикроватные столики Rooma Design & Furniture
Гостевая спальня кровать Bonaldo, гардеробная Sangiacomo
Статусный дом с элементами классики и японской культуры
Квартира с видом на парадный Санкт-Петербург Поиски нового офиса привели владельцев архитектурного бюро «Крупный план» к неожиданному, но очень значимому шагу – приобретению особняка - объекта культурного наследия XIX века...































Созидание как эволюция: офис бюро «Крупный план»
Равновесие, цельность и гармония как результат работы архитектора…
Ландшафтный архитектор. Инженер. Проектировщик. Логик.
«Мода в интерьере — это зеркало нашего быта»...
Храм в городе 
11
22
33
44
55
66
77
88
99
1010 
«Стройка такого уровня всегда заключает в себе огромное количество сложностей. Например, для этого объекта был сделан подъем гранитного острова на 7-й этаж с полным закрытием дороги для установки крана. Сложная система наклонных окон задала задачку с их оформлением. От застройщика досталась непростая геометрия комнат, которая была выправлена скрытыми системами шкафов. Также была задача вместить максимальный функционал инженерии без потери высоты потолков…»