Дизайнер Мария Единая полностью преобразила пространство двухуровневой квартиры на Петроградской стороне в Санкт-Петербурге, исправила ошибки предыдущего дизайнера и создала невесомый белый интерьер с тактильными фактурами и артистичным декором.
Молодая семейная пара обратилась к Марии по рекомендации, после череды разочарований и негативного опыта работы с другим специалистом, который не смог воплотить идею статусного и комфортного городского жилья в престижной локации. Как данность ей достался большой объем с готовой планировкой и чистовой отделкой. «Исходная обстановка была старомодной, холодной, блестящей и напоминала неуютный отель. В оформлении были использованы не всегда качественные материалы, а мебель выбрана из каталога одного бренда. Мы постарались раскрыть исходные преимущества квартиры – белые стены и большие окон с красивыми видами на петербургские крыши – но сделали интерьер более изысканным и рафинированным. Вдохновением стал дом американской модели и телеведущей Кайли Дженнер», - рассказывает автор проекта.
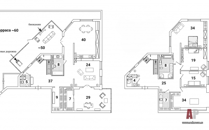
Пространство квартиры площадью 350 кв. м организовано на двух уровнях.
Нижний этаж занимает гостиная, объединенная с кабинетом анфиладным проходом, кухня-столовая, гардеробная для верхней одежды, два санузла и большая терраса с павильоном, в котором находится зона отдыха с биокамином, мягкой группой и беговой дорожкой. Второй этаж занимают спальни, в том числе хозяйская, с угловым эркером. С ней по площади может соперничать только гардеробная хозяйки – отдельная комната площадью 34 кв. м.
Два этажа связывает компактная лестница с выразительной пластикой и контрастным оформлением ступеней.
При работе над проектом дизайнер использовала исключительно декораторские средства. Не вкладывая большие средства в дорогую отделку, а используя нейтральный белый фон, качественную мебель, скульптурное освещение и аксессуары ей удалось создать интерьер на грани минимализма и изысканности.
За основу она взяла концепцию белого пространства с выразительными текстурами, оригинальными формами и предметами искусства. Существующая декоративная отделка была сохранена, за исключением пола первого этажа, где вместо дешевого глянцевого керамогранита был использован деревянный паркет, уложенный классической елкой. Также была демонтирована мрачная мраморная отделка в арках. На смену ей пришли массивные наличники из гипсовой лепнины. Рифмуясь с исходными плинтусами, карнизами и молдингами, они подчеркивают сходство с легким французским стилем. «Заказчица не хотела видеть ярких красок, поэтому другие цвета вводились аккуратно, буквально единичными включениями, но при этом активно использован контраст с натуральным деревом и черным цветом. Важную роль играют предметы искусства, ковры и вещи ручной работы», - рассказывает дизайнер.
Комплектация объекта
Строительные и отделочные материалы и изделия
Свет Visual Comfort & Co, Porta Romana, Atelier Areti, Karman
Авторские светильники, компания «Палаты»
Шторы ArtNobilisGroup
Ковры, поставщик Art de Vivre
Постельное белье, поставщик Mari bedding
Зеркала, Cattelan Italia
Аксессуары, декор, поставщики Verdi Vaza, Space Four Concept Store, «Предметы», Cono, Nezhno.ceramics, Mood Collection
Сантехника Antonio Lupi, Duravit, смесители Gessi
Искусство, Abramova Gallery, Anna Nova
Мебель
Прихожая консоль Bonaldo
Гостиная диван Moroso (модель Gohan); винтажное кресло, поставщик Correct Form Gallery; журнальный столик Linteloo, керамический табурет Cono; тумба, на заказ по авторским эскизам
Столовая обеденный стол La Collection Partciluliere (модель Rough), стулья Miniforms
Кабинет стеллажи Miniforms, кресла Cassina (модель 637 Utrecht)
Спальня кровать с изголовьем-ширмой и низкие вместительные тумбы, на заказ по авторским эскизам; кресла Bernhardt, столик &Tradition
Гардеробная кресло Audo Copenhagen (модель The Tired Man); столик Pulpo
Холл второго этажа скамья-консоль Riva 1920
Квартира в стиле американских небоскребов
Черно-белая квартира с RGB-подсветкой О профессии «ландшафтный архитектор», образовании и специфике частных и общественных ландшафтных проектов говорим с Иваном Бугаевым…




























Созидание как эволюция: офис бюро «Крупный план»
Равновесие, цельность и гармония как результат работы архитектора…
Ландшафтный архитектор. Инженер. Проектировщик. Логик.
«Мода в интерьере — это зеркало нашего быта»...
Храм в городе 
11
22
33
44
55
66
77
88
99
1010 