Закрыть галерею
Изображение 24 из 25

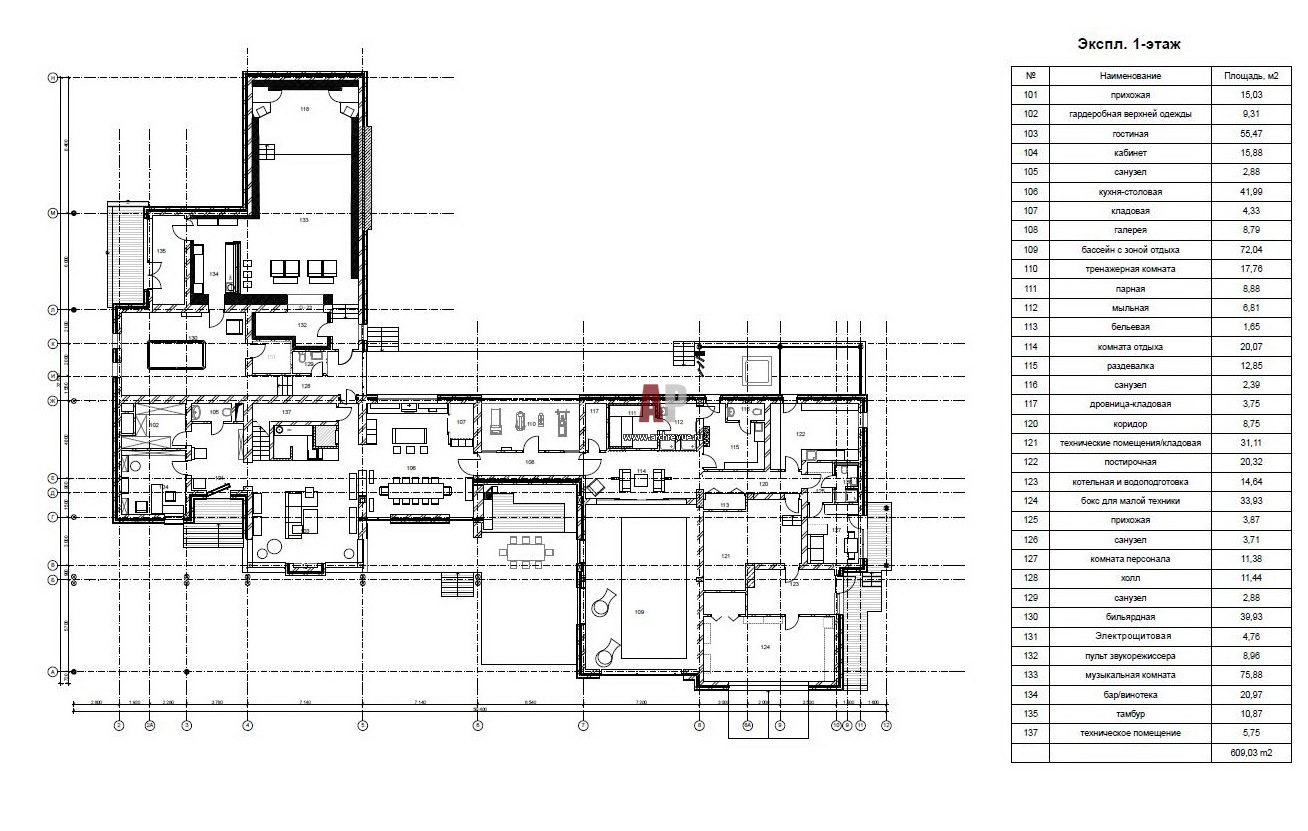
Планировка 1 этажа 2-х этажного дома с модернистской архитектурой.

План первого этажа двухэтажного дома, построенного по индивидуальному проекту. Общая площадь - 873 кв. м.

Проект: Двухэтажный дом Omega House с двухсветной гостиной, бассейном и концертным залом
Автор проекта: Леонидов Роман, Волгина Елена
Объект: Модернистский дом из сланца, доломита и дерева
Общая площадь: 873 кв.м.