Закрыть галерею
Изображение 25 из 26

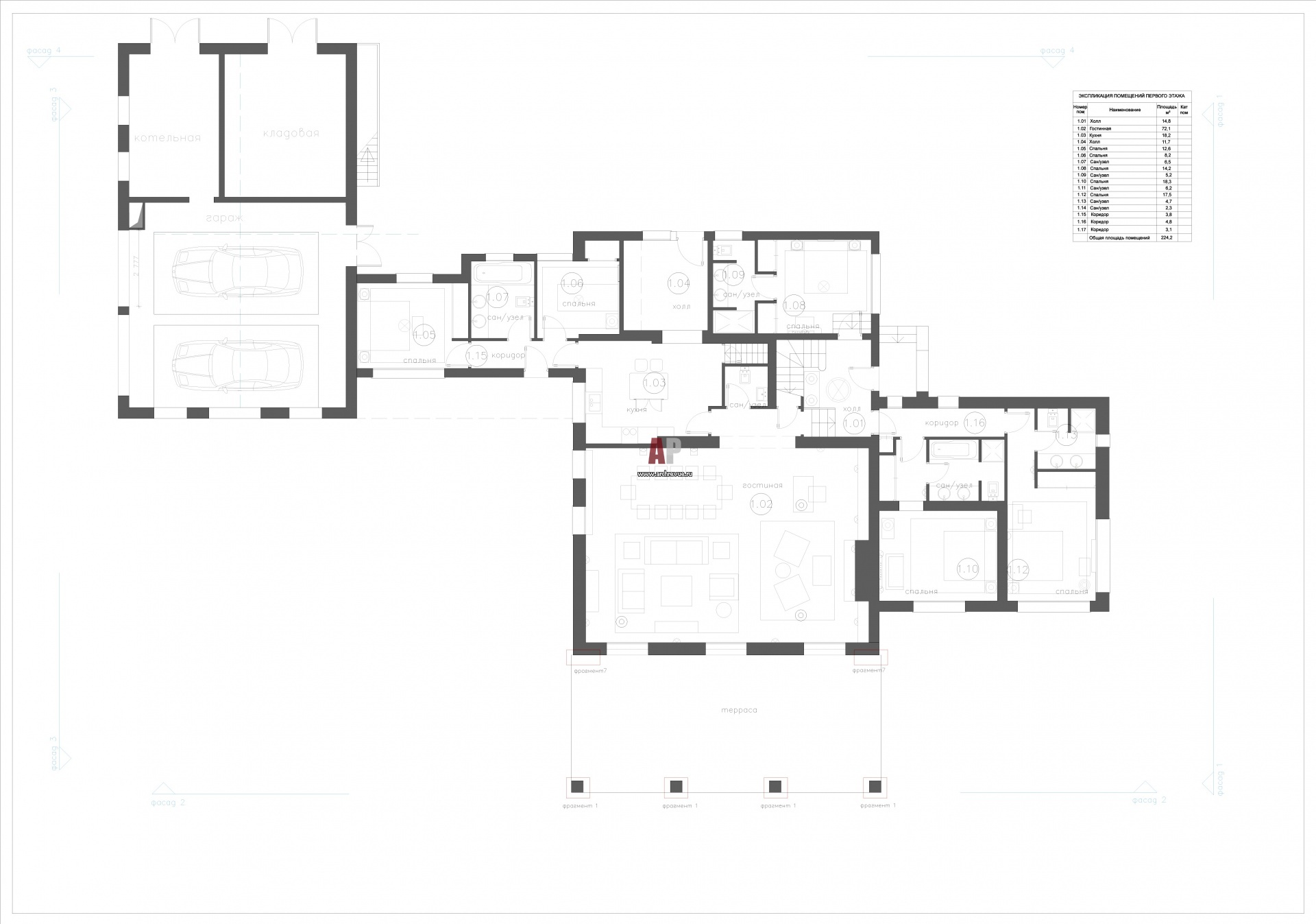
Реконструкция старинной виллы в Испании. Планировка 1 этажа.

План первого этажа виллы в Испании. Общая площадь: 468 кв. м.

Проект: Реконструкция старой виллы в Испании
Автор проекта: Кушнарева-Леоне Ольга
Соавтор(ы): Кострова Елена, Чапланова Полина, Московченко Антон
Объект: На солнечном берегу. Вилла в Испании
Общая площадь: 468 кв.м.